목록으로
최종 업데이트: 2026-04-22 13:21
2025타경56265
수원지방법원 본원 12계(031-210-1272)
부동산
부동산임의경매
결과 대기
진행중
| 소재지 |
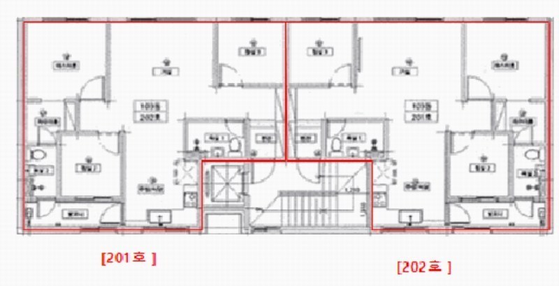
경기도 용인시 처인구 양주로 71, 양지라클라움 3동 2층 201호
(경기도 용인시 처인구 양지면 양지리 747-1)
|
|---|---|
| 물건종류 | 다세대(빌라) |
| 면적 |
토지: 113.55㎡ (34.35평)
건물: 69.80㎡ (21.11평)
|
| 현재 위치 | 경기도 용인시 처인구 양주로 71, 양지라클라움 3동 2층 201호 |
| 소유자 / 채무자 | 박근관 / 박근관 |
| 채권자 | 농협자산관리회사 |
| 배당종기일 | 2025-08-13 |
감정가
281,000,000
최저가
281,000,000
보증금
28,100,000
입찰 진행 내역
| 회차/구분 | 입찰기일 | 최저매각가격 | 결과 |
|---|---|---|---|
| 1차 (진행) | 2026-04-27 | 281,000,000 | |
| 2차 (진행) | 2026-06-02 | 196,700,000 | |
| 3차 (진행) | 2026-07-08 | 137,690,000 | |
| 4차 (진행) | 2026-08-21 | 96,383,000 |
매각물건 현황
| 구분 | 순번 | 소재지 | 용도/구조/면적 | 감정가 | 비고 |
|---|---|---|---|---|---|
| 건물 | 4층중 2층 | 23.09.18 | 69.7974㎡(21.11평) / 주거용 | 140,500,000 |
현황 및 위치
* 본건은 경기도 용인시 처인구 양지면 양지리 소재 ""양지4리새마을회관"" 북서측 인근에 위치하며, 주위는 아파트, 다세대주택, 공장 및 근린생활시설, 학교 등으로 형성된 주거지대로서, 제반 주위환경은 보통임. * 본건까지 차량 출입이 가능하고 인근에 버스정류장이 소재하며 대중교통 이용편익은 보통임. * 완경사 부정형의 토지로서, 다세대주택 건부지로 이용 중임. * 단지 내 진입로가 북측으로 노폭 약 9m의 도로와 접함.
전문가 코멘트
** 본 건은 유치권신고가 된 경매물건입니다. 기본적인 유치권의 성립요건은 유치권의 원인채권이 경매되는 물건의 가치증가나 보존에 기여한 변제기가 지난 채권(주로 공사채권)이어야하고 채권회수를 위하여 유치(점유 = 직접, 간접점유 무관)를 하고 있어야 합니다. 조사방법은 먼저 신고내용을 입수하여 공사의 내용과 세목 등을 파악하고 이를 기초로 이해관계이자 탐문, 현장조사 등을 통하여 성립여부에 대한 판단을 합니다. 기본적인 내용은 PC버전은 등기부 요약란 아래의 유치권/법정지상권 버튼을 눌러 참고하시고 모바일버전의 경우 자료실의 관련자료를 참고하시기 바랍니다. 본 건에서 구체적으로 검토하여야 할 사항은 다음과 같습니다. == 유치권 신고와 배제신청이 모두 있으므로 양 당사자의 주장을 모두 참고하고 유치권으로서의 성립요건을 갖추었는지를 현장 방문 등을 통하여 확인하는 것이 필요할 것입니다. 아울러 낙찰 후의 대처 방법도 미리 함께 준비하여야 할 것입니다.
등기부 현황
건물
| 순위 | 접수일자 | 권리종류 | 권리자 | 채권금액 | 소멸여부 | 비고 |
|---|---|---|---|---|---|---|
| 1(갑1) | 2023-10-20 | 소유권보존 | 박OO | 0 | ||
| 2(을1) | 2023-10-20 | 근저당 | 농OOOOOOOOOOOOOOOOO | 1,440,000,000 | 소멸 | 말소기준등기확정채권양도전:광주농업협동조합 |
| 3(갑2) | 2025-02-24 | 압류 | 용OOO | 0 | 소멸 | |
| 4(갑3) | 2025-03-25 | 가압류 | 김OO | 77,948,000 | 소멸 | 2025카단502862 |
| 5(갑4) | 2025-05-22 | 가압류 | 이OO | 31,106,290 | 소멸 | 2025카단504855 |
| 6(갑5) | 2025-05-30 | 임의경매 | 농OOOOOOO | 960,930,297 | 소멸 | 2025타경56265 |
| 7(을2) | 2025-07-15 | 근저당 | 스OOOOOO | 67,200,000 | 소멸 | |
| 8(갑6) | 2025-12-03 | 가압류 | (OOOOOOOOO | 446,584,958 | 소멸 | 2025카단65263 |
관련 문서 (PDF)
클릭하면 원본 파일이 열립니다