목록으로
최종 업데이트: 2026-04-28 02:10
2025타경52989
수원지방법원 성남지원 2계(031-737-1322)
부동산
부동산강제경매
결과 대기
진행중
| 소재지 |
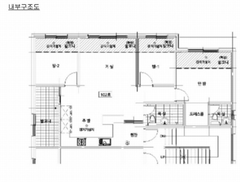
경기도 광주시 이배재로 290-35, 골든듀 102동 1층 102호
(경기도 광주시 목현동 126-2)
|
|---|---|
| 물건종류 | 다세대(빌라) |
| 면적 |
토지: 60.14㎡ (18.19평)
건물: 69.82㎡ (21.12평)
|
| 현재 위치 | 경기도 광주시 이배재로 290-35, 골든듀 102동 1층 102호 |
| 소유자 / 채무자 | 박진완 / 박진완 |
| 채권자 | 대신저축은행 |
| 배당종기일 | 2025-11-17 |
감정가
290,000,000
최저가
290,000,000
보증금
29,000,000
입찰 진행 내역
| 회차/구분 | 입찰기일 | 최저매각가격 | 결과 |
|---|---|---|---|
| 1차 (진행) | 2026-05-11 | 290,000,000 | |
| 2차 (진행) | 2026-06-15 | 203,000,000 | |
| 3차 (진행) | 2026-07-20 | 142,100,000 | |
| 4차 (진행) | 2026-08-24 | 99,470,000 |
임차인 현황
| 임차인명 | 점유여부 | 전입/확정/배당 | 보증금 / 차임 | 예상배당액 | 대항력 |
|---|---|---|---|---|---|
| 김선일 | 주거용 전부 |
전입: 2021-09-10
확정: 2021-07-15 배당: 2025-10-10 |
230,000,000
월 0
|
0 | 있음 |
매각물건 현황
| 구분 | 순번 | 소재지 | 용도/구조/면적 | 감정가 | 비고 |
|---|---|---|---|---|---|
| 건물 | 3층중 1층 | 16.12.29 | 69.82㎡(21.12평) / 다세대주택 | 145,000,000 | * 도시가스에 의한 개별난방설비 |
현황 및 위치
* 경기도 광주시 목현동 소재 "목현교"북동측 인근에 위치하며, 주위는 소규모 공동주택, 임야, 농경지 등이 소재하는 지역임 * 본건까지 제반차량 출입 가능하며, 근거리에 버스정류장이 소재하고 있어,제반 대중교통사정은 보통임. * 사다리형의 남측하향 완경사지로, 다세대주택 건부지로 이용중임 * 단지내 포장도로가 통하여 북동측으로 세로에 접함
참고사항
* 다세대주택으로 이용중임.
등기부 현황
건물
| 순위 | 접수일자 | 권리종류 | 권리자 | 채권금액 | 소멸여부 | 비고 |
|---|---|---|---|---|---|---|
| 2(갑10) | 2025-03-27 | 가압류 | 대OOOOO | 7,094,246 | 소멸 | 말소기준등기2025카단1454 |
| 3(갑11) | 2025-09-12 | 강제경매 | 대OOOOO | 7,849,789 | 소멸 | 2025타경52989 |
| 4(갑12) | 2025-11-12 | 가압류 | 신OOO | 89,331,688 | 소멸 | 2025카단6734 |
| 5(갑13) | 2025-11-18 | 가압류 | 신OOOOOO | 4,479,255 | 소멸 | 2025카단6842 |
| 6(을5) | 2026-03-04 | 주택임차권(전부) | 김OO | 230,000,000 | 전입:2021.09.10확정:2021.07.15 |
관련 문서 (PDF)
클릭하면 원본 파일이 열립니다