목록으로
최종 업데이트: 2026-04-22 13:21
2025타경11728
울산지방법원 본원 8계(052-216-8268)
부동산
부동산강제경매
유찰
진행중
| 소재지 |
울산광역시 남구 중앙로242번길 6, 대상웰리움 3층 305호
(울산광역시 남구 신정동 508-4)
|
|---|---|
| 물건종류 | 오피스텔[계약30평형] |
| 면적 |
토지: 10.65㎡ (3.22평)
건물: 64.04㎡ (19.37평)
|
| 현재 위치 | 울산광역시 남구 중앙로242번길 6, 대상웰리움 3층 305호 |
| 소유자 / 채무자 | 노희창 / 노희창 |
| 채권자 | 주택도시보증공사 |
| 배당종기일 | 2025-07-24 |
감정가
216,000,000
최저가
151,200,000
보증금
15,120,000
입찰 진행 내역
| 회차/구분 | 입찰기일 | 최저매각가격 | 결과 |
|---|---|---|---|
| 1차 (진행) | 2025-11-18 | 216,000,000 | 유찰 |
| 2차 (진행) | 2025-12-30 | 151,200,000 | 유찰 |
| 3차 (진행) | 2026-02-03 | 105,840,000 | 유찰 |
| 4차 (진행) | 2026-03-10 | 74,088,000 | 유찰 |
| 5차 (진행) | 2026-04-14 | 216,000,000 | 유찰 |
| 6차 (진행) | 2026-05-19 | 151,200,000 | |
| 7차 (진행) | 2026-06-23 | 105,840,000 | |
| 8차 (진행) | 2026-07-28 | 74,088,000 |
임차인 현황
| 임차인명 | 점유여부 | 전입/확정/배당 | 보증금 / 차임 | 예상배당액 | 대항력 |
|---|---|---|---|---|---|
| 진하윤 | 주거용 305호 64.04㎡ |
전입: 2023-04-27
확정: 2023-01-27 배당: 2024-06-14 |
200,000,000
월 0
|
0 | 있음 |
| 최이슬 | 주거용 |
전입: 2024-11-26
확정: - 배당: - |
0
월 0
|
0 | - |
매각물건 현황
| 구분 | 순번 | 소재지 | 용도/구조/면적 | 감정가 | 비고 |
|---|---|---|---|---|---|
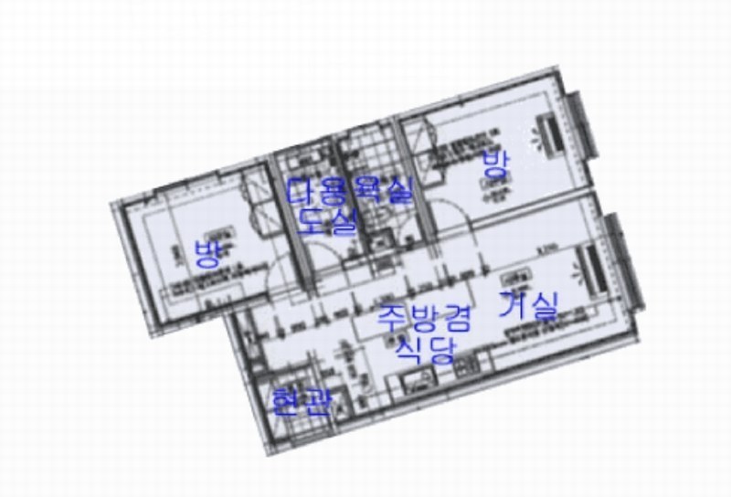
| 건물 | 18층중 3층 | 19.10.22 | 64.04㎡(19.37평)[계약30평] / 주거용 오피스텔(방2, 거실, 주방겸식당, 욕실, 다용도실 등) | 162,000,000 | * 도시가스보일러개별난방설비 |
현황 및 위치
* 본건은 울산광역시 남구 신정동 소재 울산광역시청 북측 인근에 위치하며 주위는 아파트, 일반주택, 근린생활시설 등으로 형성되어 있음. * 차량 진출입 가능하며 인근에 시내버스정류장이 소재함. * 3필지 일단의 가로장방형 토지로서 주상복합 건부지로 이용중임. * 북서측으로 폭 6M 정도의 아스팔트포장도로에 접함.
참고사항
* 외필지 : 신정동 508-5, 508-11
등기부 현황
건물
| 순위 | 접수일자 | 권리종류 | 권리자 | 채권금액 | 소멸여부 | 비고 |
|---|---|---|---|---|---|---|
| 1(갑5) | 2021-07-09 | 소유권이전(매매) | 노OO | 0 | 거래가액:211,000,000 | |
| 2(을1) | 2024-06-14 | 주택임차권(전부) | 진OO | 200,000,000 | 소멸 | 전입:2023.04.27확정:2023.01.27 |
| 3(갑6) | 2025-04-29 | 강제경매 | 주OOOOOOOOOOOOOOO | 200,000,000 | 소멸 | 말소기준등기2025타경11728 |
| 4(갑7) | 2025-05-09 | 압류 | 국OOOOOOO | 0 | 소멸 |
관련 문서 (PDF)
클릭하면 원본 파일이 열립니다