목록으로
최종 업데이트: 2026-04-24 15:58
2025타경9064
서울남부지방법원 본원 12계(02-2192-1257)
부동산
부동산임의경매
매각
진행중
| 소재지 |
-
(서울특별시 강서구 화곡동 1057-10)
|
|---|---|
| 물건종류 | 근린주택 |
| 면적 |
토지: 0.00㎡ (0평)
건물: 616.78㎡ (186.58평)
|
| 현재 위치 | 서울특별시 강서구 화곡동 1057-10 |
| 소유자 / 채무자 | 손윤한 / 손윤한 |
| 채권자 | 성산포수협 |
| 배당종기일 | 2025-06-16 |
감정가
3,256,473,580
최저가
2,605,179,000
보증금
260,517,900
진행 상태 / 매각 결과
매각
completed = false
매각허가결정
| 상태 코드 | 2 | 상태 텍스트 | 매각허가결정 |
|---|---|---|---|
| 매각가 | 2,741,000,000원 | 매각가율 | 0% |
| 입찰 수 | 2 | 매수인 | 한국토지주택공사 (임차인우선매수 |
| 차순위 입찰가 | 2,697,270,000원 | 매각허가 결정 | 매각허가결정 |
| 매각허가 결정일 | 2026-03-31 | 대금 지급기한 | - |
| 대금 지급상태 | - | 배당기일 | - |
| 배당 종결일 | - | 다음 확인 예정 | 2026-04-25 09:00 |
입찰 진행 내역
| 회차/구분 | 입찰기일 | 최저매각가격 | 결과 |
|---|---|---|---|
| 1차 (진행) | 2025-12-09 | 3,256,473,580 | 유찰 |
| (진행) | 2026-02-03 | 2,605,179,000 | 변경 |
| 2차 (진행) | 2026-02-03 | 3,256,473,580 | 유찰 |
| 3차 (진행) | 2026-03-24 | 2,605,179,000 |
진행 메모
매각 : 2,741,000,000 원 (84.17%)
(입찰 2 명,매수인:한국토지주택공사 (임차인우선매수) / 차순위금액 2,697,270,000원)
매각결정기일 : 2026.03.31 - 매각허가결정
대금지급기한 : 2026.04.30
대금납부 2026.04.22 / 배당기일 2026.06.16
임차인 현황
| 임차인명 | 점유여부 | 전입/확정/배당 | 보증금 / 차임 | 예상배당액 | 대항력 |
|---|---|---|---|---|---|
| 강량훈 | 주거용 지1층호별표시 비02호 |
전입: 2024-07-26
확정: 2024-07-26 배당: 2025-03-26 |
10,000,000
월 300,000
|
0 | 없음 |
| 강민희 | 주거용 1층호별표시 102호 |
전입: 2023-06-07
확정: 2023-06-07 배당: 2025-03-31 |
50,000,000
월 350,000
|
0 | 없음 |
| 고지예 | 주거용 405호 |
전입: 2024-05-07
확정: 2024-04-11 배당: 2025-04-03 |
30,000,000
월 350,000
|
0 | 없음 |
| 권혁주 | 주거용 2층호별표시 203호 |
전입: 2023-06-05
확정: 2023-05-26 배당: 2025-03-25 |
110,000,000
월 0
|
0 | 없음 |
| 김다솜 | 주거용 B03호 |
전입: 2023-06-28
확정: 2023-06-21 배당: 2025-03-26 |
30,000,000
월 150,000
|
0 | 없음 |
| 김영지 | 주거용 3층호별표시 304호 |
전입: 2023-08-11
확정: 2023-07-14 배당: 2025-04-04 |
50,000,000
월 350,000
|
0 | 없음 |
| 김우영 | 주거용 104호 |
전입: 2024-12-06
확정: 2024-12-06 배당: 2025-04-14 |
20,000,000
월 500,000
|
0 | 없음 |
| 김채원 | 주거용 305호 |
전입: 2023-10-19
확정: 2025-03-25 배당: 2025-04-25 |
50,000,000
월 350,000
|
0 | 없음 |
| 김채현 | 주거용 407호 |
전입: 2024-02-02
확정: 2024-02-02 배당: 2025-04-09 |
50,000,000
월 200,000
|
0 | 없음 |
| 김태성 | 주거용 301호 |
전입: 2023-08-14
확정: 2023-08-07 배당: 2025-04-24 |
50,000,000
월 300,000
|
0 | 없음 |
| 김형준 | 주거용 4층호별표시 404호 |
전입: 2023-06-12
확정: 2023-05-16 배당: 2025-03-25 |
50,000,000
월 250,000
|
0 | 없음 |
| 김효진 | 주거용 403호 |
전입: 2024-01-11
확정: 2025-05-07 배당: 2025-05-07 |
50,000,000
월 250,000
|
0 | 없음 |
| 김희향 | 주거용 3층호별표시 306호 |
전입: 2023-08-28
확정: 2023-07-17 배당: 2025-03-26 |
110,000,000
월 0
|
0 | 없음 |
| 문혜정 | 주거용 205호 |
전입: 2023-08-11
확정: 2023-08-11 배당: 2025-03-21 |
50,000,000
월 350,000
|
0 | 없음 |
| 박미희 | 주거용 B05호 |
전입: 2024-10-30
확정: 2024-10-30 배당: 2025-04-21 |
30,000,000
월 100,000
|
0 | 없음 |
| 박주하 | 주거용 103호 |
전입: 2023-06-05
확정: 2023-06-05 배당: 2025-05-07 |
30,000,000
월 450,000
|
0 | 없음 |
| 신선미 | 주거용 지1층호별표시 비01호 |
전입: 2023-08-14
확정: 2023-08-14 배당: 2025-04-07 |
10,000,000
월 400,000
|
0 | 없음 |
| 신혜림 | 주거용 2층호별표시 206호 |
전입: 2023-09-06
확정: 2023-08-18 배당: 2025-03-24 |
100,000,000
월 0
|
0 | 없음 |
| 양동우 | 주거용 지1층호별표시 비04호 |
전입: 2023-06-08
확정: 2023-08-21 배당: 2025-03-26 |
50,000,000
월 50,000
|
0 | 없음 |
| 양만식 | 주거용 401호 |
전입: 2024-08-14
확정: 2024-08-13 배당: 2025-03-17 |
30,000,000
월 300,000
|
0 | 없음 |
| 오기현 | 주거용 302호 |
전입: 2023-08-31
확정: 2023-08-31 배당: 2025-03-27 |
50,000,000
월 300,000
|
0 | 없음 |
| 윤소현 | 주거용 207호 |
전입: 2023-08-11
확정: 2023-08-11 배당: 2025-04-02 |
100,000,000
월 0
|
0 | 없음 |
| 윤영석 | 주거용 303호 |
전입: 2023-08-21
확정: 2023-06-02 배당: 2025-03-27 |
110,000,000
월 0
|
0 | 없음 |
| 이하은 | 주거용 204호 |
전입: 2023-08-28
확정: 2023-08-28 배당: 2025-04-04 |
50,000,000
월 350,000
|
0 | 없음 |
| 임지수 | 주거용 2층호별표시 202호 |
전입: 2023-09-22
확정: 2023-09-04 배당: 2025-04-29 |
100,000,000
월 0
|
0 | 없음 |
| 장인영 | 주거용 3층호별표시 307호 |
전입: 2023-10-26
확정: 2023-08-30 배당: 2025-04-02 |
100,000,000
월 0
|
0 | 없음 |
| 정아현 | 주거용 402호 |
전입: 2023-05-30
확정: 2023-05-16 배당: 2025-03-27 |
30,000,000
월 300,000
|
0 | 없음 |
| 조수연 | 주거용 1층호별표시 105호 |
전입: 2023-05-26
확정: 2023-05-26 배당: 2025-05-22 |
10,000,000
월 550,000
|
0 | 없음 |
| 주민경 | 주거용 2층 호별표시 201호 |
전입: 2023-09-15
확정: 2023-08-14 배당: 2025-04-18 |
50,000,000
월 300,000
|
0 | 없음 |
| 최유진 | 주거용 406호 |
전입: 2023-05-04
확정: 2023-05-11 배당: 2025-04-03 |
30,000,000
월 350,000
|
0 | 없음 |
| 하유정 | 주거용 101호 |
전입: 2023-06-12
확정: 2023-06-12 배당: 2025-04-02 |
20,000,000
월 500,000
|
0 | 없음 |
매각물건 현황
| 구분 | 순번 | 소재지 | 용도/구조/면적 | 감정가 | 비고 |
|---|---|---|---|---|---|
| 토지 | 토지 | 화곡동 1057-10 | 대공방어협조구역,도시지역,중요시설물보호지구(공항),수평표면구역,...대공방어협조구역,도시지역,중요시설물보호지구(공항),수평표면구역,토지거래계약에관한허가구역,가축사육제한구역,제2종일반주거지역,과밀억제권역 / 대 243.8㎡ (73.75평) | 9,180,000 | 2,238,084,000원 |
| 건물 | 1 | 강서로34길 53 [화곡동 1057-10 에피소드]철근콘크리트구조 평슬래브지붕 | 지하1층 / 단독주택(다중주택) | 115 | 1,372,000원 |
| 2 | 1층 | 단독주택(다중주택) | 115.33㎡(34.89평) / 1,960,000원 | 226,046,800 | * 사용승인:2023.04.10* 공부상 제2종근린생활시설(사무소) |
| 3 | 2층 | 단독주택(다중주택) | 117㎡(35.39평) / 1,960,000원 | 229,320,000 | * 사용승인:2023.04.10 |
| 4 | 3층 | 단독주택(다중주택) | 117㎡(35.39평) / 1,960,000원 | 229,320,000 | * 사용승인:2023.04.10 |
| 5 | 4층 | 단독주택(다중주택) | 51.89㎡(15.7평) / 1,960,000원 | 101,704,400 | * 사용승인:2023.04.10 |
| 6 | 옥탑 | 단독주택(다중주택) | 12.69㎡(3.84평) / 784,000원 | 9,948,960 | * 사용승인:2023.04.10* 옥탑1층 * 연면적제외 |
| 제시외건물 | 1 | 강서로34길 53 [화곡동 1057-10 에피소드]조립식 판넬조 등 1.조립식 판넬조, 2.조립식 판넬조, 3.조립식 판넬조, 4.조립식 판넬조, 5.조립식 판넬조, 6.샌드위치판넬조 | / 다중주택 | 36 | 729,000원 |
| 2 | 다중주택 | 18.24㎡(5.52평) / 729,000원 | 13,296,960 | 매각포함* 403호 | |
| 3 | 다중주택 | 18.24㎡(5.52평) / 729,000원 | 13,296,960 | 매각포함* 404호 | |
| 4 | 다중주택 | 15.96㎡(4.83평) / 729,000원 | 11,634,840 | 매각포함* 405호 | |
| 5 | 다중주택 | 12.54㎡(3.79평) / 729,000원 | 9,141,660 | 매각포함* 406호 | |
| 6 | 보일러실 및 복도 | 7.2㎡(2.18평) / 729,000원 | 5,248,800 | 매각포함 |
현황 및 위치
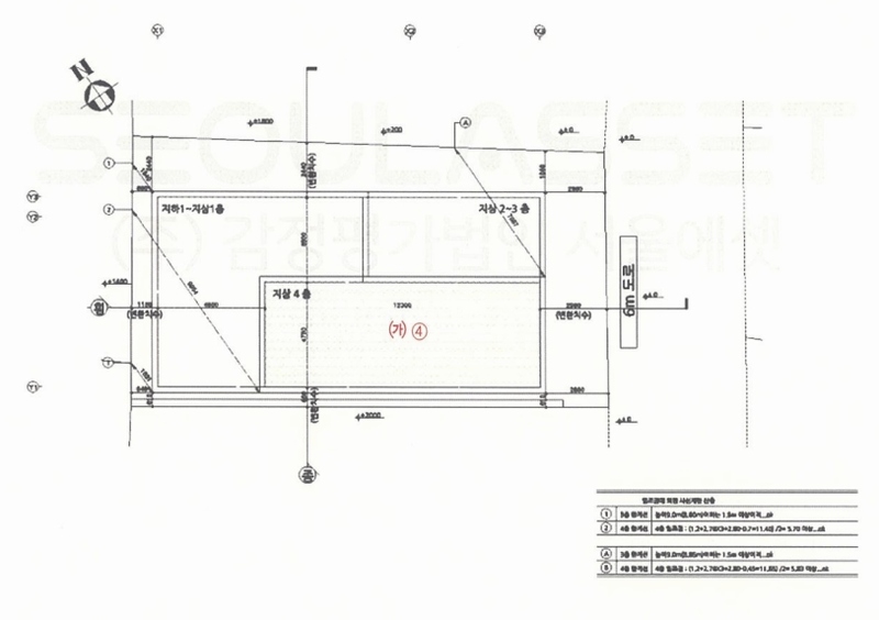
* 위치 및 주위환경: 서울특별시 강서구 화곡동 소재 지하철 5호선 ‘화곡역’ 북동측 인근에 위치하며, 주위는 단독주택, 다세대주택, 아파트, 근린생활시설 등이 소재하고 있는 지역으로서 제반 주위환경은 보통임. * 교통상황: 본건까지 차량 진출입이 가능하고, 인근에 지하철 5호선 ‘화곡역’ 및 노선버스정류장이 소재하는 등 제반 교통상황은 보통임. * 토지의 형상 및 이용상태: 본건은 인접도로 대비 등고평탄한 세장형의 토지로서, 주거용 건부지로 이용 중임. * 인접 도로상태등: 본건 남동측으로 노폭 약 60미터 내외의 포장도로와 접하고 있음.
참고사항
* 일반건축물대장에 위반건축물 표시 있음.-본건 건물은 일반건축물대장상 위반건축물[2023.6.2., 주택과-16016(2023.6.2.)호에 의거 위반건축물 표기(4층 조립식패널조 주거 85㎡ 무단증축)]로 등재되어 있는 바, 이행강제금 부과 여부 및 원상회복의무 발생 여부 등 이와 관련한 행정적 사항은 경매 입찰 시 해당 기관에 반드시 재확인하시기 바람 * 일괄매각 * 제시외 건물(조립식 판넬조(다중 주택 402호) 약 15.36㎡, 조립식 판넬조(다중 주택 403호) 약 18.24㎡, 조립식 판넬조(다중 주택 404호) 약 18.24㎡, 조립식 판넬조(다중 주택 405호) 약 15.96㎡, 조립식 판넬조(다중 주택 406호) 약 12.54㎡, 조립식 판넬조(복도 및 보일러실) 약 7.2㎡) 평가 및 매각에 포함(감정평가서 참조). * 1층 내 건축물현황도상 "제2종근린생활시설(사무소)"는 현황 101호, 102호, 103호, 104호, 105호 및 복도로 이용 중이고, 4층 내 건축물현황도상 "공동취사장"은 현황 401호로 이용 중이며, 4층 내 건축물현황도상 "다중주택 1호"는 407호, 보일러실 및 일부 복도는 406호의 일부로 이용 중임(감정평가서 참조) ▶본 물건은 공부상과 현황상 물건 상태가 다르니 확인하시고 입찰하시기 바랍니다.
전문가 코멘트
☞ 위반(불법)건축물일 경우 건축법 제80조에 의해 계고 및 원상복구명령을 받게되고, 원상복구 하지 않으면 매년 2회 이내 이행강제금이 부과되므로 관할 관청을 통하여 위반내용, 이행강제금 부과내역 또는 양성화방안 등을 확인하시고 이로 인해 잔금대출에 영향이 없는지 금융기관에 확인하시기 바랍니다.(상가의 경우 기존 영업허가는 승계가 가능하나 신규 영업허가는 발급이 어려우니 주의하시기 바랍니다.)
등기부 현황
건물
| 순위 | 접수일자 | 권리종류 | 권리자 | 채권금액 | 소멸여부 | 비고 |
|---|---|---|---|---|---|---|
| 1(갑1) | 2023-04-17 | 소유권보존 | 손OO | 0 | ||
| 2(을1) | 2023-04-17 | 근저당 | 성OOOOOOOOOOO | 3,072,000,000 | 소멸 | 말소기준등기 |
| 3(갑4) | 2025-01-13 | 압류 | 서OOOOOOO | 0 | 소멸 | |
| 4(갑5) | 2025-03-13 | 임의경매 | 성OOOOOOOOOOOOO | 2,590,509,417 | 소멸 | 2025타경9064 |
| 5(을2) | 2025-04-23 | 주택임차권(3층호별표시 307호) | 장OO | 100,000,000 | 소멸 | 전입:2023.10.26확정:2023.08.30 |
| 6(을3) | 2025-06-10 | 주택임차권(3층호별표시 306호) | 김OO | 110,000,000 | 소멸 | 전입:2023.08.28확정:2023.07.17 |
| 7(을4) | 2025-06-12 | 주택임차권(1층호별표시 105호) | 조OO | 10,000,000 | 소멸 | 전입:2023.05.26확정:2023.05.26차: 550,000 |
| 8(을5) | 2025-06-18 | 주택임차권(4층호별표시 404호) | 김OO | 50,000,000 | 소멸 | 전입:2023.06.12확정:2023.05.16차: 250,000 |
| 9(을6) | 2025-07-15 | 주택임차권(2층호별표시 206호) | 신OO | 100,000,000 | 소멸 | 전입:2023.09.06확정:2023.08.18 |
| 10(을7) | 2025-07-18 | 주택임차권(1층호별표시 102호) | 강OO | 50,000,000 | 소멸 | 전입:2023.06.07확정:2023.06.07차: 350,000 |
| 11(을8) | 2025-08-04 | 주택임차권(3층호별표시 304호) | 김OO | 50,000,000 | 소멸 | 전입:2023.08.11확정:2023.07.14차: 350,000 |
| 12(을9) | 2025-08-22 | 주택임차권(2층 호별표시 201호) | 주OO | 50,000,000 | 소멸 | 전입:2023.09.15확정:2023.08.14차: 300,000 |
| 13(을10) | 2025-08-26 | 주택임차권(지1층호별표시 비02호) | 강OO | 10,000,000 | 소멸 | 전입:2024.07.26확정:2024.07.26차: 300,000 |
| 14(을11) | 2025-08-28 | 주택임차권(2층호별표시 202호) | 임OO | 100,000,000 | 소멸 | 전입:2023.09.22확정:2023.09.04 |
| 15(을12) | 2025-08-28 | 주택임차권(2층호별표시 203호) | 권OO | 110,000,000 | 소멸 | 전입:2023.06.05확정:2023.05.26 |
| 16(을13) | 2025-10-17 | 주택임차권(지1층호별표시 비04호) | 양OO | 50,000,000 | 소멸 | 전입:2023.06.08확정:2023.08.21차: 50,000 |
| 17(을14) | 2025-10-29 | 주택임차권(지1층호별표시 비01호) | 신OO | 10,000,000 | 소멸 | 전입:2023.08.14확정:2023.08.14차: 400,000 |
관련 문서 (PDF)
클릭하면 원본 파일이 열립니다