목록으로
최종 업데이트: 2026-04-24 23:48
2024타경143316
서울남부지방법원 본원 1계(02-2192-1331)
부동산
부동산강제경매
취하/변경
진행중
| 소재지 |
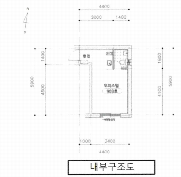
서울특별시 영등포구 국회대로54길 50-1, 해강플러스 9층 903호
(서울특별시 영등포구 영등포동2가 232-1)
|
|---|---|
| 물건종류 | 오피스텔 |
| 면적 |
토지: 6.96㎡ (2.11평)
건물: 19.62㎡ (5.94평)
|
| 현재 위치 | 서울특별시 영등포구 국회대로54길 50-1, 해강플러스 9층 903호 |
| 소유자 / 채무자 | 문지우 / 문지우 |
| 채권자 | 주택도시보증공사 |
| 배당종기일 | 2025-02-24 |
감정가
259,000,000
최저가
259,000,000
보증금
25,900,000
입찰 진행 내역
| 회차/구분 | 입찰기일 | 최저매각가격 | 결과 |
|---|---|---|---|
| 1차 (진행) | 2025-03-26 | 259,000,000 | 유찰 |
| (진행) | 2025-05-14 | 207,200,000 | 변경 |
| 2차 (진행) | 2025-12-11 | 207,200,000 | 유찰 |
| 3차 (진행) | 2026-02-05 | 165,760,000 | 유찰 |
| 4차 (진행) | 2026-03-26 | 132,608,000 | 유찰 |
| (진행) | 2026-05-07 | 106,086,000 | 변경 |
| 5차 (진행) | 2026-05-07 | 259,000,000 | |
| 6차 (진행) | 2026-06-17 | 207,200,000 | |
| 7차 (진행) | 2026-08-04 | 165,760,000 | |
| 8차 (진행) | 2026-09-02 | 132,608,000 |
임차인 현황
| 임차인명 | 점유여부 | 전입/확정/배당 | 보증금 / 차임 | 예상배당액 | 대항력 |
|---|---|---|---|---|---|
| 김민정 | 주거용 건물전부 |
전입: 2021-06-29
확정: 2021-06-29 배당: 2023-05-24 |
219,000,000
월 0
|
0 | 있음 |
| 윤비아 | 주거용 903호 |
전입: 2023-10-26
확정: - 배당: - |
0
월 0
|
0 | 없음 |
| 주택도시보증공사 | 주거용 903호 전부 |
전입: 2021-06-29
확정: 2021-06-29 배당: 2025-02-14 |
219,000,000
월 0
|
0 | 있음 |
매각물건 현황
| 구분 | 순번 | 소재지 | 용도/구조/면적 | 감정가 | 비고 |
|---|---|---|---|---|---|
| 건물 | 9층중 9층 | 21.03.30 | 19.62㎡(5.94평) / 오피스텔 | 145,040,000 | * 철근콘크리트구조 오피스텔 19.20㎡ 보일러실 0.42㎡ |
현황 및 위치
* 본건은 서울특별시 영등포구 영등포동2가 소재 "영등포동 주민센터"남동측 인근에 위치하며, 주위는 오피스텔, 다가주택, 근린생활시설 등이 소재하는 등 주위환경은 보통임. * 본건까지 차량 접근이 가능하며, 인근에 노선버스정류장 및 지하철역(영등포시장역 ,5호선)이 소재하는 등 제반 대중교통상황은 보통시됨 * 본건은 2필지 일단의 자루형 토지로서 오피스텔 건부지로 이용 중임. * 본건이 속한 건물은 북동측으로 노폭 약 8미터 내외의 포장도로에 접함.
참고사항
* 외필지 : 영등포동2가 233-3 * 집합건축물대장상 ‘오피스텔’로 등재되어 있으나, 현황 주거용으로 사용중임 ▶ 3계에서 1계로 이관(2025.10.27기준)
등기부 현황
건물
| 순위 | 접수일자 | 권리종류 | 권리자 | 채권금액 | 소멸여부 | 비고 |
|---|---|---|---|---|---|---|
| 1(갑2) | 2021-07-16 | 공유자전원지분전부이전 | 문OO | 0 | 매매, 거래가액 금219,000,000원 | |
| 2(을6) | 2023-05-24 | 주택임차권(건물전부) | 김OO | 219,000,000 | 소멸 | 전입:2021.06.29확정:2021.06.29 |
| 3(갑3) | 2023-10-16 | 압류 | 국OOOOOOOOO | 0 | 소멸 | 말소기준등기 |
| 4(갑4) | 2024-11-25 | 강제경매 | 주OOOOOOOOOOOOOOOOO | 219,000,000 | 소멸 | 2024타경143316 |
관련 문서 (PDF)
클릭하면 원본 파일이 열립니다