목록으로
최종 업데이트: 2026-04-25 00:06
2025타경6445
서울남부지방법원 본원 1계(02-2192-1331)
부동산
부동산강제경매
유찰
진행중
| 소재지 |
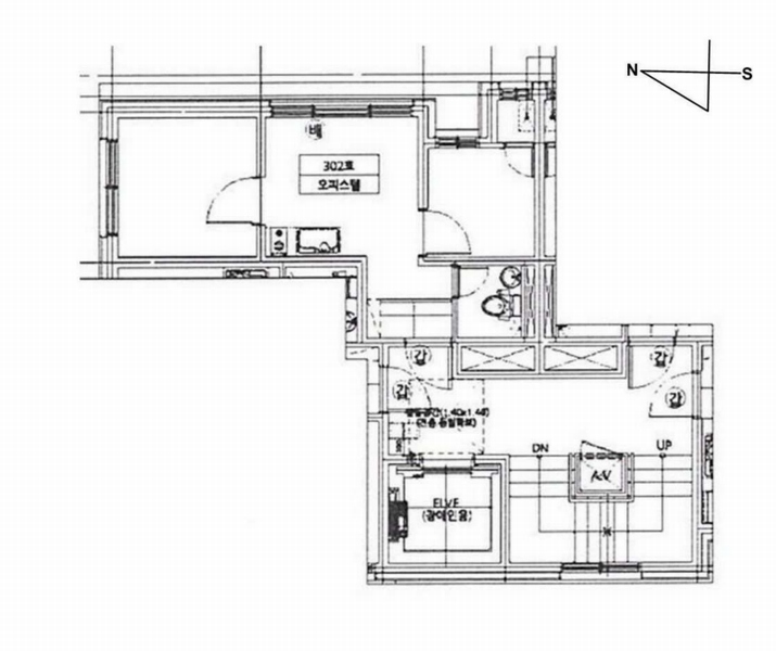
서울특별시 강서구 월정로20길 82-6, 혜성오피스텔 3층 302호
(서울특별시 강서구 화곡동 916-7)
|
|---|---|
| 물건종류 | 오피스텔 |
| 면적 |
토지: 7.13㎡ (2.16평)
건물: 27.06㎡ (8.19평)
|
| 현재 위치 | 서울특별시 강서구 월정로20길 82-6, 혜성오피스텔 3층 302호 |
| 소유자 / 채무자 | 박성현 / 박성현 |
| 채권자 | 주택도시보증공사 |
| 배당종기일 | 2025-04-21 |
감정가
254,000,000
최저가
162,560,000
보증금
16,256,000
입찰 진행 내역
| 회차/구분 | 입찰기일 | 최저매각가격 | 결과 |
|---|---|---|---|
| 1차 (진행) | 2026-02-05 | 254,000,000 | 유찰 |
| 2차 (진행) | 2026-03-26 | 203,200,000 | 유찰 |
| 3차 (진행) | 2026-05-07 | 162,560,000 | |
| 4차 (진행) | 2026-06-17 | 130,048,000 |
임차인 현황
| 임차인명 | 점유여부 | 전입/확정/배당 | 보증금 / 차임 | 예상배당액 | 대항력 |
|---|---|---|---|---|---|
| 이재강 | 주거용 전부 |
전입: 2021-06-30
확정: 2021-06-15 배당: 2023-04-07 |
254,000,000
월 0
|
0 | 있음 |
| 주택도시보증공사 | 주거용 전부 |
전입: 2021-06-30
확정: 2021-06-15 배당: 2025-04-21 |
254,000,000
월 0
|
0 | 있음 |
매각물건 현황
| 구분 | 순번 | 소재지 | 용도/구조/면적 | 감정가 | 비고 |
|---|---|---|---|---|---|
| 건물 | 12층중 3층 | 21.02.18 | 27.06㎡(8.19평) / 오피스텔 | 152,400,000 |
현황 및 위치
* 본건은 서울특별시 강서구 화곡동 소재 지하철2ㆍ5호선 ""까치산역"" 남서측 인근에 위치하며 주위는 동유형의 오피스텔, 주상용건물, 아파트, 다세대주택, 근린생활시설 등이 혼재하는 지역으로서 제반주위환경은 보통임. * 본건까지 보통차량진출입이 가능하며 주위에 노선버스정류장 및 지하철2ㆍ5호선인 ""까치산역"" 등 이 소재하여 대중교통상황은 보통임. * 인접필지 및 인접도로 대비 등고평탄한 세장형의 토지로서, 오피스텔 건부지 등으로 이용중임. * 본건 동측으로 월정로20길과 접함.
등기부 현황
건물
| 순위 | 접수일자 | 권리종류 | 권리자 | 채권금액 | 소멸여부 | 비고 |
|---|---|---|---|---|---|---|
| 1(갑2) | 2021-06-30 | 소유권이전(매매) | 박OO | 0 | 거래가액:254,000,000 | |
| 2(갑3) | 2022-01-20 | 압류 | 국OOOOOOOO | 0 | 소멸 | 말소기준등기 |
| 3(을1) | 2023-04-07 | 주택임차권(전부) | 이OO | 254,000,000 | 소멸 | 전입:2021.06.30확정:2021.06.15 |
| 4(갑4) | 2023-05-17 | 가압류 | 주OOOOOOO | 3,597,500,000 | 소멸 | 2023카단102947 |
| 5(갑6) | 2025-01-17 | 강제경매 | 주OOOOOOOOOOOOOOO | 254,000,000 | 소멸 | 2025타경6445 |
관련 문서 (PDF)
클릭하면 원본 파일이 열립니다