목록으로
최종 업데이트: 2026-04-25 00:30
2025타경9455
서울남부지방법원 본원 1계(02-2192-1331)
부동산
부동산강제경매
유찰
진행중
| 소재지 |
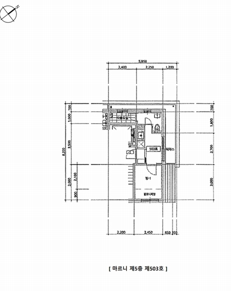
서울특별시 강서구 화곡로50길 26-4, 마르니 5층 503호
(서울특별시 강서구 화곡동 975-16)
|
|---|---|
| 물건종류 | 다세대(빌라) |
| 면적 |
토지: 13.04㎡ (3.94평)
건물: 17.67㎡ (5.35평)
|
| 현재 위치 | 서울특별시 강서구 화곡로50길 26-4, 마르니 5층 503호 |
| 소유자 / 채무자 | 서민 / 서민 |
| 채권자 | 주택도시보증공사 |
| 배당종기일 | 2025-07-07 |
감정가
232,000,000
최저가
118,784,000
보증금
11,878,400
입찰 진행 내역
| 회차/구분 | 입찰기일 | 최저매각가격 | 결과 |
|---|---|---|---|
| 1차 (진행) | 2025-12-11 | 232,000,000 | 유찰 |
| 2차 (진행) | 2026-02-05 | 185,600,000 | 유찰 |
| 3차 (진행) | 2026-03-26 | 148,480,000 | 유찰 |
| 4차 (진행) | 2026-05-07 | 118,784,000 |
임차인 현황
| 임차인명 | 점유여부 | 전입/확정/배당 | 보증금 / 차임 | 예상배당액 | 대항력 |
|---|---|---|---|---|---|
| 이창준 | 주거용 전부 |
전입: 2023-03-13
확정: 2023-02-17 배당: 2024-04-19 |
220,000,000
월 0
|
0 | 있음 |
| 주택도시보증공사 | 주거용 건물 전부 |
전입: 2023-03-13
확정: 2023-02-17 배당: 2025-04-08 |
220,000,000
월 0
|
0 | 있음 |
매각물건 현황
| 구분 | 순번 | 소재지 | 용도/구조/면적 | 감정가 | 비고 |
|---|---|---|---|---|---|
| 건물 | 6층중 5층 | 23.02.02 | 17.67㎡(5.35평) / 도시형생활주택(단지형다세대) | 139,200,000 |
현황 및 위치
* 본건은 서울특별시 강서구 화곡동 소재“강서구청”남측 인근에 위치하는 마르니 제5층 제503호로서 주위는 단독주택, 연립 및 다세대주택, 학교, 공원, 근린생활시설 등이 혼재하는 주거지대로서 제반 주위환경은 보통시 됨. * 본건까지 제반 차량의 진출입 가능하며, 인근에 버스정류장이 소재하여 대중교통 상황은 보통시 됨. * 본건은 위생 및 급배수설비, 난방설비 등이 되어있음. * 본건은 인접 도로 대비 등고 평탄한 2필 일단의 가장형 토지로 주거용 건부지로 이용중이며, 남동측으로 노폭 약 4미터의 도로와 접함
참고사항
* 외필지 :화곡동 975-17
등기부 현황
건물
| 순위 | 접수일자 | 권리종류 | 권리자 | 채권금액 | 소멸여부 | 비고 |
|---|---|---|---|---|---|---|
| 1(갑2) | 2023-03-15 | 소유권이전(매매) | 서O | 0 | ||
| 2(을4) | 2024-04-19 | 주택임차권(전부) | 이OO | 220,000,000 | 소멸 | 전입:2023.03.13확정:2023.02.17 |
| 3(갑3) | 2025-04-07 | 강제경매 | 주OOOOOOOOOOOOOOO | 220,000,000 | 소멸 | 말소기준등기2025타경9455 |
관련 문서 (PDF)
클릭하면 원본 파일이 열립니다