목록으로
최종 업데이트: 2026-04-26 16:39
2025타경10308
춘천지방법원 속초지원 2계(033-639-7643)
부동산
부동산임의경매
매각
진행중
| 소재지 |
-
(강원특별자치도 속초시 장사동 316-4)
|
|---|---|
| 물건종류 | 주택 |
| 면적 |
토지: 0.00㎡ (0평)
건물: 241.08㎡ (72.93평)
|
| 현재 위치 | 강원특별자치도 속초시 장사동 316-4 |
| 소유자 / 채무자 | (주)초설 / 박화순 |
| 채권자 | 고성군산림조합 |
| 배당종기일 | 2025-09-25 |
감정가
539,705,800
최저가
264,456,000
보증금
26,445,600
진행 상태 / 매각 결과
매각
completed = false
매각허가결정
| 상태 코드 | 2 | 상태 텍스트 | 매각허가결정 |
|---|---|---|---|
| 매각가 | 308,000,000원 | 매각가율 | 0% |
| 입찰 수 | 1 | 매수인 | 임규용 |
| 차순위 입찰가 | 0원 | 매각허가 결정 | 매각허가결정 |
| 매각허가 결정일 | 2026-04-15 | 대금 지급기한 | - |
| 대금 지급상태 | - | 배당기일 | - |
| 배당 종결일 | - | 다음 확인 예정 | 2026-04-27 09:00 |
입찰 진행 내역
| 회차/구분 | 입찰기일 | 최저매각가격 | 결과 |
|---|---|---|---|
| 1차 (진행) | 2026-02-04 | 539,705,800 | 유찰 |
| 2차 (진행) | 2026-03-04 | 377,794,000 | 유찰 |
| 3차 (진행) | 2026-04-08 | 264,456,000 |
진행 메모
매각 : 308,000,000 원 (57.07%)
(입찰 1 명,매수인:임규용)
매각결정기일 : 2026.04.15 - 매각허가결정
대금지급기한 : 2026.05.22
임차인 현황
| 임차인명 | 점유여부 | 전입/확정/배당 | 보증금 / 차임 | 예상배당액 | 대항력 |
|---|---|---|---|---|---|
| 도한억 | 주거용 토지,건물 전부 |
전입: -
확정: - 배당: - |
120,000,000
월 0
|
0 | - |
매각물건 현황
| 구분 | 순번 | 소재지 | 용도/구조/면적 | 감정가 | 비고 |
|---|---|---|---|---|---|
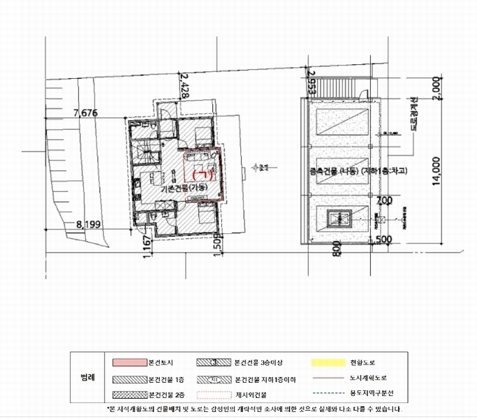
| 토지 | 토지 | 장사동 316-4 | 도시지역,자연녹지지역,가축사육제한구역 / 대 585㎡ (176.96평) | 351,000 | 205,335,000원 |
| 건물 | 1 | 장천2길 38 [장사동 316-4 주건축물1]일반목구조 목구조지붕 등 1.일반목구조 목구조지붕, 2.일반목구조 목구조지붕, 3.철근콘크리트구조 콘크리트지붕 | 1층 / 단독주택 | 93 | 1,760,000원 |
| 2 | 2층 | 단독주택 | 47㎡(14.22평) / 1,760,000원 | 82,720,000 | * 사용승인:2018.12.31* 개별난방설비 |
| 3 | 지하1층 | 차고, 데크, 옥외수영장 | 84㎡(25.41평) / 1,012,000원 | 85,008,000 | * 사용승인:2019.07.31* 부속건물 |
| 제시외기타 | 장천2길 38 [장사동 316-4 주건축물1]목조 기타지붕 | 차양 / 17㎡(5.14평) | 166,000 | 2,822,000원 |
현황 및 위치
* 본건은 강원특별자치도 속초시 장사동 소재 "씨앤스타 타운하우스" 내에 위치하며, 인근은 타운하우스 내 단독주택, 택지 조성중인 임야, 농경지, 임야 등으로 형성된 근교농촌지대임. * 본건까지 차량접근 가능하고 시내버스정류장과의 거리 및 운행빈도 등으로 볼 때 대중교통사 정은 보통 정도임. * 세장형상의 토지로서 현황 단독주택 부지로 이용중임. * 본건 동측으로 로폭 약 6미터 내외의 포장도로를 이용하여 접근가능함.
참고사항
* 일괄매각 * 제시외건물 포함하며 토지 지상에 야외 수영장 및 소나무 3그루 있음(현황조사사참조). * 본건 토지상에 석축 잔디 조경석 조경수 등은 일반적인 거래관행을 고려하여 토지에 포함하여 평가하였음 * 본건 경매대상 건물의 부속건물차고 옥상의 데크 및 옥외수영장 등은 일반적인 거래관행을 고하여 부속건물차고에 포함하여 평가하였음
등기부 현황
건물
| 순위 | 접수일자 | 권리종류 | 권리자 | 채권금액 | 소멸여부 | 비고 |
|---|---|---|---|---|---|---|
| 1(갑2) | 2019-01-29 | 소유권이전(매매) | 박OO | 0 | ||
| 2(을1) | 2019-01-29 | 근저당 | 고OOOOOO | 300,000,000 | 소멸 | 말소기준등기 |
| 3(을4) | 2019-10-30 | 근저당 | 장OO | 100,000,000 | 소멸 | |
| 4(을6) | 2019-11-18 | 전세권(건물의 전부) | 도OO | 120,000,000 | 소멸 | 존속기간:2019.11.15~2021.11.15 |
| 5(갑3) | 2020-01-20 | 소유권이전(매매) | (OOOO | 0 | ||
| 6(갑8) | 2025-07-08 | 임의경매 | 고OOOOOO | 301,950,539 | 소멸 | 2025타경10308 |
관련 문서 (PDF)
클릭하면 원본 파일이 열립니다