목록으로
최종 업데이트: 2026-04-25 01:01
2025타경10464
서울남부지방법원 본원 1계(02-2192-1331)
부동산
부동산강제경매
유찰
진행중
| 소재지 |
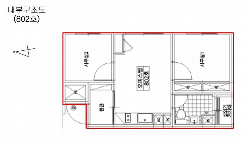
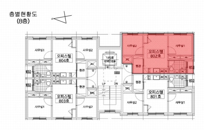
서울특별시 강서구 공항대로81길 32, 루미온 101동 8층 802호
(서울특별시 강서구 염창동 261-16)
|
|---|---|
| 물건종류 | 오피스텔 |
| 면적 |
토지: 9.91㎡ (3평)
건물: 29.96㎡ (9.06평)
|
| 현재 위치 | 서울특별시 강서구 공항대로81길 32, 루미온 101동 8층 802호 |
| 소유자 / 채무자 | 박영희 / 박영희 |
| 채권자 | 주택도시보증공사 |
| 배당종기일 | 2025-09-17 |
감정가
378,000,000
최저가
241,920,000
보증금
24,192,000
입찰 진행 내역
| 회차/구분 | 입찰기일 | 최저매각가격 | 결과 |
|---|---|---|---|
| 1차 (진행) | 2026-02-05 | 378,000,000 | 유찰 |
| 2차 (진행) | 2026-03-26 | 302,400,000 | 유찰 |
| 3차 (진행) | 2026-05-07 | 241,920,000 | |
| 4차 (진행) | 2026-06-17 | 193,536,000 |
임차인 현황
| 임차인명 | 점유여부 | 전입/확정/배당 | 보증금 / 차임 | 예상배당액 | 대항력 |
|---|---|---|---|---|---|
| 조윤찬 | 주거용 전부 |
전입: 2022-06-27
확정: 2022-06-02 배당: 2023-08-11 |
389,000,000
월 0
|
0 | 있음 |
| 주택도시보증공사 | 주거용 전부 |
전입: 2022-06-27
확정: 2022-06-02 배당: 2025-06-17 |
389,000,000
월 0
|
0 | 있음 |
매각물건 현황
| 구분 | 순번 | 소재지 | 용도/구조/면적 | 감정가 | 비고 |
|---|---|---|---|---|---|
| 건물 | 11층중 8층 | 22.01.11 | 29.96㎡(9.06평) / 오피스텔 | 226,800,000 | * 개별난방설비 |
현황 및 위치
* 본건은 서울특별시 강서구 염창동에 소재하는 지하철9호선 ""염창역"" 북측 인근에 위치하며 주위는 오피스텔, 다세대주택, 아파트 및 근린생활시설 등이 소재하는 주택지대로 주위환경은 보통임. * 본건까지 차량의 진출입이 자유롭고, 인근에 버스정류장 및 지하철9호선 ""염창역""이 소재하는 등 제반 교통여건 양호함. * 사다리형 평지로서, 오피스텔 건부지로 이용중임. * 본건 서측으로 약 6m 도로에 접함.
등기부 현황
건물
| 순위 | 접수일자 | 권리종류 | 권리자 | 채권금액 | 소멸여부 | 비고 |
|---|---|---|---|---|---|---|
| 1(갑3) | 2022-06-27 | 소유권이전(매매) | 박OO | 0 | 거래가액:389,000,000 | |
| 2(을3) | 2023-08-11 | 주택임차권(전부) | 조OO | 389,000,000 | 소멸 | 전입:2022.06.27확정:2022.06.02 |
| 3(갑4) | 2025-06-18 | 강제경매 | 주OOOOOOOOOOOOOOO | 389,000,000 | 소멸 | 말소기준등기2025타경10464 |
관련 문서 (PDF)
클릭하면 원본 파일이 열립니다