목록으로
최종 업데이트: 2026-04-25 01:26
2025타경10741
서울남부지방법원 본원 1계(02-2192-1331)
부동산
부동산강제경매
유찰
진행중
| 소재지 |
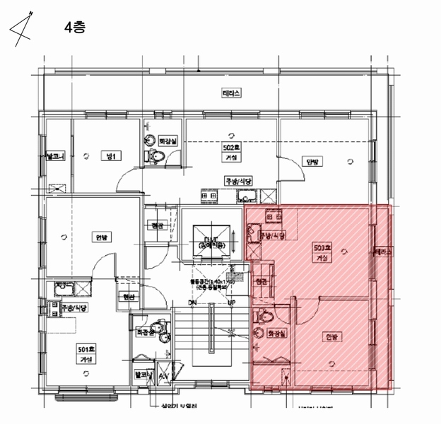
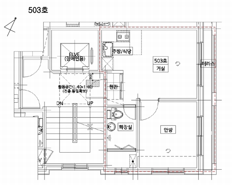
서울특별시 강서구 가로공원로78길 47, 케이씨하우징 5층 503호
(서울특별시 강서구 화곡동 370-30)
|
|---|---|
| 물건종류 | 다세대(빌라) |
| 면적 |
토지: 16.13㎡ (4.88평)
건물: 26.77㎡ (8.1평)
|
| 현재 위치 | 서울특별시 강서구 가로공원로78길 47, 케이씨하우징 5층 503호 |
| 소유자 / 채무자 | 김연희 / 김연희 |
| 채권자 | 주택도시보증공사 |
| 배당종기일 | 2025-10-01 |
감정가
268,000,000
최저가
171,520,000
보증금
17,152,000
입찰 진행 내역
| 회차/구분 | 입찰기일 | 최저매각가격 | 결과 |
|---|---|---|---|
| 1차 (진행) | 2026-02-05 | 268,000,000 | 유찰 |
| 2차 (진행) | 2026-03-26 | 214,400,000 | 유찰 |
| 3차 (진행) | 2026-05-07 | 171,520,000 | |
| 4차 (진행) | 2026-06-17 | 137,216,000 |
임차인 현황
| 임차인명 | 점유여부 | 전입/확정/배당 | 보증금 / 차임 | 예상배당액 | 대항력 |
|---|---|---|---|---|---|
| 김성환 | 주거용 전부 |
전입: 2021-06-21
확정: 2021-06-22 배당: 2023-07-26 |
259,000,000
월 0
|
0 | 있음 |
| 주택도시보증공사 | 주거용 전부 |
전입: 2021-06-21
확정: 2021-06-22 배당: 2025-09-24 |
259,000,000
월 0
|
0 | 있음 |
매각물건 현황
| 구분 | 순번 | 소재지 | 용도/구조/면적 | 감정가 | 비고 |
|---|---|---|---|---|---|
| 건물 | 6층중 5층 | 21.04.02 | 26.77㎡(8.1평) / 방1, 화장실1, 거실, 주방 등 | 268,000,000 |
현황 및 위치
* 본건은 서울특별시 강서구 화곡동 소재 ""월정초등학교"" 동측 인근에 위치함. 본건 주위는 다가구, 다세대주택, 근린주택 등 혼재하는 주택지대로 주위환경 보통임. * 본건까지 차량접근이 가능하고, 지하철 화곡역(5호선), 까치산역(2, 5호선)이 도보 15분 내외 거리에 위치하며, 지선, 일반버스 등 정차하는 버스정류장이 도보 5분 내외 거리에 위치하는 등 교통상황 보통임. * 2필 일단의 정방형 평지로, 도시형생활주택(단지형다세대)의 부지로 이용중임. * 본건 북측과 서측으로 각각 세로(약 3m)에 접함.
참고사항
* 외필지 : 화곡동 370-91
등기부 현황
건물
| 순위 | 접수일자 | 권리종류 | 권리자 | 채권금액 | 소멸여부 | 비고 |
|---|---|---|---|---|---|---|
| 1(갑4) | 2021-07-26 | 소유권이전(매매) | 김OO | 0 | 거래가액:259,000,000 | |
| 2(을1) | 2023-07-26 | 주택임차권(전부) | 김OO | 259,000,000 | 소멸 | 전입:2021.06.21확정:2021.06.22 |
| 3(갑5) | 2023-08-08 | 압류 | 국OOOOOOOO | 0 | 소멸 | 말소기준등기 |
| 4(갑6) | 2025-07-02 | 강제경매 | 주OOOOOOOOOOOOOOOOO | 259,000,000 | 소멸 | 2025타경10741 |
관련 문서 (PDF)
클릭하면 원본 파일이 열립니다