목록으로
최종 업데이트: 2026-04-25 01:39
2025타경10898
서울남부지방법원 본원 1계(02-2192-1331)
부동산
부동산강제경매
유찰
진행중
| 소재지 |
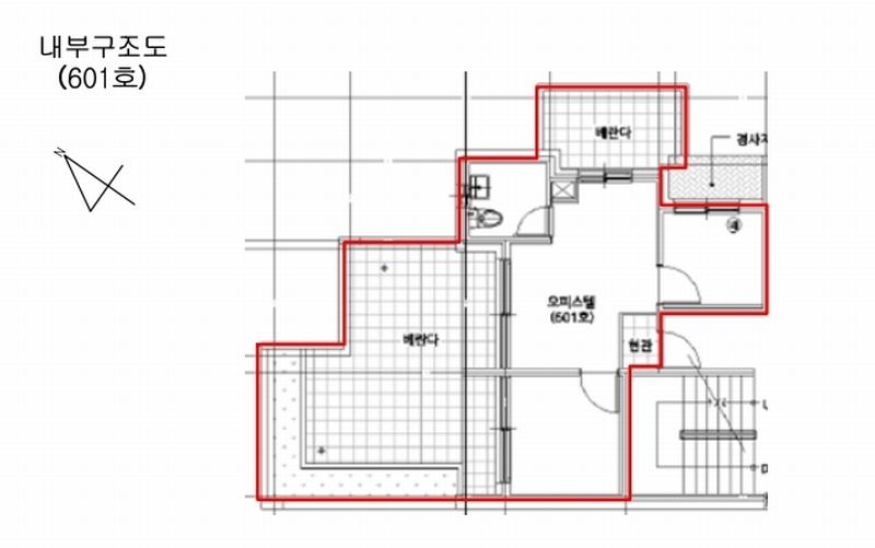
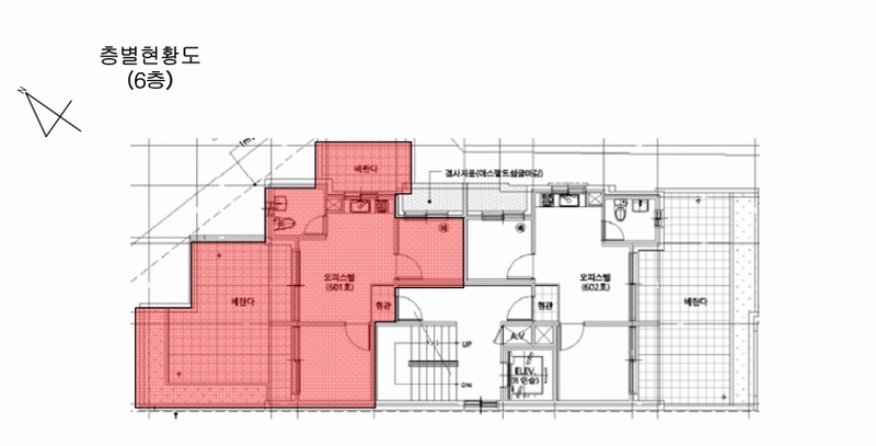
서울특별시 금천구 독산로51길 11-3, 모던하우스 6층 601호
(서울특별시 금천구 독산동 1044)
|
|---|---|
| 물건종류 | 오피스텔 |
| 면적 |
토지: 16.46㎡ (4.98평)
건물: 29.99㎡ (9.07평)
|
| 현재 위치 | 서울특별시 금천구 독산로51길 11-3, 모던하우스 6층 601호 |
| 소유자 / 채무자 | 박현숙 / 박현숙 |
| 채권자 | 주택도시보증공사 |
| 배당종기일 | 2025-10-13 |
감정가
239,000,000
최저가
152,960,000
보증금
15,296,000
입찰 진행 내역
| 회차/구분 | 입찰기일 | 최저매각가격 | 결과 |
|---|---|---|---|
| 1차 (진행) | 2026-02-05 | 239,000,000 | 유찰 |
| 2차 (진행) | 2026-03-26 | 191,200,000 | 유찰 |
| 3차 (진행) | 2026-05-07 | 152,960,000 | |
| 4차 (진행) | 2026-06-17 | 122,368,000 |
임차인 현황
| 임차인명 | 점유여부 | 전입/확정/배당 | 보증금 / 차임 | 예상배당액 | 대항력 |
|---|---|---|---|---|---|
| 변희경 | 주거용 건물 전부 |
전입: 2020-09-25
확정: 2020-09-07 배당: 2023-08-08 |
277,000,000
월 0
|
0 | 있음 |
| 조신영 | 주거용 미상 |
전입: 2024-06-07
확정: - 배당: - |
0
월 0
|
0 | 없음 |
| 주택도시보증공사 | 주거용 전부 |
전입: 2020-09-25
확정: 2020-09-07 배당: - |
277,000,000
월 0
|
0 | 있음 |
매각물건 현황
| 구분 | 순번 | 소재지 | 용도/구조/면적 | 감정가 | 비고 |
|---|---|---|---|---|---|
| 건물 | 7층중 6층 | 20.06.26 | 29.99㎡(9.07평) / 오피스텔 | 143,400,000 | * 개별난방설비 |
현황 및 위치
* 본건은 서울특별시 금천구 독산동에 소재하는 "서울독산초등학교" 남동측 인근에 위치하며 주위는 오피스텔, 다세대주택, 아파트 및 근린생활시설 등이 소재하는 주택지대로 주위환경은 보통임. * 본건까지 차량의 진출입이 자유롭고, 인근에 버스정류장이 소재하는 등 제반 교통여건 보통임. * 2필지 일단의 사다리형 완경사지로서, 다세대주택, 오피스텔 건부지로 이용중임. * 본건 북측, 남서측으로 약 6m 도로에 접함.
참고사항
* 외필지 : 독산동 1044-1
등기부 현황
건물
| 순위 | 접수일자 | 권리종류 | 권리자 | 채권금액 | 소멸여부 | 비고 |
|---|---|---|---|---|---|---|
| 1(갑2) | 2020-10-15 | 공유자전원지분전부이전 | 박OO | 0 | 매매, 거래가액:265,000,000 | |
| 2(갑3) | 2023-04-24 | 가압류 | 주OOOOOOOOOOOOOOOOO | 1,949,000,000 | 소멸 | 말소기준등기2023카단102346 |
| 3(을4) | 2023-08-08 | 주택임차권(건물 전부) | 변OO | 277,000,000 | 소멸 | 전입:2020.09.25확정:2020.09.07보:277,000,000원 (2022년8월9일자로 금12,000,000원 증액), 1차 확:2020년9월7일(금265,000,000원), 2차 확:2022년8월12일(증액한 금12,000,000원) |
| 4(갑4) | 2025-07-10 | 강제경매 | 주OOOOOOOOOOOOOOOOO | 277,000,000 | 소멸 | 2025타경10898 |
관련 문서 (PDF)
클릭하면 원본 파일이 열립니다