목록으로
최종 업데이트: 2026-04-25 07:55
2025타경8968
서울남부지방법원 본원 11계(02-2192-1302)
부동산
부동산강제경매
유찰
진행중
| 소재지 |
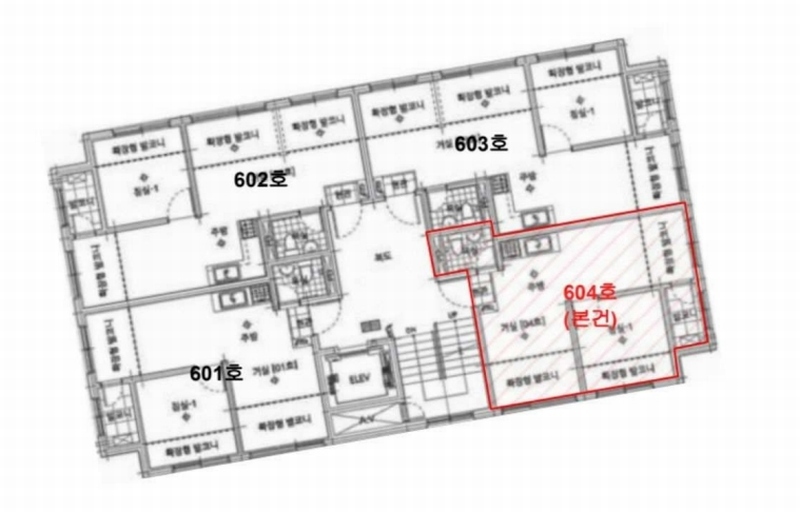
서울특별시 양천구 가로공원로 100, 신월동리버스타운 101동 6층 604호
(서울특별시 양천구 신월동 148-4)
|
|---|---|
| 물건종류 | 다세대(빌라)[공급11평형] |
| 면적 |
토지: 9.12㎡ (2.76평)
건물: 25.79㎡ (7.8평)
|
| 현재 위치 | 서울특별시 양천구 가로공원로 100, 신월동리버스타운 101동 6층 604호 |
| 소유자 / 채무자 | 이재홍 / 이재홍 |
| 채권자 | 정태진 |
| 배당종기일 | 2025-06-16 |
감정가
213,000,000
최저가
55,837,000
보증금
5,583,700
입찰 진행 내역
| 회차/구분 | 입찰기일 | 최저매각가격 | 결과 |
|---|---|---|---|
| 1차 (진행) | 2025-08-07 | 213,000,000 | 유찰 |
| 2차 (진행) | 2025-09-25 | 170,400,000 | 유찰 |
| 3차 (진행) | 2025-11-05 | 136,320,000 | 유찰 |
| 4차 (진행) | 2025-12-16 | 109,056,000 | 유찰 |
| 5차 (진행) | 2026-02-10 | 87,245,000 | 유찰 |
| 6차 (진행) | 2026-03-31 | 69,796,000 | 유찰 |
| 7차 (진행) | 2026-05-12 | 55,837,000 | |
| 8차 (진행) | 2026-06-18 | 44,670,000 |
임차인 현황
| 임차인명 | 점유여부 | 전입/확정/배당 | 보증금 / 차임 | 예상배당액 | 대항력 |
|---|---|---|---|---|---|
| 정태진 | 주거용 전부 |
전입: 2018-10-10
확정: 2018-09-27 배당: 2024-06-17 |
189,000,000
월 0
|
0 | 있음 |
매각물건 현황
| 구분 | 순번 | 소재지 | 용도/구조/면적 | 감정가 | 비고 |
|---|---|---|---|---|---|
| 건물 | 8층중 6층 | 18.06.25 | 25.79㎡(7.8평)[공급11평] / 주거용 | 63,900,000 |
현황 및 위치
* 본건은 서울특별시 양천구 신월동 소재 "양서중학교" 북서측 인근에 위치하며, 주위는공동주택, 오피스텔 및 근린생활시설 등이 소재하여 제반주위환경은 보통임. * 본건까지 차량 진출입이 가능하고, 인근에 버스정류장이 소재하는 등 제반교통상황은무난시됨. * 본건은 2필지 일단의 가장형 토지로서, 공동주택 건부지로 이용중임. * 본건 북측으로 노폭 약 25미터 내외, 남측으로 노폭 약 4미터 내외의 도로에 접함.
참고사항
* 외필지 :신월동148-5
등기부 현황
건물
| 순위 | 접수일자 | 권리종류 | 권리자 | 채권금액 | 소멸여부 | 비고 |
|---|---|---|---|---|---|---|
| 1(갑5) | 2018-10-11 | 소유권이전(매매) | 이OO | 0 | ||
| 2(갑6) | 2020-07-23 | 압류 | 서OOOOOOO | 0 | 소멸 | 말소기준등기 |
| 3(갑7) | 2020-11-04 | 가압류 | 주OOOOOOO | 500,000,000 | 소멸 | 2020카단104364 |
| 4(갑8) | 2021-03-26 | 압류 | 국OOOOOOOO | 0 | 소멸 | |
| 5(갑9) | 2021-03-31 | 압류 | 국OOOOOOOO | 0 | 소멸 | |
| 6(갑10) | 2022-05-16 | 압류 | 국OOOOOOOOO | 0 | 소멸 | |
| 7(갑11) | 2022-05-24 | 압류 | 의OOO | 0 | 소멸 | |
| 8(을1) | 2024-06-17 | 주택임차권(전부) | 정OO | 189,000,000 | 전입:2018.10.10확정:2018.09.27 | |
| 9(갑12) | 2025-03-13 | 강제경매 | 정OO | 189,000,000 | 소멸 | 2025타경8968 |
| 10(갑13) | 2025-08-19 | 압류 | 영OOOOOOOOOO | 0 | 소멸 |
관련 문서 (PDF)
클릭하면 원본 파일이 열립니다