목록으로
최종 업데이트: 2026-04-25 14:31
2025타경4302
서울남부지방법원 본원 10계(02-2192-1340)
부동산
부동산강제경매
유찰
진행중
| 소재지 |
서울특별시 강서구 방화대로50길 48, 션밸리 5층 502호
(서울특별시 강서구 방화동 134-10)
|
|---|---|
| 물건종류 | 다세대(빌라)[공급10평형] |
| 면적 |
토지: 19.40㎡ (5.87평)
건물: 29.24㎡ (8.85평)
|
| 현재 위치 | 서울특별시 강서구 방화대로50길 48, 션밸리 5층 502호 |
| 소유자 / 채무자 | 이동훈 / 이동훈 |
| 채권자 | 김태윤 |
| 배당종기일 | 2025-04-10 |
감정가
214,000,000
최저가
87,654,000
보증금
8,765,400
입찰 진행 내역
| 회차/구분 | 입찰기일 | 최저매각가격 | 결과 |
|---|---|---|---|
| 1차 (진행) | 2025-11-12 | 214,000,000 | 유찰 |
| 2차 (진행) | 2025-12-23 | 171,200,000 | 유찰 |
| 3차 (진행) | 2026-02-11 | 136,960,000 | 유찰 |
| 4차 (진행) | 2026-04-01 | 109,568,000 | 유찰 |
| 5차 (진행) | 2026-05-13 | 87,654,000 |
임차인 현황
| 임차인명 | 점유여부 | 전입/확정/배당 | 보증금 / 차임 | 예상배당액 | 대항력 |
|---|---|---|---|---|---|
| 김태윤 | 주거용 전부 |
전입: 2019-07-12
확정: 2019-06-26 배당: 2025-01-03 |
190,000,000
월 0
|
0 | 있음 |
| 이주은 | 주거용 미상 |
전입: 2024-10-14
확정: - 배당: - |
0
월 0
|
0 | 없음 |
매각물건 현황
| 구분 | 순번 | 소재지 | 용도/구조/면적 | 감정가 | 비고 |
|---|---|---|---|---|---|
| 건물 | 5층중 5층 | 14.12.18 | 29.24㎡(8.85평)[공급10평] / 주거용 | 128,400,000 | * 도시가스에 의한 개별난방설비 |
현황 및 위치
* 서울특별시 강서구 방화동 소재 "서울정곡초등학교" 북측 인근에 위치하며, 주위는 다세대주택, 단독주택, 아파트, 근린생활시설 등이 혼재하는 주거지대임. * 차량 접근이 가능하며, 인근에 버스정류장이 소재하여 대중교통여건은 보통임. * 인접필지와 도로 대비 등고평탄한 사다리형 토지이며, 다세대주택 부지로 이용중임. * 북서측으로 폭 약 2.5미터 내외의 도로에 접함.
참고사항
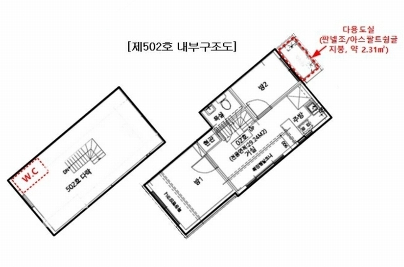
* 대상물건의 내부에는 계단으로 연결된 다락층(계단 부분 포함, 평면도 기준 추정 면적 7.2m × 3.4m = 24.48㎡)이 소재함. * 대상물건의 외부 베란다 부분이 다용도실(판넬조 아스팔트슁글지붕, 약 2.31㎡)로 이용되고 있으나, 그 구조, 면적, 해체 또는 철거 용이성 등을 고려하여 감정평가에 포함하지 아니하였으니 참고하시기 바람.
등기부 현황
건물
| 순위 | 접수일자 | 권리종류 | 권리자 | 채권금액 | 소멸여부 | 비고 |
|---|---|---|---|---|---|---|
| 1(갑4) | 2020-06-11 | 소유권이전(매매) | 이OO | 0 | 거래가액:190,000,000 | |
| 2(을5) | 2020-06-11 | 근저당 | 김OO | 160,000,000 | 소멸 | 말소기준등기 |
| 3(을6) | 2023-08-01 | 주택임차권(전부) | 김OO | 190,000,000 | 전입:2019.07.12확정:2019.06.26 | |
| 4(갑7) | 2025-01-08 | 강제경매 | 김OO | 190,000,000 | 소멸 | 2025타경4302 |
관련 문서 (PDF)
클릭하면 원본 파일이 열립니다