목록으로
최종 업데이트: 2026-04-25 19:41
2025타경9097
서울남부지방법원 본원 13계(02-2192-1273)
부동산
부동산강제경매
유찰
진행중
| 소재지 |
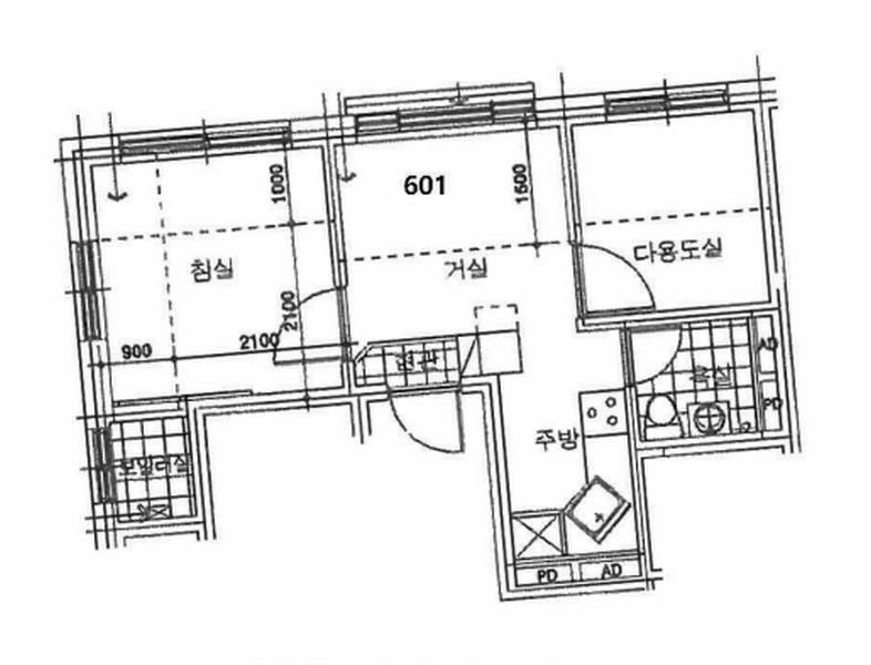
서울특별시 강서구 강서로17길 105, 포르테하임2 6층 601호
(서울특별시 강서구 화곡동 421-21)
|
|---|---|
| 물건종류 | 다세대(빌라) |
| 면적 |
토지: 12.98㎡ (3.93평)
건물: 20.81㎡ (6.3평)
|
| 현재 위치 | 서울특별시 강서구 강서로17길 105, 포르테하임2 6층 601호 |
| 소유자 / 채무자 | 박길준 / 박길준 |
| 채권자 | 주택도시보증공사 |
| 배당종기일 | 2025-06-16 |
감정가
268,000,000
최저가
137,216,000
보증금
13,721,600
입찰 진행 내역
| 회차/구분 | 입찰기일 | 최저매각가격 | 결과 |
|---|---|---|---|
| 1차 (진행) | 2026-01-07 | 268,000,000 | 유찰 |
| 2차 (진행) | 2026-02-24 | 214,400,000 | 유찰 |
| 3차 (진행) | 2026-04-02 | 171,520,000 | 유찰 |
| 4차 (진행) | 2026-05-14 | 137,216,000 |
임차인 현황
| 임차인명 | 점유여부 | 전입/확정/배당 | 보증금 / 차임 | 예상배당액 | 대항력 |
|---|---|---|---|---|---|
| 손정현 | 주거용 미상 |
전입: 2025-01-24
확정: - 배당: - |
0
월 0
|
0 | - |
| 이주현 | 주거용 전부 |
전입: 2022-03-10
확정: 2022-02-16 배당: 2024-03-22 |
315,000,000
월 0
|
0 | 있음 |
| 주택도시보증공사 | 주거용 전부 |
전입: 2022-03-10
확정: 2022-02-16 배당: 2025-03-13 |
315,000,000
월 0
|
0 | 있음 |
매각물건 현황
| 구분 | 순번 | 소재지 | 용도/구조/면적 | 감정가 | 비고 |
|---|---|---|---|---|---|
| 건물 | 6층중 6층 | 22.01.12 | 20.81㎡(6.3평) / 도시형생활주택(단지형다세대주택) | 80,400,000 | * 도시가스에 의한 난방설비 |
현황 및 위치
* 본건은 서울특별시 강서구 화곡동 "화곡1동주민센터" 북서측 인근에 소재하고 주위는 아파트 단지, 다세대주택, 다가구주택, 학교 및 근린생활시설 등이 혼재하는 지역으로서 제반 주위 환경은 보통임. * 본건까지 차량의 진출입이 가능하고 인근에 버스정류장이 소재하는 등 제반대중교통 이용은 보통임. * 인접지와 등고평탄하게 조성된 정방형 토지로서, 도시형생활주택(단지형다세대) 건부지로 이 용중임. * 북측으로 노폭 약 11미터 포장도로에 접함.
등기부 현황
건물
| 순위 | 접수일자 | 권리종류 | 권리자 | 채권금액 | 소멸여부 | 비고 |
|---|---|---|---|---|---|---|
| 1(갑2) | 2022-03-10 | 공유자전원지분전부이전 | 박OO | 0 | 거래가액:315,000,000 ,매매 | |
| 2(을3) | 2024-03-22 | 주택임차권(전부) | 이OO | 315,000,000 | 소멸 | 전입:2022.03.10확정:2022.02.16 |
| 3(갑5) | 2025-03-14 | 강제경매 | 주OOOOOOOOOOOOOOO | 315,000,000 | 소멸 | 말소기준등기2025타경9097 |
관련 문서 (PDF)
클릭하면 원본 파일이 열립니다