목록으로
최종 업데이트: 2026-04-25 20:24
2025타경9894
서울남부지방법원 본원 13계(02-2192-1273)
부동산
부동산강제경매
유찰
진행중
| 소재지 |
서울특별시 금천구 금하로23라길 17-7, 웰트리움 2동 5층 502호
(서울특별시 금천구 시흥동 184-6)
|
|---|---|
| 물건종류 | 다세대(빌라)[공급12평형] |
| 면적 |
토지: 28.95㎡ (8.76평)
건물: 35.70㎡ (10.8평)
|
| 현재 위치 | 서울특별시 금천구 금하로23라길 17-7, 웰트리움 2동 5층 502호 |
| 소유자 / 채무자 | 김정훈 / 김정훈 |
| 채권자 | 주택도시보증공사 |
| 배당종기일 | 2025-07-31 |
감정가
273,000,000
최저가
174,720,000
보증금
17,472,000
입찰 진행 내역
| 회차/구분 | 입찰기일 | 최저매각가격 | 결과 |
|---|---|---|---|
| 1차 (진행) | 2026-02-24 | 273,000,000 | 유찰 |
| 2차 (진행) | 2026-04-02 | 218,400,000 | 유찰 |
| 3차 (진행) | 2026-05-14 | 174,720,000 | |
| 4차 (진행) | 2026-07-08 | 139,776,000 |
임차인 현황
| 임차인명 | 점유여부 | 전입/확정/배당 | 보증금 / 차임 | 예상배당액 | 대항력 |
|---|---|---|---|---|---|
| 이장복 | 주거용 전부 |
전입: 2021-09-07
확정: 2021-08-13 배당: 2023-08-25 |
249,000,000
월 0
|
0 | 있음 |
| 주택도시보증공사 | 주거용 전부 |
전입: 2021-09-07
확정: 2021-08-13 배당: 2025-07-31 |
249,000,000
월 0
|
0 | 있음 |
매각물건 현황
| 구분 | 순번 | 소재지 | 용도/구조/면적 | 감정가 | 비고 |
|---|---|---|---|---|---|
| 건물 | 5층중 5층 | 19.06.10 | 35.7㎡(10.8평)[공급12평] / 주거용 | 81,900,000 |
현황 및 위치
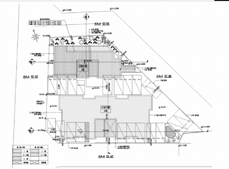
* 본건은 서울특별시 금천구 시흥동 소재 "금천초등학교" 남서측 인근에 위치하고 주위는 소규모 아파트단지, 다세대주택 및 단독주택, 근린생활시설, 근린공원 등이 위치함. * 본건소재 공동주택단지는 6-8미터 포장도로에 접하여 본건까지 차량진입 용이하고 인근에 노선버스정류장이 위치함. * 본건은 인접토지 및 도로 대비 경사지를 평탄하게 조성한 사다리형 토지로서 공동주택(단지형다세대주택) 건부지로 이용중임. * 본건은 남측 및 북동측으로 6미터도로, 서측으로 8미터 도로에 접함.
등기부 현황
건물
| 순위 | 접수일자 | 권리종류 | 권리자 | 채권금액 | 소멸여부 | 비고 |
|---|---|---|---|---|---|---|
| 1(갑4) | 2021-09-06 | 소유권이전(매매) | 김OO | 0 | 거래가액:249,000,000 | |
| 2(을1) | 2023-08-25 | 주택임차권(전부) | 이OO | 249,000,000 | 소멸 | 전입:2021.09.07확정:2021.08.13 |
| 3(갑5) | 2025-05-01 | 강제경매 | 주OOOOOOOOOOOOOOOOO | 249,000,000 | 소멸 | 말소기준등기2025타경9894 |
관련 문서 (PDF)
클릭하면 원본 파일이 열립니다