목록으로
최종 업데이트: 2026-04-26 07:18
2025타경9861
서울남부지방법원 본원 9계(02-2192-1339)
부동산
부동산강제경매
매각
진행중
| 소재지 |
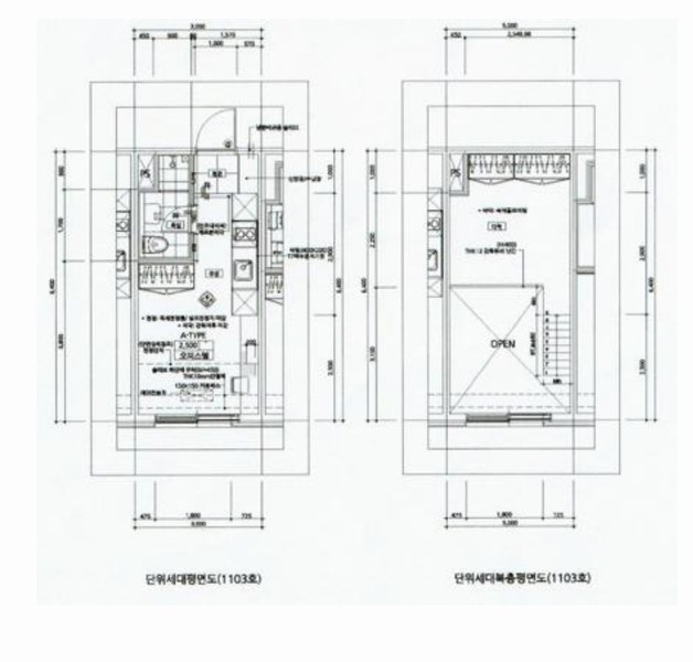
서울특별시 금천구 금하로5길 7, 지엠씨타워 11층 1103호
(서울특별시 금천구 시흥동 998-12)
|
|---|---|
| 물건종류 | 오피스텔[계약9평형] |
| 면적 |
토지: 6.69㎡ (2.02평)
건물: 17.18㎡ (5.2평)
|
| 현재 위치 | 서울특별시 금천구 금하로5길 7, 지엠씨타워 11층 1103호 |
| 소유자 / 채무자 | (주)광명지엠씨 / (주)광명지엠씨 |
| 채권자 | 이혜진 |
| 배당종기일 | 2025-08-06 |
감정가
132,000,000
최저가
105,600,000
보증금
10,560,000
진행 상태 / 매각 결과
매각
completed = false
매각허가결정
| 상태 코드 | 2 | 상태 텍스트 | 매각허가결정 |
|---|---|---|---|
| 매각가 | 130,000,000원 | 매각가율 | 0% |
| 입찰 수 | 1 | 매수인 | 금천구 이혜진 |
| 차순위 입찰가 | 0원 | 매각허가 결정 | 매각허가결정 |
| 매각허가 결정일 | 2026-04-14 | 대금 지급기한 | - |
| 대금 지급상태 | - | 배당기일 | 2026-05-15 |
| 배당 종결일 | - | 다음 확인 예정 | 2026-04-27 09:00 |
입찰 진행 내역
| 회차/구분 | 입찰기일 | 최저매각가격 | 결과 |
|---|---|---|---|
| 1차 (진행) | 2026-02-25 | 132,000,000 | 유찰 |
| 2차 (진행) | 2026-04-07 | 105,600,000 |
진행 메모
매각 : 130,000,000 원 (98.48%)
(입찰 1 명,매수인:금천구 이혜진)
매각결정기일 : 2026.04.14 - 매각허가결정
대금지급기한 : 2026.05.15
배당기일 : 2026.05.15
임차인 현황
| 임차인명 | 점유여부 | 전입/확정/배당 | 보증금 / 차임 | 예상배당액 | 대항력 |
|---|---|---|---|---|---|
| 이혜진 | 주거용 건물 전부 |
전입: 2021-12-08
확정: 2021-11-22 배당: 2025-06-03 |
135,000,000
월 0
|
0 | 있음 |
매각물건 현황
| 구분 | 순번 | 소재지 | 용도/구조/면적 | 감정가 | 비고 |
|---|---|---|---|---|---|
| 건물 | 12층중 11층 | 18.12.07 | 17.1767㎡(5.2평)[계약9평] / 오피스텔 | 39,600,000 |
현황 및 위치
* 본건은 서울특별시 금천구 시흥동 소재 "금천파출소" 서측 인근에 위치하는 ""지엠씨타워"" 제 11층 제1103호로서, 인근은 업무시설(오피스텔), 아파트 및 근린생활시설 등이 혼재하는 지 역으로 제반 주위환경은 보통임. * 본건까지 제반 차량의 진출입이 가능하며, 인근에 노선버스정류장 및 지하철 1호선 "금천구 청역"이 소재하는 증 제반 교통상황은 보통임. * 인접지 대비 등고평탄한 부정형의 토지로서, 업무시설 및 근린생활시설 건부지로 이용중임. * 본건 북측 및 남측으로 포장도로에 각각 접함.
참고사항
* 건축물대장 현황도상 내부구조는 복층(다락) 구조로 되어 있음.
전문가 코멘트
☞ 본건은 소액임차인의 최우선변제금 지급기준이 되는 담보물권이 없어 배당시점을 기준으로 소액임차인을 판단하였으니 참고하시기 바랍니다.
등기부 현황
건물
| 순위 | 접수일자 | 권리종류 | 권리자 | 채권금액 | 소멸여부 | 비고 |
|---|---|---|---|---|---|---|
| 1(갑5) | 2020-12-24 | 소유권이전 | (OOOOOOO | 0 | 신탁재산의귀속 | |
| 2(갑6) | 2022-02-15 | 가압류 | 임OO | 67,000,000 | 소멸 | 말소기준등기2022카단200449 |
| 3(갑7) | 2023-12-01 | 압류 | 국OOOOOOOO | 0 | 소멸 | |
| 4(갑8) | 2025-05-01 | 강제경매 | 이OO | 140,547,945 | 소멸 | 2025타경9861 |
| 5(을3) | 2025-11-05 | 주택임차권(건물 전부) | 이OO | 135,000,000 | 전입:2021.12.08확정:2021.11.22 |
관련 문서 (PDF)
클릭하면 원본 파일이 열립니다