목록으로
최종 업데이트: 2026-04-26 16:04
2024타경118635
서울중앙지방법원 본원 10계(02-530-2714)
부동산
부동산임의경매
취하/변경
진행중
| 소재지 |
-
(서울특별시 동작구 상도동 335-145)
|
|---|---|
| 물건종류 | 근린주택 |
| 면적 |
토지: 0.00㎡ (0평)
건물: 1110.58㎡ (335.95평)
|
| 현재 위치 | 서울특별시 동작구 상도동 335-145 |
| 소유자 / 채무자 | (주)푸른주택종합건설 / (주)푸른주택종합건설 |
| 채권자 | 광남새마을금고 |
| 배당종기일 | 2024-12-06 |
감정가
5,725,201,820
최저가
3,664,129,000
보증금
366,412,900
입찰 진행 내역
| 회차/구분 | 입찰기일 | 최저매각가격 | 결과 |
|---|---|---|---|
| (진행) | 2025-08-20 | 5,725,201,820 | 변경 |
| (진행) | 2025-11-05 | 5,725,201,820 | 변경 |
| 1차 (진행) | 2026-01-21 | 5,725,201,820 | 유찰 |
| 2차 (진행) | 2026-03-04 | 4,580,161,000 | 유찰 |
| (진행) | 2026-04-08 | 3,664,129,000 | 변경 |
| 3차 (진행) | 2026-05-13 | 3,664,129,000 |
임차인 현황
| 임차인명 | 점유여부 | 전입/확정/배당 | 보증금 / 차임 | 예상배당액 | 대항력 |
|---|---|---|---|---|---|
| (주)태건건축사사무소 | 점포 101호 |
전입: -
확정: 2024-08-14 배당: 2024-10-08 |
180,000,000
월 0
|
0 | 없음 |
| 강경모 | 주거용 4층문패상407호 |
전입: 2023-03-21
확정: 2023-03-07 배당: 2024-10-28 |
150,000,000
월 150,000
|
0 | 없음 |
| 강경호 | 주거용 204호 |
전입: 2023-01-26
확정: 2023-01-26 배당: 2024-10-15 |
150,000,000
월 0
|
0 | 없음 |
| 강성룡 | 주거용 3층문패상306호 |
전입: 2023-03-10
확정: 2023-02-23 배당: 2024-10-10 |
180,000,000
월 0
|
0 | 없음 |
| 강지혁 | 주거용 103호 |
전입: 2023-04-18
확정: 2023-04-18 배당: 2024-10-16 |
20,000,000
월 500,000
|
0 | 없음 |
| 곽소희 | 주거용 4층문패상 406호 |
전입: 2023-01-25
확정: 2023-01-10 배당: 2025-10-30 |
160,000,000
월 100,000
|
0 | 없음 |
| 김가영 | 주거용 3층문패상304호 |
전입: 2023-01-27
확정: 2023-01-13 배당: 2024-10-04 |
130,000,000
월 0
|
0 | 없음 |
| 김동범 | 주거용 2층문패상 203호 |
전입: 2023-04-12
확정: 2023-03-23 배당: 2024-10-22 |
120,000,000
월 100,000
|
0 | 없음 |
| 김성현 | 주거용 202호 |
전입: 2023-04-24
확정: 2023-04-24 배당: 2024-12-04 |
30,000,000
월 450,000
|
0 | 없음 |
| 김예린 | 주거용 2층문패상 201호 |
전입: 2023-01-31
확정: 2023-01-16 배당: 2024-12-06 |
140,000,000
월 0
|
0 | 없음 |
| 김왕성 | 주거용 3층문패상 305호 |
전입: 2023-01-30
확정: 2023-01-11 배당: 2024-10-11 |
140,000,000
월 0
|
0 | 없음 |
| 김정효 | 주거용 4층문패상 408호 |
전입: 2023-04-13
확정: 2023-03-13 배당: 2024-10-21 |
180,000,000
월 0
|
0 | 없음 |
| 남지희 | 주거용 4층문패상403호 |
전입: 2023-01-26
확정: 2023-01-12 배당: 2024-10-23 |
115,000,000
월 130,000
|
0 | 없음 |
| 노우주 | 주거용 106호 |
전입: 2023-01-31
확정: 2023-01-12 배당: 2024-11-05 |
100,000,000
월 450,000
|
0 | 없음 |
| 대수연 | 주거용 4층 문패상 402호 |
전입: 2023-01-25
확정: 2023-01-12 배당: 2024-10-17 |
120,000,000
월 100,000
|
0 | 없음 |
| 도도자산관리대부(주) | 점포 102호 |
전입: -
확정: - 배당: 2024-10-29 |
50,000,000
월 1,000,000
|
0 | - |
| 민규성 | 주거용 2층문패상205호 |
전입: 2023-01-31
확정: 2023-01-12 배당: 2024-10-10 |
150,000,000
월 0
|
0 | 없음 |
| 박영은 | 주거용 지1층문패상107호 |
전입: 2023-04-07
확정: 2023-03-20 배당: 2024-10-21 |
125,000,000
월 270,000
|
0 | 없음 |
| 석예린 | 주거용 지1층 문패상105호 |
전입: 2023-03-24
확정: 2023-03-02 배당: 2024-10-15 |
100,000,000
월 150,000
|
0 | 없음 |
| 송현호 | 주거용 4층 문패상401호 |
전입: 2023-02-13
확정: 2023-01-17 배당: 2024-11-01 |
120,000,000
월 100,000
|
0 | 없음 |
| 신예리 | 주거용 104호 |
전입: 2023-04-24
확정: 2023-04-24 배당: 2024-11-15 |
2,000,000
월 470,000
|
0 | 없음 |
| 엄효성 | 주거용 206호 |
전입: 2023-04-13
확정: 2023-04-13 배당: 2024-10-07 |
180,000,000
월 0
|
0 | 없음 |
| 유준영 | 주거용 2층문패상207호 |
전입: 2023-04-21
확정: 2023-03-30 배당: 2024-11-20 |
180,000,000
월 0
|
0 | 없음 |
| 이승헌 | 주거용 지1층문패상 101호 |
전입: 2023-04-14
확정: 2023-03-24 배당: 2024-10-11 |
130,000,000
월 0
|
0 | 없음 |
| 이혜진 | 주거용 3층 문패상 303호 |
전입: 2023-05-12
확정: 2023-04-20 배당: 2024-10-07 |
130,000,000
월 0
|
0 | 없음 |
| 이희재 | 주거용 3층문패상 301호 |
전입: 2023-01-30
확정: 2023-01-30 배당: 2024-11-20 |
140,000,000
월 0
|
0 | 없음 |
| 장예라 | 주거용 B02호 |
전입: 2023-08-28
확정: 2023-08-28 배당: 2024-12-03 |
40,000,000
월 350,000
|
0 | 없음 |
| 전지현 | 주거용 108호 |
전입: 2023-04-17
확정: 2023-04-14 배당: 2024-10-07 |
50,000,000
월 500,000
|
0 | 없음 |
| 전형철 | 주거용 3층문패상 308호 |
전입: 2023-02-27
확정: 2023-02-07 배당: 2024-11-26 |
164,000,000
월 80,000
|
0 | 없음 |
| 정윤서 | 주거용 3층 문패상307호 |
전입: 2023-07-07
확정: 2023-06-26 배당: 2024-10-08 |
150,000,000
월 150,000
|
0 | 없음 |
| 정준범 | 주거용 3층문패상302호 |
전입: 2023-01-31
확정: 2023-01-10 배당: 2024-10-16 |
140,000,000
월 0
|
0 | 없음 |
| 정현우 | 주거용 2층문패상 208호 |
전입: 2023-05-19
확정: 2023-05-04 배당: 2024-12-05 |
130,000,000
월 250,000
|
0 | 없음 |
| 최명신 | 주거용 4층문패상404호 |
전입: 2023-04-24
확정: 2023-03-24 배당: 2024-10-07 |
120,000,000
월 100,000
|
0 | 없음 |
| 한수연 | 주거용 4층문패상405호 |
전입: 2023-02-15
확정: 2023-02-01 배당: 2024-10-08 |
140,000,000
월 0
|
0 | 없음 |
매각물건 현황
| 구분 | 순번 | 소재지 | 용도/구조/면적 | 감정가 | 비고 |
|---|---|---|---|---|---|
| 토지 | 토지 | 상도동 335-145 | 대공방어협조구역,도시지역,토지거래계약에관한허가구역,제2종일반주...대공방어협조구역,도시지역,토지거래계약에관한허가구역,제2종일반주거지역,가축사육제한구역,과밀억제권역 / 대 301㎡ (91.05평) | 13,800,000 | 4,153,800,000원 |
| 건물 | 1 | 상도로13나길 5-1 [상도동 335-145 뜰안애]철근콘크리트구조 평스라브지붕 | 지하2층 / 주차장 | 112 | 980,000원 |
| 2 | 지하2층 | 제2종근린생활시설(사무소) | 79.64㎡(24.09평) / 1,176,000원 | 93,656,640 | * 사용승인:2022.12.30 |
| 3 | 지하1층 | 다중주택(8개호) | 180.16㎡(54.5평) / 1,470,000원 | 264,835,200 | * 사용승인:2022.12.30 |
| 4 | 1층 | 제2종근린생활시설(사무소) | 180.4㎡(54.57평) / 1,274,000원 | 229,829,600 | * 사용승인:2022.12.30 |
| 5 | 2층 | 다중주택(8개호) | 140.19㎡(42.41평) / 1,764,000원 | 247,295,160 | * 사용승인:2022.12.30 |
| 6 | 3층 | 다중주택(8개호) | 140.19㎡(42.41평) / 1,764,000원 | 247,295,160 | * 사용승인:2022.12.30 |
| 7 | 4층 | 다중주택(8개호) | 140.19㎡(42.41평) / 1,764,000원 | 247,295,160 | * 사용승인:2022.12.30 |
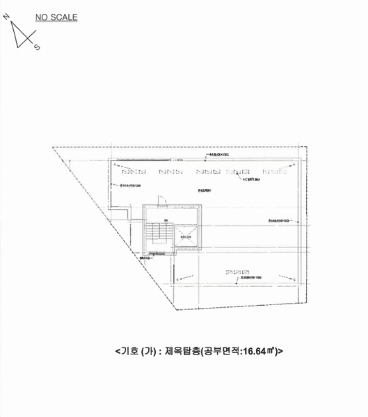
| 8 | 옥탑 | 계단실 | 16.64㎡(5.03평) / 980,000원 | 16,307,200 | * 사용승인:2022.12.30* 옥탑1층 |
| 제시외건물 | 상도로13나길 5-1 [상도동 335-145 뜰안애]철근콘크리트구조 평스라브지붕 | 단층 | 확장형발코니 / 120.63㎡(36.49평) | 950,000 | 114,598,500원 |
현황 및 위치
* 본건은 서울특별시 동작구 신대방동 소재 “신대방삼거리역(7호선)” 북동측 인근에 위치하며 주위에는 단독주택, 다세대주택, 근린생활시설 등이 혼재하는 지역으로서 제반 주위환경은 보통임. * 본건까지 차량접근이 가능하며, 인근에 버스정류장 및 지하철역(7호선 신대방삼거리역)이 소재하는 등 제반 대중교통여건은 양호함. * 사다리형 토지로서, 단독주택(다중주택) 및 제2종근린생활시설(사무소) 건부지로 이용중임. * 본건 북동측으로 노폭 약 5미터 내외의 도로가 있음.
참고사항
* 일괄매각. 제시외 건물 포함 * 본건 건축물현황도상의 호수별 출입문 표기가 실제 현황과 상이함 (감정평가서 참고) * 본건 지1층 건축물현황도상 공동취사장 부분은 다중주택으로 이용중인 것으로 탐문조사됨.
전문가 코멘트
** 본 건은 유치권신고가 된 경매물건입니다. 기본적인 유치권의 성립요건은 유치권의 원인채권이 경매되는 물건의 가치증가나 보존에 기여한 변제기가 지난 채권(주로 공사채권)이어야하고 채권회수를 위하여 유치(점유 = 직접, 간접점유 무관)를 하고 있어야 합니다. 조사방법은 먼저 신고내용을 입수하여 공사의 내용과 세목 등을 파악하고 이를 기초로 이해관계자 탐문, 현장조사 등을 통하여 성립여부에 대한 판단을 합니다. 기본적인 내용은 PC버전은 등기부 요약란 아래의 유치권/법정지상권 버튼을 눌러 참고하시고 모바일버전의 경우 자료실의 관련자료를 참고하시기 바랍니다. 본 건에서 구체적으로 검토하여야 할 사항은 다음과 같습니다. == 유치권신고서 접수 사실 공지 외에 법원정보상 특별한 자료가 없으므로 채권자를 통하여 신고서 내용과 관련정보 파악, 현장조사, 낙찰 후 대비책 마련 등의 순으로 진행하여야 할 것입니다.
등기부 현황
건물
| 순위 | 접수일자 | 권리종류 | 권리자 | 채권금액 | 소멸여부 | 비고 |
|---|---|---|---|---|---|---|
| 1(갑1) | 2023-01-04 | 소유권보존 | (OOOOOOOOOO | 0 | ||
| 2(을1) | 2023-01-04 | 근저당 | 광OOOOOO | 4,310,400,000 | 소멸 | 말소기준등기 |
| 3(갑5) | 2024-09-19 | 가압류 | 스OOOOOOOO | 1,200,000,000 | 소멸 | 2024카단54400 |
| 4(갑7) | 2024-09-25 | 임의경매 | 광OOOOOO | 3,667,745,200 | 소멸 | 2024타경118635 |
| 5(을4) | 2024-10-11 | 주택임차권(지1층 문패상105호) | 석OO | 100,000,000 | 소멸 | 전입:2023.03.24확정:2023.03.02보: 금100,000,000원(계약서상 금120,000,000원), 차: 금150,000원(계약서상 차임 월 금50,000원), 확: 2023년3월2일(금120,000,000원 차임 월 금50,000원) |
| 6(을5) | 2024-10-21 | 주택임차권(2층문패상 203호) | 김OO | 120,000,000 | 소멸 | 전입:2023.04.12확정:2023.03.23보: (실제) 금120,000,000원(계약서상 금140,000,000원), 차: 월 금100,000원 |
| 7(을6) | 2024-10-23 | 주택임차권(4층문패상405호) | 한OO | 140,000,000 | 소멸 | 전입:2023.02.15확정:2023.02.01 |
| 8(을7) | 2024-11-04 | 주택임차권(3층 문패상 303호) | 이OO | 130,000,000 | 소멸 | 전입:2023.05.12확정:2023.04.20보: (실제)금130,000,000원 (계약서상 금140,000,000원) |
| 9(을8) | 2024-11-08 | 주택임차권(4층문패상 406호) | 곽OO | 160,000,000 | 소멸 | 전입:2023.01.25확정:2023.01.10차: 금100,000원 |
| 10(을9) | 2024-11-08 | 주택임차권(4층 문패상 402호) | 대OO | 120,000,000 | 소멸 | 전입:2023.01.25확정:2023.01.12보: (실제)금120,000,000원(계약서상 금140,000,000원), 차: (실제)월 금100,000원 |
| 11(을10) | 2024-11-12 | 주택임차권(4층문패상407호) | 강OO | 150,000,000 | 소멸 | 전입:2023.03.21확정:2023.03.07보: 금150,000,000원(계약서상금170,000,000원), 차: 금150,000원(계약서상 차임 월 금50,000원) |
| 12(을11) | 2024-12-30 | 주택임차권(4층문패상403호) | 남OO | 115,000,000 | 소멸 | 전입:2023.01.26확정:2023.01.12차: 금130,000원 |
| 13(을12) | 2025-01-02 | 주택임차권(2층문패상 201호) | 김OO | 140,000,000 | 소멸 | 전입:2023.01.31확정:2023.01.16 |
| 14(을13) | 2025-01-03 | 주택임차권(2층문패상207호) | 유OO | 180,000,000 | 소멸 | 전입:2023.04.21확정:2023.03.30 |
| 15(을14) | 2025-01-13 | 주택임차권(3층문패상 305호) | 김OO | 140,000,000 | 소멸 | 전입:2023.01.30확정:2023.01.11 |
| 16(을15) | 2025-01-20 | 주택임차권(4층문패상 408호) | 김OO | 180,000,000 | 소멸 | 전입:2023.04.13확정:2023.03.13 |
| 17(을16) | 2025-01-20 | 주택임차권(지1층문패상 101호) | 이OO | 130,000,000 | 소멸 | 전입:2023.04.14확정:2023.03.24보: 금130,000,000원(계약서상금150,000,000원) |
| 18(을17) | 2025-01-22 | 주택임차권(4층 문패상401호) | 송OO | 120,000,000 | 소멸 | 전입:2023.02.13확정:2023.01.17보: 금120,000,000원(계약서상 140,000,000원), 차: 100,000 |
| 19(을18) | 2025-01-22 | 주택임차권(3층문패상304호)) | 김OO | 130,000,000 | 소멸 | 전입:2023.01.27확정:2023.01.13보: 금130,000,000원(계약서상140,000,000원), 차: 50,000 |
| 20(을19) | 2025-02-14 | 주택임차권(2층문패상205호) | 민OO | 150,000,000 | 소멸 | 전입:2023.01.31확정:2023.01.12 |
| 21(을20) | 2025-02-19 | 주택임차권(3층문패상 308호) | 전OO | 164,000,000 | 소멸 | 전입:2023.02.27확정:2023.02.07차: (실제)월 금80,000원 |
| 22(을21) | 2025-02-25 | 주택임차권(3층문패상302호) | 정OO | 140,000,000 | 소멸 | 전입:2023.01.31확정:2023.01.10 |
| 23(을22) | 2025-02-25 | 주택임차권(4층문패상404호) | 최OO | 120,000,000 | 소멸 | 전입:2023.04.24확정:2023.03.24보: 금120,000,000원, 차임금100,000원(계약서상 금140,000,000원, 차임 없음) |
| 24(을23) | 2025-02-26 | 주택임차권(3층문패상306호) | 강OO | 180,000,000 | 소멸 | 전입:2023.03.10확정:2023.02.23 |
| 25(을24) | 2025-03-21 | 주택임차권(지1층문패상107호) | 박OO | 125,000,000 | 소멸 | 전입:2023.04.07확정:2023.03.20보: 금125,000,000원(실제임차보증금액, 계약서상금150,000,000원), 차: 월 금270,000원(실제 월차임, 계약서상월차임 금100,000원) |
| 26(을25) | 2025-04-03 | 주택임차권(3층문패상 301호) | 이OO | 140,000,000 | 소멸 | 전입:2023.01.30확정:2023.01.30 |
| 27(을26) | 2025-04-22 | 주택임차권(3층 문패상307호) | 정OO | 150,000,000 | 소멸 | 전입:2023.07.07확정:2023.06.26차: 150,000 |
| 28(을27) | 2025-05-07 | 주택임차권(2층문패상 208호) | 정OO | 130,000,000 | 소멸 | 전입:2023.05.19확정:2023.05.04보: 금 130,000,000원, 차임: 금 250,000원(계약서상 보증금: 금 160,000,000원, 차임: 금 100,000원) |
| 29(갑8) | 2025-07-24 | 압류 | 서OOOOOOOOOOOOOO | 0 | 소멸 |
관련 문서 (PDF)
클릭하면 원본 파일이 열립니다