목록으로
최종 업데이트: 2026-04-22 15:05
2024타경118925
서울중앙지방법원 본원 10계(02-530-2714)
부동산
부동산임의경매
매각
진행중
| 소재지 |
-
(서울특별시 관악구 봉천동 672-23)
|
|---|---|
| 물건종류 | 근린주택 |
| 면적 |
토지: 0.00㎡ (0평)
건물: 493.66㎡ (149.33평)
|
| 현재 위치 | 서울특별시 관악구 봉천동 672-23 |
| 소유자 / 채무자 | 신우경, 이용길 / 이용길 |
| 채권자 | 엠씨아이대부(주) |
| 배당종기일 | 2024-12-11 |
감정가
2,356,709,150
최저가
1,885,367,000
보증금
188,536,700
진행 상태 / 매각 결과
매각
completed = false
매각허가결정
| 상태 코드 | 2 | 상태 텍스트 | 매각허가결정 |
|---|---|---|---|
| 매각가 | 2,432,320,000원 | 매각가율 | 0% |
| 입찰 수 | 8 | 매수인 | 강동구 김세희 외1 |
| 차순위 입찰가 | 2,371,100,000원 | 매각허가 결정 | 매각허가결정 |
| 매각허가 결정일 | 2026-03-11 | 대금 지급기한 | - |
| 대금 지급상태 | - | 배당기일 | - |
| 배당 종결일 | - | 다음 확인 예정 | 2026-04-23 09:00 |
입찰 진행 내역
| 회차/구분 | 입찰기일 | 최저매각가격 | 결과 |
|---|---|---|---|
| (진행) | 2025-05-07 | 2,356,709,150 | 변경 |
| 1차 (진행) | 2026-01-21 | 2,356,709,150 | 유찰 |
| 2차 (진행) | 2026-03-04 | 1,885,367,000 |
진행 메모
매각 : 2,432,320,000 원 (103.21%)
(입찰 8 명,매수인:강동구 김세희 외1 / 차순위금액 2,371,100,000원)
매각결정기일 : 2026.03.11 - 매각허가결정
대금지급기한 : 2026.04.22
대금납부 2026.04.20 / 배당기일 2026.05.20
임차인 현황
| 임차인명 | 점유여부 | 전입/확정/배당 | 보증금 / 차임 | 예상배당액 | 대항력 |
|---|---|---|---|---|---|
| 권래은 | 주거용 3층 문패상 406호 |
전입: 2023-01-18
확정: 2022-12-16 배당: 2024-11-05 |
120,000,000
월 100,000
|
0 | 없음 |
| 김경환 | 주거용 3층 403호 |
전입: 2021-05-20
확정: 2021-03-02 배당: 2024-10-30 |
154,000,000
월 0
|
0 | 없음 |
| 김준영 | 주거용 4층 문패상 505호 |
전입: 2023-02-27
확정: 2023-02-08 배당: 2024-11-08 |
150,000,000
월 0
|
0 | 없음 |
| 박성민 | 주거용 701호 |
전입: 2024-05-17
확정: 2024-05-17 배당: 2024-11-07 |
40,000,000
월 300,000
|
0 | 없음 |
| 박준영 | 주거용 501호 |
전입: 2023-02-28
확정: 2023-02-08 배당: 2024-10-18 |
120,000,000
월 0
|
0 | 없음 |
| 박호동 | 주거용 2층 202호 약25㎡ |
전입: 2022-05-27
확정: 2022-05-26 배당: 2024-10-18 |
140,000,000
월 0
|
0 | 없음 |
| 서보람 | 주거용 4층 503호 |
전입: 2021-02-17
확정: 2021-01-20 배당: 2024-10-31 |
175,000,000
월 0
|
0 | 없음 |
| 서상문 | 주거용 |
전입: 2022-04-05
확정: - 배당: - |
0
월 0
|
0 | 없음 |
| 송우진 | 주거용 4층 504호 |
전입: 2023-04-14
확정: 2023-03-14 배당: 2024-11-17 |
150,000,000
월 0
|
0 | 없음 |
| 송윤희 | 주거용 301호 |
전입: 2022-01-24
확정: 2022-01-24 배당: 2024-11-21 |
50,000,000
월 270,000
|
0 | 없음 |
| 신현승 | 주거용 401호 |
전입: 2023-05-08
확정: 2023-04-19 배당: 2024-10-23 |
110,000,000
월 100,000
|
0 | 없음 |
| 연은지 | 주거용 반지하 102호 |
전입: 2023-10-30
확정: 2023-10-06 배당: 2024-11-15 |
75,000,000
월 150,000
|
0 | 없음 |
| 오서윤 | 주거용 지1층 문패상 101호 |
전입: 2021-11-23
확정: 2021-10-22 배당: 2024-10-08 |
130,000,000
월 100,000
|
0 | 없음 |
| 윤재혁 | 주거용 502호 |
전입: 2023-03-27
확정: 2023-03-10 배당: 2024-11-01 |
130,000,000
월 0
|
0 | 없음 |
| 윤현덕 | 주거용 404호 |
전입: 2023-04-25
확정: 2023-04-04 배당: 2024-10-21 |
140,000,000
월 0
|
0 | 없음 |
| 이다희 | 주거용 303호 |
전입: 2023-12-19
확정: 2023-12-19 배당: 2024-10-24 |
80,000,000
월 50,000
|
0 | 없음 |
| 이동환 | 주거용 2층 305호 |
전입: 2022-06-07
확정: 2022-06-03 배당: 2024-10-19 |
85,000,000
월 0
|
0 | 없음 |
| 이상룡 | 주거용 103호 |
전입: 2021-06-15
확정: 2021-06-15 배당: 2024-10-16 |
80,000,000
월 20,000
|
0 | 없음 |
| 이지연 | 주거용 2층 문패상 304호 |
전입: 2023-11-20
확정: 2023-11-20 배당: 2024-10-18 |
50,000,000
월 300,000
|
0 | 없음 |
| 장영훈 | 주거용 3층 문패상 405호 |
전입: 2023-03-10
확정: 2023-02-27 배당: 2024-10-17 |
125,000,000
월 0
|
0 | 없음 |
| 조항모 | 주거용 1층 201호 |
전입: 2023-01-25
확정: 2023-01-25 배당: 2024-10-24 |
130,000,000
월 0
|
0 | 없음 |
| 주봉균 | 주거용 1층 204호 |
전입: 2024-06-10
확정: 2022-07-01 배당: 2024-11-16 |
70,000,000
월 0
|
0 | 없음 |
| 주효정 | 주거용 2층 306호 |
전입: 2024-05-27
확정: 2024-05-24 배당: 2024-10-18 |
50,000,000
월 300,000
|
0 | 없음 |
| 차연우 | 주거용 |
전입: 2024-01-10
확정: - 배당: - |
0
월 0
|
0 | 없음 |
| 차지수 | 주거용 402호 |
전입: 2021-01-20
확정: 2020-12-11 배당: 2024-12-04 |
125,000,000
월 100,000
|
0 | 없음 |
매각물건 현황
| 구분 | 순번 | 소재지 | 용도/구조/면적 | 감정가 | 비고 |
|---|---|---|---|---|---|
| 토지 | 토지 | 1 | 봉천동 672-23 / 대공방어협조구역,교육환경보호구역,도시지역,과밀억제권역,가축사육...대공방어협조구역,교육환경보호구역,도시지역,과밀억제권역,가축사육제한구역,제2종일반주거지역,상대보호구역 | 184 | 8,370,000원(3,666,000원) |
| 토지 | 2 | 봉천동 672-23 | 대공방어협조구역,교육환경보호구역,도시지역,과밀억제권역,가축사육...대공방어협조구역,교육환경보호구역,도시지역,과밀억제권역,가축사육제한구역,제2종일반주거지역,상대보호구역 / 대 17.43㎡ (5.27평) | 2,790,000 | 48,629,700원 |
| 건물 | 1 | 봉천로13나길 19 [봉천동 672-23]철근콘크리트구조 (철근)콘크리트지붕 | 지하1층 / 다중주택 | 85 | 1,316,000원 |
| 2 | 1층 | 사무소 | 63.48㎡(19.2평) / 1,692,000원 | 107,408,160 | |
| 3 | 2층 | 사무소 | 82.92㎡(25.08평) / 1,692,000원 | 140,300,640 | |
| 4 | 3층 | 다중주택 | 79㎡(23.9평) / 1,692,000원 | 133,668,000 | |
| 5 | 4층 | 다중주택 | 71.48㎡(21.62평) / 1,692,000원 | 120,944,160 | |
| 6 | 5층 | 다중주택 | 70.85㎡(21.43평) / 1,692,000원 | 119,878,200 | |
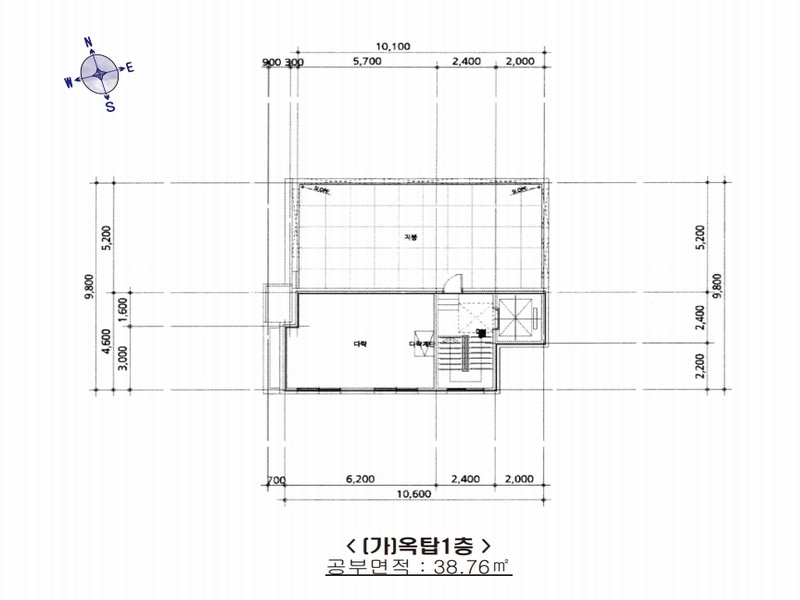
| 7 | 옥탑 | 다락 | 27.72㎡(8.39평) / 705,000원 | 19,542,600 | * 옥탑1층 * 연면적제외 |
| 8 | 옥탑 | 계단실 | 11.04㎡(3.34평) / 705,000원 | 7,783,200 | * 옥탑1층 * 연면적제외 |
| 9 | 1층 | 창고 | 1.33㎡(0.4평) / 555,000원 | 738,150 | * 부속건물 1동 |
현황 및 위치
* 대상물건은 서울특별시 관악구 봉천동 소재 '당곡역' 동측 인근에 위치하며 주위는 다세대주택, 다가구주택, 다중주택, 근린생활시설 등이 혼재하는 지대임. * 대상물건까지 차량출입이 용이하며 인근에 버스정류장 및 지하철역(당곡역(신림선))이 소재하는 등 제반 교통상황은 무난함. * 대체로 세장형의 완경사지로서, 주상용 건부지로 이용 중임. * 남측으로 노폭 약 7m 내외, 동측으로 노폭 약 4m 내외의 포장도로에 각각 접함.
참고사항
* 일괄매각 * 난방: 도시가스 보일러에 의한 난방설비
등기부 현황
건물
| 순위 | 접수일자 | 권리종류 | 권리자 | 채권금액 | 소멸여부 | 비고 |
|---|---|---|---|---|---|---|
| 1(갑1) | 2020-12-03 | 소유권보존 | 김OO | 0 | ||
| 2(을1) | 2020-12-03 | 근저당 | 엠OOOOOOOO | 1,296,000,000 | 소멸 | 말소기준등기확정채권양도전:관악중앙새마을금고 |
| 3(갑2) | 2021-05-31 | 소유권이전(매매) | 신OOOOOO | 0 | 신우경 2/10, 이용길 8/10 | |
| 4(갑3) | 2024-06-13 | 가압류 | 최OO | 40,000,000 | 소멸 | 2024카단812586 |
| 5(을2) | 2024-07-24 | 주택임차권(2층 약25㎡) | 박OO | 140,000,000 | 소멸 | 전입:2022.05.27확정:2022.05.26 |
| 6(갑4) | 2024-09-27 | 임의경매 | 엠OOOOOOOO | 1,103,401,900 | 소멸 | 2024타경118925 |
| 7(갑5) | 2024-10-07 | 가압류 | 최OO | 221,831,391 | 소멸 | 2024카단823354 , 청구금액:신우경 110,915,691원, 이용길 110,915,700원 |
| 8(을3) | 2024-12-17 | 주택임차권(2층 문패상 304호) | 이OO | 50,000,000 | 소멸 | 전입:2023.11.20확정:2023.11.20차:금300,000원 |
| 9(을4) | 2024-12-18 | 주택임차권(3층 문패상 405호) | 장OO | 125,000,000 | 소멸 | 전입:2023.03.10확정:2023.02.27 |
| 10(을5) | 2025-02-14 | 주택임차권(지1층 문패상 101호) | 오OO | 130,000,000 | 소멸 | 전입:2021.11.23확정:2021.10.22차:금100,000원 |
| 11(을6) | 2025-02-24 | 주택임차권(3층 문패상 406호) | 권OO | 120,000,000 | 소멸 | 전입:2023.01.18확정:2022.12.16차:금 100,000원 |
| 12(을7) | 2025-02-28 | 주택임차권(4층 문패상 505호) | 김OO | 150,000,000 | 소멸 | 전입:2023.02.27확정:2023.02.08 |
관련 문서 (PDF)
클릭하면 원본 파일이 열립니다