목록으로
최종 업데이트: 2026-04-26 08:27
2025타경13319
서울북부지방법원 본원 7계(02-910-3677)
부동산
부동산강제경매
유찰
진행중
| 소재지 |
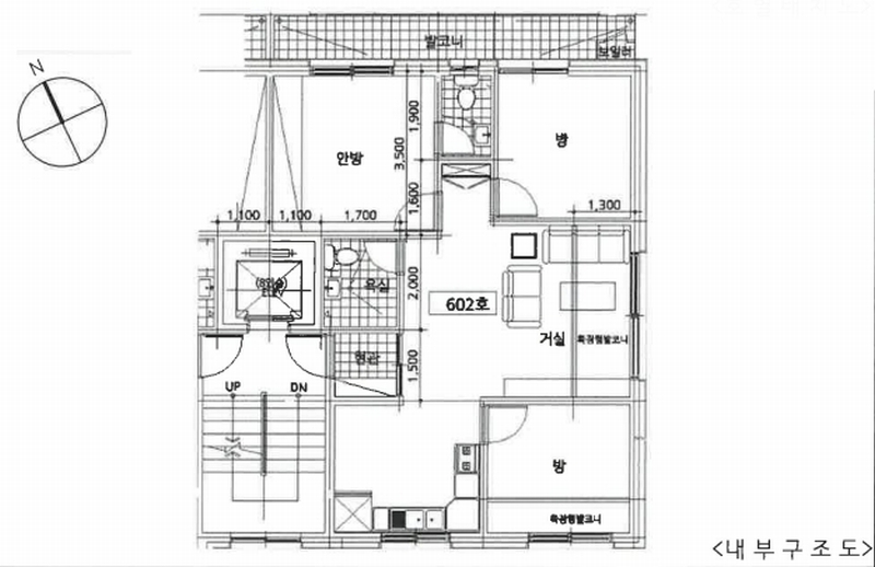
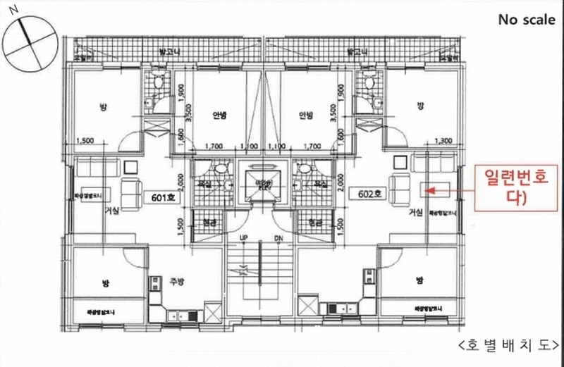
서울특별시 도봉구 도봉로162길 28, 라온누리 6층 602호
(서울특별시 도봉구 도봉동 625-33)
|
|---|---|
| 물건종류 | 다세대(빌라)[공급21평형] |
| 면적 |
토지: 32.32㎡ (9.78평)
건물: 61.80㎡ (18.69평)
|
| 현재 위치 | 서울특별시 도봉구 도봉로162길 28, 라온누리 6층 602호 |
| 소유자 / 채무자 | 임상순 / 임상순 |
| 채권자 | 신용보증기금 |
| 배당종기일 | 2025-12-05 |
감정가
308,000,000
최저가
197,120,000
보증금
19,712,000
입찰 진행 내역
| 회차/구분 | 입찰기일 | 최저매각가격 | 결과 |
|---|---|---|---|
| 1차 (진행) | 2026-03-04 | 308,000,000 | 유찰 |
| 2차 (진행) | 2026-04-07 | 246,400,000 | 유찰 |
| 3차 (진행) | 2026-05-12 | 197,120,000 | |
| 4차 (진행) | 2026-06-16 | 157,696,000 |
임차인 현황
| 임차인명 | 점유여부 | 전입/확정/배당 | 보증금 / 차임 | 예상배당액 | 대항력 |
|---|---|---|---|---|---|
| 전수현 | 주거용 전부 |
전입: 2022-01-24
확정: 2021-12-21 배당: 2024-03-19 |
300,000,000
월 0
|
0 | 있음 |
매각물건 현황
| 구분 | 순번 | 소재지 | 용도/구조/면적 | 감정가 | 비고 |
|---|---|---|---|---|---|
| 건물 | 6층중 6층 | 17.07.27 | 61.8㎡(18.69평)[공급21평] / 주거용 | 92,400,001 |
현황 및 위치
* 본건은 서울특별시 도봉구 도봉동 소재 지하철 1 호선 " 도봉역" 남동측 인근에 위치하며 주위는 아파트, 근린생활시설, 다세대주택 등이 혼재하는 지역으로서 제반 주위환경은 보통임. * 본건까지 차량의 진출입이 가능하며, 인근에 버스정류장 및 지하철 1 호선 " 도봉역" 등이 소재하는 등 제반 대중교통상황은 보통임. * 본건의 토지는 가장형의 토지로서, 도시형생활주택 ( 단지형다세대 ) 및 제 2 종근린생활시설 ( 사무소 ) 건부지로 이용 중임. * 본건 북측으로 노폭 약 4 m 내외의 도로와 접함.
등기부 현황
건물
| 순위 | 접수일자 | 권리종류 | 권리자 | 채권금액 | 소멸여부 | 비고 |
|---|---|---|---|---|---|---|
| 1(갑2) | 2020-07-16 | 소유권이전(매매) | 임OO | 0 | ||
| 2(갑3) | 2023-08-17 | 가압류 | 신OOOOOOOOOOO | 18,360,000 | 소멸 | 말소기준등기2023카단35548 |
| 3(을3) | 2024-03-19 | 주택임차권(전부) | 전OO | 300,000,000 | 전입:2022.01.24확정:2021.12.21 | |
| 4(갑4) | 2025-09-17 | 강제경매 | 신OOOOOOOOOOOOOO | 21,851,460 | 소멸 | 2025타경13319, 신용보증기금 가압류의 본 압류로의 이행 |
관련 문서 (PDF)
클릭하면 원본 파일이 열립니다