목록으로
최종 업데이트: 2026-04-26 16:06
2025타경2584
서울중앙지방법원 본원 10계(02-530-2714)
부동산
부동산임의경매
유찰
진행중
| 소재지 |
서울특별시 동작구 노량진로 82, 한강큐브스테이트 5층 507호
(서울특별시 동작구 노량진동 266-4)
|
|---|---|
| 물건종류 | 오피스텔 |
| 면적 |
토지: 4.47㎡ (1.35평)
건물: 19.75㎡ (5.97평)
|
| 현재 위치 | 서울특별시 동작구 노량진로 82, 한강큐브스테이트 5층 507호 |
| 소유자 / 채무자 | 천명토건(주) / 천명토건(주) |
| 채권자 | 홍수빈 |
| 배당종기일 | 2025-10-28 |
감정가
289,000,000
최저가
184,960,000
보증금
18,496,000
입찰 진행 내역
| 회차/구분 | 입찰기일 | 최저매각가격 | 결과 |
|---|---|---|---|
| 1차 (진행) | 2026-03-04 | 289,000,000 | 유찰 |
| 2차 (진행) | 2026-04-08 | 231,200,000 | 유찰 |
| 3차 (진행) | 2026-05-13 | 184,960,000 | |
| 4차 (진행) | 2026-06-17 | 147,968,000 |
임차인 현황
| 임차인명 | 점유여부 | 전입/확정/배당 | 보증금 / 차임 | 예상배당액 | 대항력 |
|---|---|---|---|---|---|
| 홍수빈 | 주거용 전부 |
전입: 2025-04-28
확정: - 배당: 2025-08-06 |
220,000,000
월 0
|
0 | 있음 |
매각물건 현황
| 구분 | 순번 | 소재지 | 용도/구조/면적 | 감정가 | 비고 |
|---|---|---|---|---|---|
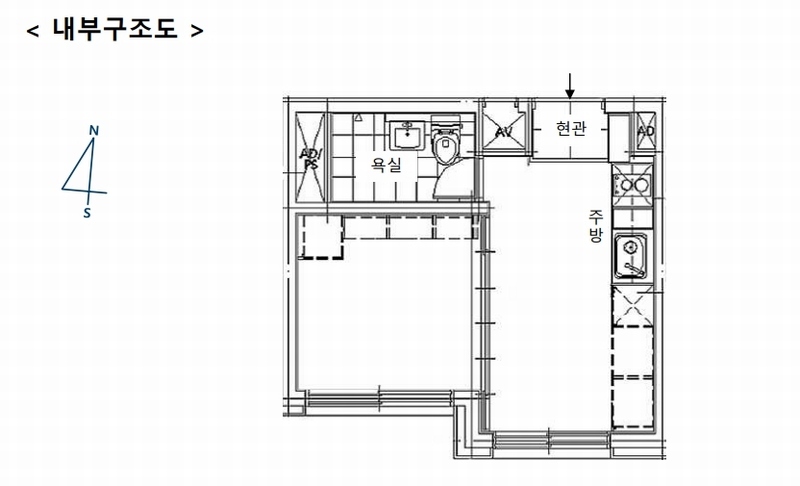
| 건물 | 18층중 5층 | 21.05.21 | 19.75㎡(5.97평) / 1.5룸형 오피스텔(거실/주방) | 58,000,000 | * 도시가스에 의한 개별 난방 |
현황 및 위치
* 지하철1,9호선 [노량진역] / [동작구청] 서측에 위치하고 있음 [노량진로] 노변에 위치하여 본건과 유사한 집합건물 및 근린생활시설, 주상용건물이 혼재하고 있는 노변주상지대임 * 본건까지 차량 접근 및 출입 가능하며 인근에 지하철역 및 다수의 노선버스가 정차하는 버스정류장이 위치하여 전반적인 교통상황 비교적 양호한 편임 * 사다리형 유사한 부정형 토지로 경사지이나 평탄히 조성하여 오피스텔 건부지로 이용 중임 * 북측으로 "노량진로" / 동측으로 "등용로14길"에 접하고 있음
참고사항
* 이용상태 : 거실/주방으로 구성된 통칭 1.5룸형 오피스텔임
전문가 코멘트
☞ 임차인(홍수빈)은 최선순위전세권자 겸 대항력 있는 임차인으로써, 자신의 지위를 강화하기 위하여 설정한 전세권으로 인하여 주택임대차보호법상 대항력이 소멸된다는 것은 부당하므로[대법원 2010마900 판결], 전세권이 매각으로 소멸되더라도 갑구5번 지분에 대하여 대항력을 주장할 수 있으니 주의하시기 바랍니다.
등기부 현황
건물
| 순위 | 접수일자 | 권리종류 | 권리자 | 채권금액 | 소멸여부 | 비고 |
|---|---|---|---|---|---|---|
| 1(갑3) | 2021-07-12 | 소유권이전 | 천OOOOOOOOOOOOOOO | 0 | 신탁재산의귀속, 천명토건주식회사 9/10, 주식회사유진컨설팅 1/10 | |
| 2(을1) | 2021-09-02 | 전세권(전부) | 홍OO | 220,000,000 | 소멸 | 말소기준등기존속기간:2021.08.20~2023.08.20 |
| 3(갑4) | 2023-10-26 | 천명토건(주)지분가압류 | 승OOOOOOOO | 958,354,276 | 소멸 | 2023카단831649 |
| 4(갑5) | 2025-02-18 | (주)유진컨설팅지분전부이전 | 천OOOOOO | 0 | 대물변제, 1/10 | |
| 5(갑6) | 2025-08-14 | 임의경매 | 홍OO | 220,000,000 | 소멸 | 2025타경2584 |
관련 문서 (PDF)
클릭하면 원본 파일이 열립니다