목록으로
최종 업데이트: 2026-04-27 10:24
2025타경12515
서울북부지방법원 본원 9계(02-910-3679)
부동산
임의경매(공유물분할을위한경매)
취하/변경
진행중
| 소재지 |
-
(서울특별시 동대문구 제기동 886-22)
|
|---|---|
| 물건종류 | 근린주택 |
| 면적 |
토지: 0.00㎡ (0평)
건물: 872.68㎡ (263.99평)
|
| 현재 위치 | 서울특별시 동대문구 제기동 886-22 |
| 소유자 / 채무자 | 나○○ / 나○○ |
| 채권자 | 권○○ |
| 배당종기일 | 2025-07-31 |
감정가
4,161,201,520
최저가
3,328,961,000
보증금
332,896,100
입찰 진행 내역
| 회차/구분 | 입찰기일 | 최저매각가격 | 결과 |
|---|---|---|---|
| 1차 (진행) | 2026-03-10 | 4,161,201,520 | 유찰 |
| (진행) | 2026-04-14 | 3,328,961,000 | 취하 |
진행 메모
본사건은 취하(으)로 경매절차가 종결되었습니다.
임차인 현황
| 임차인명 | 점유여부 | 전입/확정/배당 | 보증금 / 차임 | 예상배당액 | 대항력 |
|---|---|---|---|---|---|
| 노○○ | 주거용 미상 |
전입: 2011-02-22
확정: - 배당: - |
0
월 0
|
0 | - |
매각물건 현황
| 구분 | 순번 | 소재지 | 용도/구조/면적 | 감정가 | 비고 |
|---|---|---|---|---|---|
| 토지 | 토지 | 제기동 886-22제○○ | 대공방어협조구역,도시지역,토지거래계약에관한허가구역,가축사육제한...대공방어협조구역,도시지역,토지거래계약에관한허가구역,가축사육제한구역,제2종일반주거지역,과밀억제권역,상대보호구역,특정개발진흥지구 / 대 338.9㎡ (102.52평) | 11,200,000 | 3,795,680,000원 |
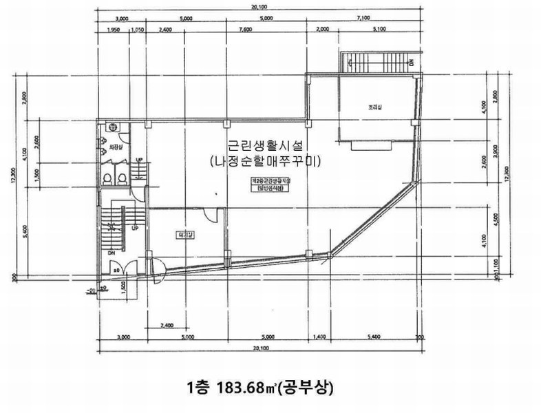
| 건물 | 1 | 위지상철근콘크리트조 평슬래브 | 1층 / 음식점(상호명: 나정순할매쭈구미) | 183 | 414,000원 |
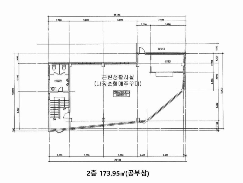
| 2 | 2층 | 음식점(상호명: 나정순할매쭈구미) | 173.95㎡(52.62평) / 414,000원 | 72,015,300 | * 사용승인:1997.08.27 |
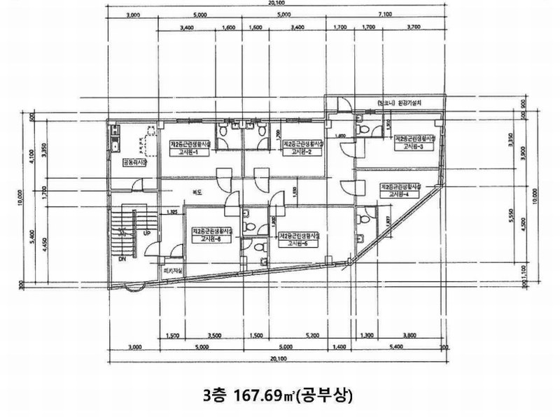
| 3 | 3층 | 고시원(6실) | 167.69㎡(50.73평) / 506,000원 | 84,851,140 | * 사용승인:1997.08.27 |
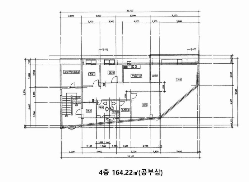
| 4 | 4층 | 단독주택(거실, 주방, 방3, 욕실2, 등) | 164.22㎡(49.68평) / 506,000원 | 83,095,320 | * 사용승인:1997.08.27 |
| 5 | 지하 | 음식점 부속창고 | 160.74㎡(48.62평) / 276,000원 | 44,364,240 | * 사용승인:1997.08.27 |
| 6 | 옥탑 | 계단실 및 물탱크실 | 22.4㎡(6.78평) / 230,000원 | 5,152,000 | * 사용승인:1997.08.27 |
현황 및 위치
* 본건은 서울특별시 동대문구 제기동 소재 "제기사거리"서측 인근에 위치하며, 인근은 단독주택, 공동주택 및 각종 근린생활시설 등이 소재하는 바, 제반 주위환경은 보통임. * 본건까지 차량접근이 가능하고 인근에 버스정류장이 소재하여 제반 대중교통수단 이용은 보통임. * 본건은 인접지 대비 등고평탄한 사다리형에 유사한 토지로서, 기준시점 현재 "주상용" 건부지로 이용중임. * 본건은 남측으로 노폭 약 20미터 내외 및 동측으로 노폭 약 15미터 내외의 포장도로와 각각 접함.
참고사항
*일괄매각
등기부 현황
건물
| 순위 | 접수일자 | 권리종류 | 권리자 | 채권금액 | 소멸여부 | 비고 |
|---|---|---|---|---|---|---|
| 1(갑2) | 2007-07-25 | 소유권이전(매매) | 나OO | 0 | ||
| 2(갑3) | 2009-09-15 | 소유권일부이전 | 나OO | 0 | 매매, 나성호 2/5, 나성문 1/5 | |
| 3(갑5) | 2017-12-26 | 나○○지분전부이전 | 권OO | 0 | 상속, 권경선 3/35, 나유아 나은정 각 2/35 | |
| 4(갑11) | 2019-05-31 | 권○○지분전부이전 | 나OO | 0 | 화해권고결정, 3/35 | |
| 5(갑12) | 2023-03-29 | 나○○지분전부이전 | 나OO | 0 | 상속, 나성호 7/35, 권경선 3/35, 나유아 나은정 각 2/35 | |
| 6(갑13) | 2025-05-13 | 임의경매 | 권OO | 0 | 소멸 | 말소기준등기2025타경12515 |
관련 문서 (PDF)
클릭하면 원본 파일이 열립니다