목록으로
최종 업데이트: 2026-04-25 08:34
2024타경118337
서울북부지방법원 본원 4계(02-910-3674)
부동산
부동산강제경매
취하/변경
진행중
| 소재지 |
-
(서울특별시 성북구 안암동5가 136-19)
|
|---|---|
| 물건종류 | 근린주택 |
| 면적 |
토지: 0.00㎡ (0평)
건물: 320.10㎡ (96.83평)
|
| 현재 위치 | 서울특별시 성북구 안암동5가 136-19 |
| 소유자 / 채무자 | 김선숙외 1명 / 김선숙외 1명 |
| 채권자 | 강진호외 3명 |
| 배당종기일 | 2025-01-06 |
감정가
2,859,995,320
최저가
1,464,318,000
보증금
146,431,800
입찰 진행 내역
| 회차/구분 | 입찰기일 | 최저매각가격 | 결과 |
|---|---|---|---|
| 1차 (진행) | 2026-01-13 | 2,859,995,320 | 유찰 |
| 2차 (진행) | 2026-02-26 | 2,287,996,000 | 유찰 |
| 3차 (진행) | 2026-03-31 | 1,830,397,000 | 유찰 |
| (진행) | 2026-05-07 | 1,464,318,000 | 변경 |
진행 메모
본사건은 변경 되었으며 현재 매각기일이 지정되지 않았습니다.
임차인 현황
| 임차인명 | 점유여부 | 전입/확정/배당 | 보증금 / 차임 | 예상배당액 | 대항력 |
|---|---|---|---|---|---|
| (주)국민관광(김유진) | 주거용 503호 |
전입: 2020-03-06
확정: 2020-03-05 배당: 2024-12-10 |
130,000,000
월 0
|
0 | 없음 |
| (주)지에프오렌지검품소 | 점포 2층 |
전입: -
확정: 2013-11-27 배당: - |
80,000,000
월 2,500,000
|
0 | 없음 |
| 강진호 | 주거용 302호 |
전입: 2019-01-31
확정: 2019-01-28 배당: 2021-06-30 |
110,000,000
월 0
|
0 | 없음 |
| 김상민 | 주거용 |
전입: 2008-03-10
확정: - 배당: - |
0
월 0
|
0 | - |
| 김우일 | 주거용 502호 |
전입: 2017-05-12
확정: 2017-05-12 배당: 2022-04-22 |
130,000,000
월 0
|
0 | 없음 |
| 김유진 | 주거용 503호 |
전입: 2020-03-06
확정: - 배당: - |
0
월 0
|
0 | 없음 |
| 남경수 | 주거용 |
전입: 2020-07-24
확정: - 배당: - |
0
월 0
|
0 | 없음 |
| 문가람 | 주거용 402호 |
전입: 2024-07-19
확정: - 배당: - |
0
월 0
|
0 | 없음 |
| 문찬솔 | 주거용 402호 |
전입: 2020-01-22
확정: 2020-01-22 배당: 2024-12-26 |
180,000,000
월 0
|
0 | 없음 |
| 박상환 | 주거용 501호 |
전입: 2019-08-05
확정: 2019-08-05 배당: 2024-12-21 |
85,000,000
월 0
|
0 | 없음 |
| 배윤경 | 주거용 603호 |
전입: 2020-02-24
확정: 2020-02-24 배당: 2024-12-05 |
140,000,000
월 0
|
0 | 없음 |
| 서정연 | 주거용 406호 |
전입: 2020-02-20
확정: 2020-02-20 배당: 2024-12-11 |
110,000,000
월 0
|
0 | 없음 |
| 신서윤 | 주거용 504호 |
전입: 2016-04-01
확정: 2016-04-01 배당: 2024-11-04 |
130,000,000
월 0
|
0 | 없음 |
| 원창희 | 주거용 604호 |
전입: 2020-06-15
확정: 2020-03-23 배당: 2022-05-13 |
120,000,000
월 0
|
0 | 없음 |
| 이경희 | 주거용 |
전입: 2018-02-14
확정: - 배당: - |
0
월 0
|
0 | 없음 |
| 이교윤 | 주거용 305호 |
전입: 2010-03-02
확정: 2020-03-04 배당: 2021-11-04 |
80,000,000
월 0
|
0 | 없음 |
| 이슬 | 주거용 304호 |
전입: 2018-03-06
확정: 2018-03-06 배당: 2024-11-07 |
100,000,000
월 0
|
0 | 없음 |
| 이연수 | 주거용 301호 |
전입: 2019-08-29
확정: 2019-08-29 배당: 2024-11-22 |
90,000,000
월 0
|
0 | 없음 |
| 이찬웅 | 주거용 401호 |
전입: 2014-02-27
확정: 2014-02-27 배당: 2024-02-02 |
70,000,000
월 0
|
0 | 없음 |
| 이현규 | 주거용 306호 |
전입: 2015-02-26
확정: 2015-02-26 배당: 2024-12-20 |
60,000,000
월 0
|
0 | 없음 |
| 장태형 | 주거용 505호 |
전입: 2017-01-23
확정: 2017-01-23 배당: 2024-11-04 |
160,000,000
월 0
|
0 | 없음 |
| 전준호,전기출 | 주거용 404호 |
전입: 2018-02-13
확정: 2018-02-13 배당: 2021-06-30 |
120,000,000
월 0
|
0 | 없음 |
| 정대영 | 주거용 407호 |
전입: 2019-07-19
확정: 2019-07-19 배당: 2021-08-11 |
70,000,000
월 0
|
0 | 없음 |
| 정성은 | 주거용 303호 |
전입: 2018-03-02
확정: 2018-03-02 배당: 2024-12-12 |
110,000,000
월 0
|
0 | 없음 |
| 최우진 | 주거용 4층403호 |
전입: 2018-08-14
확정: 2018-08-14 배당: 2025-01-02 |
130,000,000
월 0
|
0 | 없음 |
| 표희선 | 주거용 3층308호 |
전입: 2019-09-23
확정: 2019-09-23 배당: 2024-11-25 |
50,000,000
월 0
|
0 | 없음 |
매각물건 현황
| 구분 | 순번 | 소재지 | 용도/구조/면적 | 감정가 | 비고 |
|---|---|---|---|---|---|
| 토지 | 토지 | 안암동5가 136-19 | 대공방어협조구역,절대보호구역,상대보호구역,과밀억제권역,도시지역,...대공방어협조구역,절대보호구역,상대보호구역,과밀억제권역,도시지역,토지거래계약에관한허가구역,가축사육제한구역,제3종일반주거지역 / 대 189.913㎡ (57.45평) | 12,040,000 | 2,286,552,520원 |
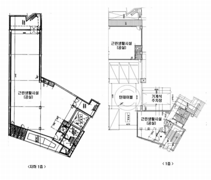
| 건물 | 1 | 안암동5가 136-8외 4필지철근콘크리트구조 (철근)콘크리트지붕 | 지하1층 / 근린생활시설(1개호, 공실) | 192 | 390,000원 |
| 2 | 1층 | 근린생활시설(2개호, 공실) | 88.326㎡(26.72평) / 530,000원 | 46,812,780 | * 사용승인:2002.09.03☞ 전체면적 147.21㎡중 김영석(공유자) 지분 5분의 2 전부, 김선숙(공유자) 지분 5분의 1 전부 매각 |
| 3 | 2층 | 근린생활시설(1개호) | 171.318㎡(51.82평) / 530,000원 | 90,798,540 | * 사용승인:2002.09.03☞ 전체면적 285.53㎡중 김영석(공유자) 지분 5분의 2 전부, 김선숙(공유자) 지분 5분의 1 전부 매각 |
| 4 | 3층 | 원룸(8개호) | 162.198㎡(49.06평) / 590,000원 | 95,696,820 | * 사용승인:2002.09.03☞ 전체면적 270.33㎡중 김영석(공유자) 지분 5분의 2 전부, 김선숙(공유자) 지분 5분의 1 전부 매각 |
| 5 | 4층 | 원룸(7개호) | 151.878㎡(45.94평) / 590,000원 | 89,608,020 | * 사용승인:2002.09.03☞ 전체면적 253.13㎡중 김영석(공유자) 지분 5분의 2 전부, 김선숙(공유자) 지분 5분의 1 전부 매각 |
| 6 | 5층 | 원룸(5개호) | 137.448㎡(41.58평) / 590,000원 | 81,094,320 | * 사용승인:2002.09.03☞ 전체면적 229.08㎡중 김영석(공유자) 지분 5분의 2 전부, 김선숙(공유자) 지분 5분의 1 전부 매각 |
| 7 | 6층 | 원룸(5개호) | 112.788㎡(34.12평) / 590,000원 | 66,544,920 | * 사용승인:2002.09.03☞ 전체면적 187.98㎡중 김영석(공유자) 지분 5분의 2 전부, 김선숙(공유자) 지분 5분의 1 전부 매각 |
| 제시외건물 | 1 | 안암동5가 136-8외 4필지철근콘크리트조 (철근)콘크리트지붕 | 옥상 / 계단실, 엘리베이터실, 원룸(1개호) | 36 | 340,000원 |
| 2 | 옥탑 | 계단,엘리베이터실 | 22.7㎡(6.87평) / 340,000원 | 7,718,000 | 매각포함☞ 전체면적 37.83㎡중 김영석(공유자) 지분 5분의 2 전부, 김선숙(공유자) 지분 5분의 1 전부 매각, * 옥탑1층 |
| 3 | 옥탑 | 계단,엘리베이터실 | 22.7㎡(6.87평) / 340,000원 | 7,718,000 | 매각포함☞ 전체면적 37.83㎡중 김영석(공유자) 지분 5분의 2 전부, 김선숙(공유자) 지분 5분의 1 전부 매각, * 옥탑2층 |
현황 및 위치
* 본건은 서울특별시 성북구 안암동5가 소재 "고려대학교" 남동측에 인접하여 위치하는 부동산으로서, 주위는 대학교, 근린생활시설, 다가구주택, 다세대주택 등이 혼재하는 주상혼용지대이며, 제반주위환경은 보통임. * 본건까지 차량 접근이 가능하며 인근에 버스정류장 및 지하철역(지하철6호선 안암역)이 소재하는 등 대중교통여건은 보통임. * 본건 토지 외 4필지(안암동5가 133-23, 133-24, 136-44, 136-8)와 함께 일단의 부정형토지로 주상용건물의 건부지로 이용중임. * 본건은 남측으로 약 8m 도로와 접함.
참고사항
* 일괄매각. 제시외 건물 포함 * 지분매각임. * 본건 건물3층은 공부상 소매점이나 현황 원룸(8개호)으로, 4층은 공부상 독서실이나 현황 원룸(7개호)로 사용중인 것으로 호별 표시가 되어 있으며, 본건 건물 5층 및 6층의 도면상 호별배치 및 호수 또한 다소 상이한 것으로 호별 표시(5층 : 공부상 4개호이나 현황5개호, 6층: 공부상3개호이나 현황5개호)가 되어 있으므로, 입찰시 참고 요함(감정평가서 참고 할 것). * 본건 건물은 토지(안암동가 136-19) 외 4필지(안암동가 133-23, 133-24, 136-44, 136-8)상에 소재하는 바, 본건 토지는 일단지의 일부로 이용중임. ☞현황서상 내용:지하층은 공실상태이며, 1층은 좌측에 주차장, 우측에 상가(폐문임) 2층은 사무실(폐문임), 3층부터 7층까지는 다가구용 주택임
전문가 코멘트
☞ 임차인 (주)국민관광 이 중소기업기본법 제2조에 따른 중소기업에 해당하는 법인인 경우 소속 직원의 주거용으로 주택을 임차한 후 그 법인이 선정한 직원이 해당 주택을 인도받고 주민등록을 마쳤을 때부터 주택임대차보호법의 적용을 받는것으로 보고 본 예상배당표를 작성하였으니 참고 하시기 바랍니다.☞ 본건은 소액임차인의 최우선변제금 지급기준이 되는 담보물권이 없어 배당시점을 기준으로 소액임차인을 판단하였으니 참고하시기 바랍니다.
등기부 현황
건물
| 순위 | 접수일자 | 권리종류 | 권리자 | 채권금액 | 소멸여부 | 비고 |
|---|---|---|---|---|---|---|
| 2(갑2) | 2009-06-09 | 압류 | 서OOOOOOOO | 0 | 소멸 | 말소기준등기 |
| 3(갑3) | 2010-04-14 | 김영일지분전부이전 | 박OOOOO | 0 | 상속, 박연숙 3/35, 김재현 김서현 각 2/35 | |
| 4(갑5) | 2010-07-30 | 압류 | 서OOOOOOO | 0 | 소멸 | |
| 5(갑15) | 2015-04-21 | 갑구갑구1번김영석.김선자지분압류 | 서OOOOOOO | 0 | 소멸 | |
| 6(갑18) | 2015-07-16 | 갑구1번김영석지분압류 | 서OOOOOOO | 0 | 소멸 | |
| 7(갑22) | 2016-04-06 | 갑구1번김영석지분압류 | 서OOOOOOO | 0 | 소멸 | |
| 8(갑45) | 2019-04-08 | 갑구1번김영석,김영준지분압류 | 서OOOOOOO | 0 | 소멸 | |
| 9(갑46) | 2019-04-18 | 갑구27번재니김,갑구1번김선숙지분압류 | 서OOOOOOO | 0 | 소멸 | |
| 11(갑50) | 2020-02-06 | 갑구1,48번김영석지분압류 | 도OOOOOOOOO | 0 | 소멸 | |
| 12(갑53) | 2020-05-22 | 갑구1,48번김영석지분압류 | 국OOOOOOOO | 0 | 소멸 | |
| 13(갑54) | 2020-07-03 | 갑구1번김영석지분압류 | 서OOOOOOO | 0 | 소멸 | |
| 14(갑55) | 2020-07-03 | 갑구1번김선숙지분압류 | 서OOOOOOO | 0 | 소멸 | |
| 15(갑60) | 2021-01-19 | 갑구1,48번김영석지분압류 | 성OOOOOOOOO | 0 | 소멸 | |
| 16(을5) | 2021-03-26 | 주택임차권(3층 304호) | 이O | 100,000,000 | 소멸 | 전입:2018.03.06확정:2018.03.06 |
| 17(갑61) | 2021-04-23 | 압류 | 서OOOOOOO | 0 | 소멸 | |
| 18(을6) | 2021-06-30 | 주택임차권(3층303호) | 정OO | 110,000,000 | 소멸 | 전입:2018.03.02확정:2018.03.02 |
| 19(을7) | 2021-06-30 | 주택임차권(4층404호) | 전OOOOOO | 120,000,000 | 소멸 | 전입:2018.02.13확정:2018.02.13 |
| 20(을8) | 2021-06-30 | 주택임차권(3층302호) | 강OO | 110,000,000 | 소멸 | 전입:2019.01.31확정:2019.01.28 |
| 21(을9) | 2021-08-11 | 주택임차권(4층407호) | 정OO | 70,000,000 | 소멸 | 전입:2019.07.19확정:2019.07.19 |
| 22(을10) | 2021-11-04 | 주택임차권(3층305호) | 이OO | 80,000,000 | 소멸 | 전입:2010.03.02확정:2020.03.04보: 금80,000,000원(2013.6.5.10,000,000원 증액, 2015.6.5. 10,000,000원 증액, 2017.6.5. 10,000,000원 증액) |
| 24(을12) | 2022-04-22 | 주택임차권(5층502호) | 김OO | 130,000,000 | 소멸 | 전입:2017.05.12확정:2017.05.12 |
| 25(갑64) | 2022-05-02 | 갑구1,48번김영석지분가압류 | 문OO | 180,000,000 | 소멸 | 2022카단51183 |
| 26(을13) | 2022-05-13 | 주택임차권(6층 604호) | 원OO | 120,000,000 | 소멸 | 전입:2020.06.15확정:2020.03.23 |
| 27(을14) | 2022-06-09 | 주택임차권(6층603호) | 배OO | 140,000,000 | 소멸 | 전입:2020.02.24확정:2020.02.24 |
| 28(갑65) | 2022-07-18 | 갑구1번김선숙지분압류 | 성OOOOOOOOO | 0 | 소멸 | |
| 29(갑66) | 2023-03-17 | 갑구1,48번김영석지분가압류 | 원OO | 120,000,000 | 소멸 | 2023카단20681 |
| 30(을16) | 2023-08-07 | 주택임차권(3층 306호) | 이OO | 60,000,000 | 소멸 | 전입:2015.02.26확정:2015.02.26보: 금60,000,000원(2019년1월17일 금10,000,000원 증액), 확: 2015년2월26일(금50,000,000원), 2019년1월22일(금60,000,000원) |
| 31(갑67) | 2023-11-28 | 갑구1,48번김영석지분가압류 | 서O | 329,000,000 | 소멸 | 2023카단54719 |
| 32(을17) | 2024-02-02 | 주택임차권(4층 401호) | 이OO | 70,000,000 | 소멸 | 전입:2014.02.27확정:2014.02.27보: 금70,000,000원(2016년1월29일 금15,000,000원 증액), 확: 2014년2월27일(금55,000,000원), 2024년1월10일(금15,000,000원 증액) |
| 33(을18) | 2024-03-05 | 주택임차권(3층301호) | 이OO | 90,000,000 | 소멸 | 전입:2019.08.29확정:2019.08.29 |
| 34(을19) | 2024-04-02 | 주택임차권(4층402호) | 문OO | 180,000,000 | 소멸 | 전입:2020.01.22확정:2020.01.22 |
| 35(갑69) | 2024-10-22 | 갑구1번김영석,김선숙,48번김영석지분강제경매 | 강OOOOO | 300,000,000 | 소멸 | 2024타경118337 |
관련 문서 (PDF)
클릭하면 원본 파일이 열립니다