목록으로
최종 업데이트: 2026-04-25 09:25
2025타경12490
서울북부지방법원 본원 4계(02-910-3674)
부동산
부동산강제경매
유찰
진행중
| 소재지 |
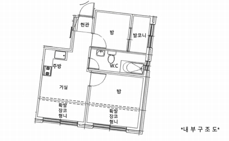
서울특별시 중랑구 용마산로79길 13, 금호빌리지 4층 401호
(서울특별시 중랑구 면목동 63-4)
|
|---|---|
| 물건종류 | 다세대(빌라)[공급11평형] |
| 면적 |
토지: 16.53㎡ (5평)
건물: 29.98㎡ (9.07평)
|
| 현재 위치 | 서울특별시 중랑구 용마산로79길 13, 금호빌리지 4층 401호 |
| 소유자 / 채무자 | 최복음 / 최복음 |
| 채권자 | 김현남 |
| 배당종기일 | 2025-10-16 |
감정가
293,000,000
최저가
187,520,000
보증금
18,752,000
입찰 진행 내역
| 회차/구분 | 입찰기일 | 최저매각가격 | 결과 |
|---|---|---|---|
| 1차 (진행) | 2026-02-26 | 293,000,000 | 유찰 |
| 2차 (진행) | 2026-03-31 | 234,400,000 | 유찰 |
| 3차 (진행) | 2026-05-07 | 187,520,000 | |
| 4차 (진행) | 2026-06-09 | 150,016,000 |
임차인 현황
| 임차인명 | 점유여부 | 전입/확정/배당 | 보증금 / 차임 | 예상배당액 | 대항력 |
|---|---|---|---|---|---|
| 문희진 | 주거용 4층 401호 |
전입: 2024-08-23
확정: 2024-07-26 배당: 2025-09-17 |
200,000,000
월 0
|
0 | 있음 |
매각물건 현황
| 구분 | 순번 | 소재지 | 용도/구조/면적 | 감정가 | 비고 |
|---|---|---|---|---|---|
| 건물 | 6층중 4층 | 16.05.19 | 29.98㎡(9.07평)[공급11평] / 주거용 | 87,900,000 |
현황 및 위치
* 본건은 서울특별시 중랑구 면목동 소재""중화중학교""서측 인근에 위치하며, 주위는 다세대주택, 단독주택, 근린생활시설 등이 소재하는 지역으로 주위환경은 보통임. * 본건까지 차량출입이 가능하며, 인근에 버스정류장이 소재하는 등 대중교통상황은 보통임. * 본건은 인접지 대비 등고평탄한 세장형 토지로서, 공동주택 건부지로 이용중임. * 본건 북측으로 노폭 약 4미터 내외의 포장도로에 접함.
참고사항
* 외필지 :면목동 63-5, 63-6
등기부 현황
건물
| 순위 | 접수일자 | 권리종류 | 권리자 | 채권금액 | 소멸여부 | 비고 |
|---|---|---|---|---|---|---|
| 1(갑5) | 2022-11-04 | 소유권이전(매매) | 최OO | 0 | 거래가액:261,000,000 | |
| 2(갑10) | 2024-12-18 | 압류 | 국OOOOOOOOOOOOOOO | 0 | 소멸 | 말소기준등기 |
| 3(갑11) | 2025-07-28 | 강제경매 | 김OO | 13,175,554 | 소멸 | 2025타경12490 |
관련 문서 (PDF)
클릭하면 원본 파일이 열립니다