목록으로
최종 업데이트: 2026-04-28 11:27
2025타경73276
인천지방법원 2024차전118509 지급명령 주의사항 ▶.특별매각조건 : 채권자는 매수인에 대하여 매각대금에서 배당받지 못하는 잔액에 대한 임대차보증금반환청구권을 포기하고,주택임대차등기를 말소하는 조건으로 매각 하루 보지 않기 X 부동산종합정보+토지이용계획+도시계획+개별공시지가+인근진행물건동일번지진행물건인근반경진행물건인근매각물건동일번지매각물건공매인근진행물건동산인근진행물건임대차보호법예상배당표입찰가분석표시세
부동산
부동산강제경매
매각
진행중
| 소재지 |
경기도 의정부시 망월로45번길 34, 진산은빛마을28차 102동 6층 601호
(경기도 의정부시 호원동 226-295)
|
|---|---|
| 물건종류 | 오피스텔 |
| 면적 |
토지: 38.79㎡ (11.73평)
건물: 83.90㎡ (25.38평)
|
| 현재 위치 | 경기도 의정부시 망월로45번길 34, 진산은빛마을28차 102동 6층 601호 |
| 소유자 / 채무자 | 권영만 / 권영만 |
| 채권자 | 주택도시보증공사 |
| 배당종기일 | 2025-12-15 |
감정가
309,000,000
최저가
151,410,000
보증금
15,141,000
진행 상태 / 매각 결과
매각
completed = false
매각허가결정
| 상태 코드 | 2 | 상태 텍스트 | 매각허가결정 |
|---|---|---|---|
| 매각가 | 193,000,000원 | 매각가율 | 0% |
| 입찰 수 | 9 | 매수인 | 양지수 |
| 차순위 입찰가 | 0원 | 매각허가 결정 | 매각허가결정 |
| 매각허가 결정일 | 2026-04-21 | 대금 지급기한 | - |
| 대금 지급상태 | - | 배당기일 | - |
| 배당 종결일 | - | 다음 확인 예정 | 2026-04-29 09:00 |
입찰 진행 내역
| 회차/구분 | 입찰기일 | 최저매각가격 | 결과 |
|---|---|---|---|
| 1차 (진행) | 2026-02-03 | 309,000,000 | 유찰 |
| 2차 (진행) | 2026-03-10 | 216,300,000 | 유찰 |
| 3차 (진행) | 2026-04-14 | 151,410,000 |
진행 메모
매각 : 193,000,000 원 (62.46%)
(입찰 9 명,매수인:양지수)
매각결정기일 : 2026.04.21 - 매각허가결정
임차인 현황
| 임차인명 | 점유여부 | 전입/확정/배당 | 보증금 / 차임 | 예상배당액 | 대항력 |
|---|---|---|---|---|---|
| 김혜진 | 주거용 전부 |
전입: 2021-03-04
확정: 2021-03-29 배당: 2023-02-16 |
320,000,000
월 0
|
0 | 있음 |
| 주택도시보증공사 | 주거용 전부 |
전입: 2021-03-04
확정: 2021-03-29 배당: 2025-12-15 |
320,000,000
월 0
|
0 | 있음 |
매각물건 현황
| 구분 | 순번 | 소재지 | 용도/구조/면적 | 감정가 | 비고 |
|---|---|---|---|---|---|
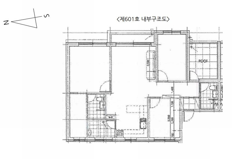
| 건물 | 9층중 6층 | 16.11.23 | 83.9009㎡(25.38평) / 오피스텔(방3, 거실, 주방, W.C 등) | 216,300,000 | * 개별 냉난방설비 |
현황 및 위치
* 본건은 경기도 의정부시 호원동 소재 "호암초등학교" 북측 인접에 위치함. 본건 주위는 다세대주택, 단독주택, 소규모 아파트, 일부 근린생활시설 등이 소재하는 기존주택지대임. * 본건 소재 건물까지 제 차량의 출입이 가능하며, 인근에 버스정류장이 소재하고 북측 인근에 “지하철 1호선 망월사역”이 위치하는 등 전반적인 교통상황은 보통임. * 인접 도로와 대체로 등고 평탄한 세장형의 토지로, 공동주택 및 오피스텔 건부지로 이용중임. * 본건 소재 부지 북측으로 왕복2차선의 포장도로에 접함.
등기부 현황
건물
| 순위 | 접수일자 | 권리종류 | 권리자 | 채권금액 | 소멸여부 | 비고 |
|---|---|---|---|---|---|---|
| 1(갑5) | 2021-03-04 | 공유자전원지분전부이전 | 권OO | 0 | 매매, 거래가액:320,000,000 | |
| 2(갑6) | 2021-12-17 | 압류 | 의OOO | 0 | 소멸 | 말소기준등기 |
| 3(갑7) | 2022-04-11 | 압류 | 국OOOOOOOO | 0 | 소멸 | |
| 4(을5) | 2023-02-16 | 주택임차권(전부) | 김OO | 320,000,000 | 소멸 | 전입:2021.03.04확정:2021.03.29 |
| 5(갑8) | 2025-03-13 | 압류 | 국OOOOOOOO | 0 | 소멸 | |
| 6(갑9) | 2025-09-29 | 강제경매 | 주OOOOOOOOOOOOOOO | 320,000,000 | 소멸 | 2025타경73276 |
관련 문서 (PDF)
클릭하면 원본 파일이 열립니다