목록으로
최종 업데이트: 2026-04-23 19:57
2025타경71899
부동산
부동산임의경매
매각
진행중
| 소재지 |
-
(경기도 양주시 고암동 160-3)
|
|---|---|
| 물건종류 | 근린주택 |
| 면적 |
토지: 0.00㎡ (0평)
건물: 622.32㎡ (188.25평)
|
| 현재 위치 | 경기도 양주시 고암동 160-3 |
| 소유자 / 채무자 | 망 김가경의 상속인 김현무 / 망 김가경의 상속인 김현무 |
| 채권자 | 하나신협 |
| 배당종기일 | 2025-06-09 |
감정가
1,187,790,480
최저가
407,412,000
보증금
40,741,200
진행 상태 / 매각 결과
매각
completed = false
매각허가결정
| 상태 코드 | 2 | 상태 텍스트 | 매각허가결정 |
|---|---|---|---|
| 매각가 | 480,000,000원 | 매각가율 | 0% |
| 입찰 수 | 1 | 매수인 | 이영순외1 |
| 차순위 입찰가 | 0원 | 매각허가 결정 | 매각허가결정 |
| 매각허가 결정일 | 2026-03-24 | 대금 지급기한 | - |
| 대금 지급상태 | - | 배당기일 | - |
| 배당 종결일 | - | 다음 확인 예정 | 2026-04-24 09:00 |
입찰 진행 내역
| 회차/구분 | 입찰기일 | 최저매각가격 | 결과 |
|---|---|---|---|
| 1차 (진행) | 2025-12-02 | 1,187,790,480 | 유찰 |
| 2차 (진행) | 2026-01-06 | 831,453,000 | 유찰 |
| 3차 (진행) | 2026-02-10 | 582,017,000 | 유찰 |
| 4차 (진행) | 2026-03-17 | 407,412,000 |
진행 메모
매각 : 480,000,000 원 (40.41%)
(입찰 1 명,매수인:이영순외1)
매각결정기일 : 2026.03.24 - 매각허가결정
대금지급기한 : 2026.04.30
대금납부 2026.04.17 / 배당기일 2026.05.21
임차인 현황
| 임차인명 | 점유여부 | 전입/확정/배당 | 보증금 / 차임 | 예상배당액 | 대항력 |
|---|---|---|---|---|---|
| 김남억 | 주거용 302호 전부 |
전입: 2019-04-26
확정: 2025-04-10 배당: 2025-05-15 |
15,000,000
월 0
|
0 | 없음 |
| 김남억(상가) | 점포 1층 |
전입: -
확정: 2025-03-24 배당: 2025-05-15 |
20,000,000
월 1,100,000
|
0 | 없음 |
| 이광희 | 주거용 202호 |
전입: 2013-04-19
확정: 2013-08-02 배당: 2025-04-23 |
70,000,000
월 0
|
0 | 없음 |
| 이영순 | 주거용 201호 |
전입: 2020-04-20
확정: 2020-04-21 배당: 2025-04-29 |
70,000,000
월 0
|
0 | 없음 |
| 정재수 | 주거용 405호 |
전입: 2021-02-09
확정: 2020-05-27 배당: 2025-03-31 |
30,000,000
월 0
|
0 | 없음 |
매각물건 현황
| 구분 | 순번 | 소재지 | 용도/구조/면적 | 감정가 | 비고 |
|---|---|---|---|---|---|
| 토지 | 토지 | 고암동 160-3 | 상대보호구역,배출시설설치제한지역,성장관리권역,제1종일반주거지역,...상대보호구역,배출시설설치제한지역,성장관리권역,제1종일반주거지역,택지개발지구,지구단위계획구역,가축사육제한구역 / 대 263.7㎡ (79.77평) | 2,140,000 | 564,318,000원 |
| 건물 | 1 | 엄상동길 50-20 [고암동 160-3]철근콘크리트조 스라브지붕 | 1층 / 근린생활시설(음식점) | 154 | 952,000원 |
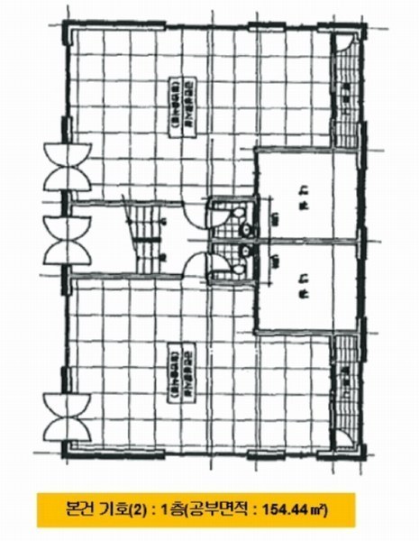
| 2 | 2층 | (다가구)주택 | 154.44㎡(46.72평) / 1,120,000원 | 172,972,800 | * 사용승인:2003.02.10 |
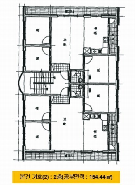
| 3 | 3층 | (다가구)주택 | 154.44㎡(46.72평) / 1,120,000원 | 172,972,800 | * 사용승인:2003.02.10 |
| 제시외건물 | 1 | 엄상동길 50-20 [고암동 160-3]철근콘크리트조 기타지붕 등 1.철근콘크리트조 기타지붕, 2.철재기둥 PVC판넬지붕 | 옥상 / 주택 4가구(통칭 401호, 402호, 403호, 40 | 129 | 1,000,000원 |
| 2 | 옥상 | 베란다 | 30㎡(9.08평) / 50,000원 | 1,500,000 | 매각포함* 옥상1층 |
현황 및 위치
* 본건은 경기도 양주시 고암동 소재 "회천초등학교" 남서측 인근에 위치하는 주상용 부동산으로서, 주위는 근린생활시설, 단독주택, 다가구주택, 각급학교 등이 혼재하는 주상지대임 * 본건까지 차량 진ㆍ출입 용이하고, 인근에 노선버스 정류장 등이 소재하는 등 주변의 제반 교통사정은 보통시됨 * 본건은 인접도로 대비 등고평탄한 가장형 토지로서 건부지(주상용)로 이용 중임 * 본건 동측으로 노폭 약 10미터 내외의 아스팔트 포장도로와 접하며, 이 도로는 인근의 대로와 연계되어 시내 각 방향으로의 계통성은 무난함
참고사항
* 일괄매각. 제시외 건물 포함 * 건축물 대장상 위반건축물임. - 2015.12.24. : 주택과-43029(2015.12.24.)호에 의거 “위반건축물” 사항 등재
전문가 코멘트
☞ 위반(불법)건축물일 경우 건축법 제80조에 의해 계고 및 원상복구명령을 받게되고, 원상복구 하지 않으면 매년 2회 이내 이행강제금이 부과되므로 관할 관청을 통하여 위반내용, 이행강제금 부과내역 또는 양성화방안 등을 확인하시고 이로 인해 잔금대출에 영향이 없는지 금융기관에 확인하시기 바랍니다.(상가의 경우 기존 영업허가는 승계가 가능하나 신규 영업허가는 발급이 어려우니 주의하시기 바랍니다.)
등기부 현황
건물
| 순위 | 접수일자 | 권리종류 | 권리자 | 채권금액 | 소멸여부 | 비고 |
|---|---|---|---|---|---|---|
| 1(갑1) | 2003-03-22 | 소유권보존 | 김OO | 0 | ||
| 2(을2) | 2011-01-21 | 근저당 | 양OOOOO | 52,000,000 | 소멸 | 말소기준등기명칭변경전:회천신용협동조합 |
| 3(을4) | 2011-08-18 | 근저당 | 양OOOOO | 13,000,000 | 소멸 | |
| 4(을7) | 2017-02-02 | 근저당 | 양OOOOO | 130,000,000 | 소멸 | |
| 5(갑2) | 2017-03-27 | 소유권이전(매매) | 김OO | 0 | ||
| 6(을8) | 2019-11-05 | 근저당 | 하OOO | 60,000,000 | 소멸 | |
| 7(갑11) | 2025-03-20 | 임의경매 | 하OOO | 156,631,435 | 소멸 | 2025타경71899 |
| 8(갑12) | 2025-05-29 | 압류 | 양OO | 0 | 소멸 |
관련 문서 (PDF)
클릭하면 원본 파일이 열립니다