목록으로
최종 업데이트: 2026-04-22 13:21
2025타경72196
부동산
부동산강제경매
유찰
진행중
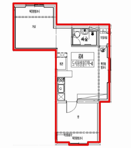
| 소재지 |
경기도 의정부시 호국로 1311, 혜성루첸리 11층 1104호
(경기도 의정부시 의정부동 214-76)
|
|---|---|
| 물건종류 | 아파트 |
| 면적 |
토지: 7.17㎡ (2.17평)
건물: 36.85㎡ (11.15평)
|
| 현재 위치 | 경기도 의정부시 호국로 1311, 혜성루첸리 11층 1104호 |
| 소유자 / 채무자 | 홍세현 / 홍세현 |
| 채권자 | 주택도시보증공사 |
| 배당종기일 | 2025-07-15 |
감정가
256,000,000
최저가
125,440,000
보증금
12,544,000
입찰 진행 내역
| 회차/구분 | 입찰기일 | 최저매각가격 | 결과 |
|---|---|---|---|
| 1차 (진행) | 2026-02-10 | 256,000,000 | 유찰 |
| 2차 (진행) | 2026-03-17 | 179,200,000 | 유찰 |
| 3차 (진행) | 2026-04-21 | 125,440,000 | |
| 4차 (진행) | 2026-06-02 | 87,808,000 |
임차인 현황
| 임차인명 | 점유여부 | 전입/확정/배당 | 보증금 / 차임 | 예상배당액 | 대항력 |
|---|---|---|---|---|---|
| 정지윤 | 주거용 전부 |
전입: 2022-05-20
확정: 2022-05-02 배당: 2024-05-24 |
300,000,000
월 0
|
0 | 있음 |
매각물건 현황
| 구분 | 순번 | 소재지 | 용도/구조/면적 | 감정가 | 비고 |
|---|---|---|---|---|---|
| 건물 | 16층중 11층 | 22.01.05 | 36.851㎡(11.15평) / 도시형생활주택 | 179,200,000 | * 도시가스 난방 |
등기부 현황
건물
| 순위 | 접수일자 | 권리종류 | 권리자 | 채권금액 | 소멸여부 | 비고 |
|---|---|---|---|---|---|---|
| 1(갑4) | 2022-05-27 | 소유권이전(매매) | 홍OO | 0 | 거래가액:300,000,000 | |
| 2(을1) | 2024-05-24 | 주택임차권(전부) | 정OO | 300,000,000 | 전입:2022.05.20확정:2022.05.02 | |
| 3(갑5) | 2025-04-29 | 강제경매 | 주OOOOOOOOOOOOOOO | 317,151,052 | 소멸 | 말소기준등기2025타경72196 |
관련 문서 (PDF)
클릭하면 원본 파일이 열립니다