목록으로
최종 업데이트: 2026-04-22 13:21
2025타경4827
청주지방법원 본원 1계(043-249-7301)
부동산
부동산강제경매
유찰
진행중
| 소재지 |
-
(충청북도 청주시 청원구 율량동 2395)
|
|---|---|
| 물건종류 | 다가구(원룸등) |
| 면적 |
토지: 0.00㎡ (0평)
건물: 424.90㎡ (128.53평)
|
| 현재 위치 | 충청북도 청주시 청원구 율량동 2395 |
| 소유자 / 채무자 | 진경호 / 진경호 |
| 채권자 | 이현미 외 1 |
| 배당종기일 | 2025-12-23 |
감정가
1,025,393,600
최저가
502,442,000
보증금
50,244,200
입찰 진행 내역
| 회차/구분 | 입찰기일 | 최저매각가격 | 결과 |
|---|---|---|---|
| 1차 (진행) | 2026-02-10 | 1,025,393,600 | 유찰 |
| 2차 (진행) | 2026-03-17 | 717,775,000 | 유찰 |
| 3차 (진행) | 2026-04-21 | 502,442,000 | |
| 4차 (진행) | 2026-05-26 | 351,709,000 |
임차인 현황
| 임차인명 | 점유여부 | 전입/확정/배당 | 보증금 / 차임 | 예상배당액 | 대항력 |
|---|---|---|---|---|---|
| 김도희 | 주거용 303호 전체 |
전입: 2020-08-20
확정: 2025-12-22 배당: 2025-12-22 |
3,000,000
월 450,000
|
0 | 없음 |
| 김승규 | 주거용 3층 301호 30㎡전부 |
전입: 2025-09-09
확정: 2025-09-03 배당: 2025-09-15 |
40,000,000
월 0
|
0 | 없음 |
| 김영민 | 주거용 304호 전체 |
전입: 2018-11-12
확정: 2018-11-29 배당: 2025-12-10 |
80,000,000
월 0
|
0 | 없음 |
| 김영현 | 주거용 202호 전체 |
전입: 2025-11-10
확정: 2020-09-01 배당: 2025-11-12 |
90,000,000
월 0
|
0 | 없음 |
| 김의성 | 주거용 201호 전체 |
전입: 2024-01-02
확정: 2023-12-12 배당: 2025-12-19 |
40,000,000
월 0
|
0 | 없음 |
| 안예라 | 주거용 3층 중 약24㎡ (302호) |
전입: 2021-03-15
확정: 2021-03-15 배당: 2025-04-11 |
40,000,000
월 0
|
0 | 없음 |
| 임지현 | 주거용 203호 전체 |
전입: 2021-10-14
확정: 2021-09-16 배당: 2025-12-10 |
80,000,000
월 0
|
0 | 없음 |
매각물건 현황
| 구분 | 순번 | 소재지 | 용도/구조/면적 | 감정가 | 비고 |
|---|---|---|---|---|---|
| 토지 | 토지 | 율량동 2395 | 도시지역,중점경관관리구역,가축사육제한구역,제1종일반주거지역,지구...도시지역,중점경관관리구역,가축사육제한구역,제1종일반주거지역,지구단위계획구역,주거용지 / 대 246.4㎡ (74.54평) | 1,430,000 | 352,352,000원 |
| 건물 | 1 | 율중로 47-2 [율량동 2395]철근콘크리트구조 철근콘크리트스라브지붕 | 1층 / 단독주택(다가구주택) | 84 | 1,584,000원 |
| 2 | 2층 | 단독주택(다가구주택) | 147.26㎡(44.55평) / 1,584,000원 | 233,259,840 | * 사용승인:2018.10.10 |
| 3 | 3층 | 단독주택(다가구주택) | 147.26㎡(44.55평) / 1,584,000원 | 233,259,840 | * 사용승인:2018.10.10 |
| 4 | 4층 | 단독주택(다가구주택) | 115.54㎡(34.95평) / 1,584,000원 | 183,015,360 | * 사용승인:2018.10.10 |
현황 및 위치
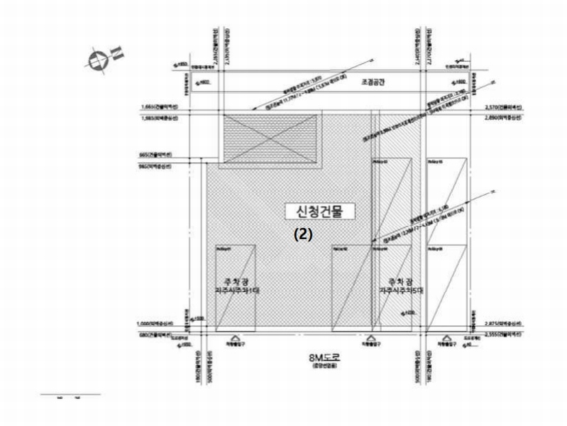
* 본건은 충청북도 청주시 청원구 율량동 소재 "동청주세무서" 남동쪽 인근에 위치하며, 인근은 세무서 등 공공시설, 아파트단지, 다가구주택, 근린생활시설 등으로 형성되어 있음. * 본건까지 차량 출입이 가능하며, 인근에 간선도로 및 노선버스 정류장이 소재하는 등 교통상황은 보통시 됨. * 본건 토지는 인접지 대비 대체로 등고평탄한 정방형 토지로서 단독주택(다가구주택) 건부지로 이용 중임. * 본건 동쪽으로 노폭 8m 내외 포장도로와 접함.
참고사항
* 일괄매각 * 건물 옥상에 소재하는 옥탑계단실은 건물의 구성부분으로서 단독의 효용가치가 희박한 점 등을 고려하여 건물에 포함하여 감정평가하였는 바 경매 진행시 참고하시기 바람
등기부 현황
건물
| 순위 | 접수일자 | 권리종류 | 권리자 | 채권금액 | 소멸여부 | 비고 |
|---|---|---|---|---|---|---|
| 1(갑1) | 2018-10-15 | 소유권보존 | 진OO | 0 | ||
| 2(을1) | 2018-10-15 | 근저당 | 남OOOO | 455,000,000 | 소멸 | 말소기준등기 |
| 3(갑2) | 2025-01-02 | 압류 | 국OOOOOOOOO | 0 | 소멸 | |
| 4(을2) | 2025-04-11 | 주택임차권(3층 중 약24㎡ (302호)) | 안OO | 40,000,000 | 소멸 | 전입:2021.03.15확정:2021.03.15 |
| 5(을3) | 2025-09-15 | 주택임차권(3층 301호 30㎡전부) | 김OO | 40,000,000 | 소멸 | 전입:2025.09.09확정:2025.09.03 |
| 6(갑3) | 2025-09-22 | 강제경매 | 이OO | 86,000,000 | 소멸 | 2025타경4827 |
| 7(갑4) | 2025-12-05 | 임의경매 | 남OOOO | 354,570,950 | 소멸 | 2025타경52093 |
관련 문서 (PDF)
클릭하면 원본 파일이 열립니다