목록으로
최종 업데이트: 2026-04-25 09:37
2025타경2722
부동산
부동산임의경매
유찰
진행중
| 소재지 |
경기도 포천시 삼육사로 2230-8, 월드에스클래스 203동 2층 202호
(경기도 포천시 선단동 541-1)
|
|---|---|
| 물건종류 | 다세대(빌라) |
| 면적 |
토지: 56.69㎡ (17.15평)
건물: 69.79㎡ (21.11평)
|
| 현재 위치 | 경기도 포천시 삼육사로 2230-8, 월드에스클래스 203동 2층 202호 |
| 소유자 / 채무자 | 방정수 / 방정수 |
| 채권자 | 남인천농협 |
| 배당종기일 | 2025-10-20 |
감정가
164,000,000
최저가
80,360,000
보증금
8,036,000
입찰 진행 내역
| 회차/구분 | 입찰기일 | 최저매각가격 | 결과 |
|---|---|---|---|
| 1차 (진행) | 2026-02-24 | 164,000,000 | 유찰 |
| 2차 (진행) | 2026-03-31 | 114,800,000 | 유찰 |
| 3차 (진행) | 2026-05-12 | 80,360,000 | |
| 4차 (진행) | 2026-06-16 | 56,252,000 |
임차인 현황
| 임차인명 | 점유여부 | 전입/확정/배당 | 보증금 / 차임 | 예상배당액 | 대항력 |
|---|---|---|---|---|---|
| 장윤경 | 주거용 |
전입: 2021-05-06
확정: - 배당: - |
0
월 0
|
0 | 없음 |
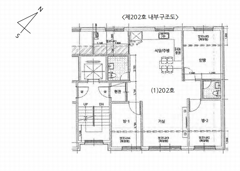
매각물건 현황
| 구분 | 순번 | 소재지 | 용도/구조/면적 | 감정가 | 비고 |
|---|---|---|---|---|---|
| 건물 | 5층중 2층 | 16.11.14 | 69.7875㎡(21.11평) / 주거용 | 131,200,000 | * 도시가스보일러에 의한 난방 |
현황 및 위치
* 본건은 경기도 포천시 선단동 소재 "장승거리사거리" 북서측 인근에 위치하고 있으며, 주위는 다세대주택, 단독주택, 근린 생활시설, 중·소규모의 공장 및 농경지 등이 혼재하는 지역임. * 본건 소재 단지까지 제 차량의 출입이 가능하며, 인근 대중교통 수단의 운행 빈도수 및 노선, 교통연계성 등으로 보아 전반 적인 교통사정은 보통시됨. * 인접지 대비 등고 평탄한 세장형의 건부지임. * 본건 소재 부지 동측으로 폭 약 6미터 내외의 포장도로에 접함.
등기부 현황
건물
| 순위 | 접수일자 | 권리종류 | 권리자 | 채권금액 | 소멸여부 | 비고 |
|---|---|---|---|---|---|---|
| 1(갑2) | 2016-11-22 | 소유권이전(매매) | 방OO | 0 | 거래가액:200,000,000 | |
| 2(을1) | 2016-11-22 | 근저당 | 남OOOOOOOOOO | 132,000,000 | 소멸 | 말소기준등기 |
| 3(갑5) | 2019-01-08 | 압류 | 국OOOOOOO | 0 | 소멸 | |
| 4(갑6) | 2019-02-22 | 압류 | 국OOOOOOO | 0 | 소멸 | |
| 5(갑13) | 2024-11-19 | 압류 | 국OOOOOOOOO | 0 | 소멸 | |
| 6(갑14) | 2025-07-01 | 임의경매 | 남OOOO | 83,495,652 | 소멸 | 2025타경2722 |
관련 문서 (PDF)
클릭하면 원본 파일이 열립니다