목록으로
최종 업데이트: 2026-04-26 22:44
2025타경2497
부동산
부동산임의경매
유찰
진행중
| 소재지 |
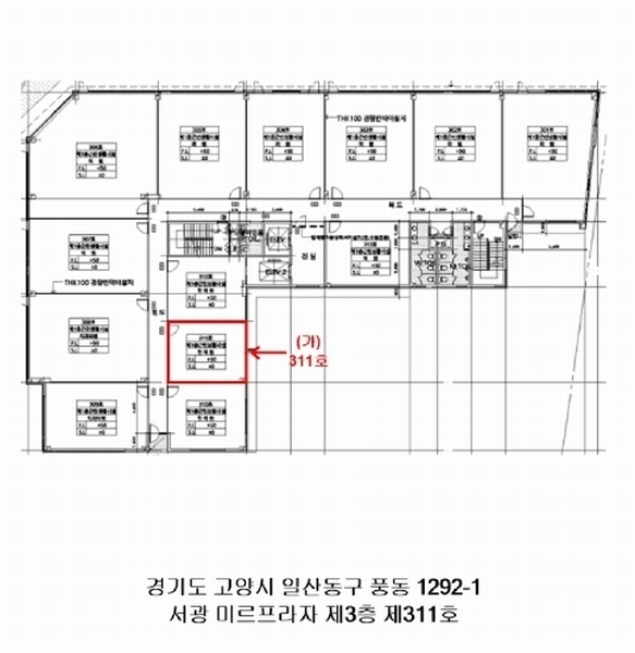
경기도 고양시 일산동구 숲속마을1로 29-37, 서광미르프라자 3층 311호
(경기도 고양시 일산동구 풍동 1292-1)
|
|---|---|
| 물건종류 | 근린상가 |
| 면적 |
토지: 20.46㎡ (6.19평)
건물: 37.26㎡ (11.27평)
|
| 현재 위치 | 경기도 고양시 일산동구 숲속마을1로 29-37, 서광미르프라자 3층 311호 |
| 소유자 / 채무자 | 임강순 / 임강순 |
| 채권자 | 하나은행 |
| 배당종기일 | 2025-08-11 |
감정가
83,000,000
최저가
40,670,000
보증금
4,067,000
입찰 진행 내역
| 회차/구분 | 입찰기일 | 최저매각가격 | 결과 |
|---|---|---|---|
| 1차 (진행) | 2026-03-05 | 83,000,000 | 유찰 |
| 2차 (진행) | 2026-04-09 | 58,100,000 | 유찰 |
| 3차 (진행) | 2026-05-14 | 40,670,000 | |
| 4차 (진행) | 2026-06-18 | 28,469,000 |
임차인 현황
| 임차인명 | 점유여부 | 전입/확정/배당 | 보증금 / 차임 | 예상배당액 | 대항력 |
|---|---|---|---|---|---|
| 이애순 | 주거용 |
전입: 2024-05-14
확정: - 배당: - |
0
월 0
|
0 | 없음 |
매각물건 현황
| 구분 | 순번 | 소재지 | 용도/구조/면적 | 감정가 | 비고 |
|---|---|---|---|---|---|
| 건물 | 4층중 3층 | 06.11.21 | 37.26㎡(11.27평) / 한의원 | 41,500,000 |
현황 및 위치
* 본건은 경기도 고양시 일산동구 풍동 소재 "풍산중학교" 남서측 인근에 위치하며, 주위는 아파트단지, 근린생활시설, 학교 등이 혼재하는 지역으로서 제반 주위환경은 대체로 보통임. * 본건까지 차량의 진출입이 가능하며, 인근에 버스정류장 및 근거리에 지하철 "백마역(경의중 앙선, 서해선)이 소재하는 등 제반 교통여건은 대체로 보통임. * 인접필지 및 도로 대비 대체로 등고 평탄한 사다리형의 토지로서, 제1종 및 제2종근린생활 시설 건부지로 이용중임. * 본건은 북측으로 도로폭 약 20M 내외의 포장도로 및 서측으로 도로폭 약 15M 내외의 포장도 로와 각각 접함.
등기부 현황
건물
| 순위 | 접수일자 | 권리종류 | 권리자 | 채권금액 | 소멸여부 | 비고 |
|---|---|---|---|---|---|---|
| 1(갑6) | 2022-04-28 | 소유권이전(매매) | 임OO | 0 | 거래가액:82,500,000 | |
| 2(을3) | 2022-04-28 | 근저당 | 하OOOOOOOOO | 31,650,000 | 소멸 | 말소기준등기 |
| 3(갑9) | 2024-12-27 | 가압류 | 신OOOOO | 8,180,537 | 소멸 | 2024카단55881 |
| 4(갑10) | 2025-02-06 | 가압류 | 경OOOOOOO | 36,500,000 | 소멸 | 2025카단100432 |
| 5(갑11) | 2025-03-06 | 가압류 | 웰OOOOO | 17,123,660 | 소멸 | 2025카단100867 |
| 6(갑12) | 2025-05-19 | 임의경매 | 하OOOOOOOOOO | 31,650,000 | 소멸 | 2025타경2497 |
| 7(갑13) | 2025-12-17 | 압류 | 국OOOOOOO | 0 | 소멸 |
관련 문서 (PDF)
클릭하면 원본 파일이 열립니다