목록으로
최종 업데이트: 2026-04-22 17:33
2025타경62294
의정부지방법원 2025타경71551 이송전사건 임차인현황 ( 말소기준권리 : 2016.01.14
부동산
부동산임의경매
매각
진행중
| 소재지 |
경기도 고양시 일산동구 숲속마을1로 115, 숲속마을 803동 8층 803호
(경기도 고양시 일산동구 풍동 1258)
|
|---|---|
| 물건종류 | 아파트[공급25평형] |
| 면적 |
토지: 41.83㎡ (12.65평)
건물: 59.72㎡ (18.07평)
|
| 현재 위치 | 경기도 고양시 일산동구 숲속마을1로 115, 숲속마을 803동 8층 803호 |
| 소유자 / 채무자 | 이진범 / 고영애 |
| 채권자 | 농협은행 |
| 배당종기일 | 2025-05-12 |
감정가
361,000,000
최저가
252,700,000
보증금
25,270,000
진행 상태 / 매각 결과
매각
completed = false
매각허가결정
| 상태 코드 | 2 | 상태 텍스트 | 매각허가결정 |
|---|---|---|---|
| 매각가 | 293,510,000원 | 매각가율 | 0% |
| 입찰 수 | 12 | 매수인 | 서울시 천영일 |
| 차순위 입찰가 | 293,100,123원 | 매각허가 결정 | 매각허가결정 |
| 매각허가 결정일 | 2026-03-12 | 대금 지급기한 | - |
| 대금 지급상태 | - | 배당기일 | - |
| 배당 종결일 | - | 다음 확인 예정 | 2026-04-23 09:00 |
입찰 진행 내역
| 회차/구분 | 입찰기일 | 최저매각가격 | 결과 |
|---|---|---|---|
| 1차 (진행) | 2026-01-22 | 361,000,000 | 유찰 |
| 2차 (진행) | 2026-03-05 | 252,700,000 |
진행 메모
매각 : 293,510,000 원 (81.3%)
(입찰 12 명,매수인:서울시 천영일 / 차순위금액 293,100,123원)
매각결정기일 : 2026.03.12 - 매각허가결정
대금지급기한 : 2026.04.24
대금납부 2026.04.03 / 배당기일 2026.05.06
매각물건 현황
| 구분 | 순번 | 소재지 | 용도/구조/면적 | 감정가 | 비고 |
|---|---|---|---|---|---|
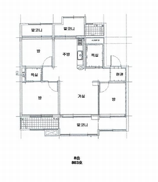
| 건물 | 20층중 8층 | 19.12.18 | 59.72㎡(18.07평)[공급25평] / 방3, 거실, 주방/식당, 욕실2, 발코니3, 현관 | 180,500,000 |
현황 및 위치
* 경기도 고양시 일산동구 풍동 소재 ""풍동중학교"" 북측 인근에 위치하며, 일대는 대단위 아파트단지가 혼재하고 인근에 각급학교, 각종 생활편의시설 등이 소재하여 제반 주위 환경은 보통인 편입니다. * 본건까지 차량의 접근 자유로우며, 인근에 버스정류장이 소재하여 일반 대중교통 이용 편익은 보통인 편입니다. * 인접지와 등고 평탄한 광평수의 사다리형 토지로서, 아파트(숲속마을) 건부지로 이용 중입니다. * 단지 내 도로가 외곽 공도와 연계됩니다.
참고사항
[관련사건내역] 의정부지방법원 2025타경71551 이송전사건
등기부 현황
건물
| 순위 | 접수일자 | 권리종류 | 권리자 | 채권금액 | 소멸여부 | 비고 |
|---|---|---|---|---|---|---|
| 1(갑2) | 2011-12-14 | 소유권이전(매매) | 이OO | 0 | 거래가액:117,329,000 | |
| 2(을3) | 2016-01-14 | 근저당 | 농OOOOOOOOO | 222,000,000 | 소멸 | 말소기준등기 |
| 3(갑9) | 2022-10-27 | 압류 | 국OOOOOOOO | 0 | 소멸 | |
| 4(갑10) | 2023-01-11 | 압류 | 고OO | 0 | 소멸 | |
| 5(갑11) | 2023-02-08 | 가압류 | 서OOOOOOOO | 158,575,120 | 소멸 | 2023카단803000 |
| 6(갑12) | 2023-04-04 | 압류 | 국OOOOOOO | 0 | 소멸 | |
| 7(갑13) | 2023-06-28 | 가압류 | 신OOOOO | 19,392,939 | 소멸 | 2023카단33234 |
| 8(갑14) | 2024-09-03 | 가압류 | 서OOOOOOOO | 13,238,384 | 소멸 | 2024카단103625 |
| 9(갑15) | 2025-02-17 | 임의경매 | 농OOOOOOOOOOOO | 177,064,107 | 소멸 | 2025타경62294 |
관련 문서 (PDF)
클릭하면 원본 파일이 열립니다