목록으로
최종 업데이트: 2026-04-27 11:52
2025타경63209
부동산
부동산강제경매
유찰
진행중
| 소재지 |
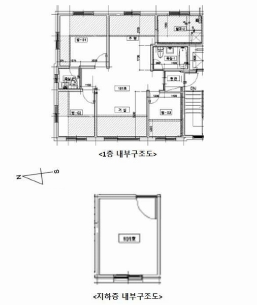
경기도 파주시 미래로310번길 170-13, 아르체 104동 1층 101호
(경기도 파주시 동패동 2-38)
|
|---|---|
| 물건종류 | 다세대(빌라) |
| 면적 |
토지: 60.90㎡ (18.42평)
건물: 60.82㎡ (18.4평)
|
| 현재 위치 | 경기도 파주시 미래로310번길 170-13, 아르체 104동 1층 101호 |
| 소유자 / 채무자 | 김태훈 / 김태훈 |
| 채권자 | 한국주택금융공사 |
| 배당종기일 | 2025-08-18 |
감정가
229,000,000
최저가
160,300,000
보증금
16,030,000
입찰 진행 내역
| 회차/구분 | 입찰기일 | 최저매각가격 | 결과 |
|---|---|---|---|
| 1차 (진행) | 2025-12-16 | 229,000,000 | 유찰 |
| 2차 (진행) | 2026-01-27 | 160,300,000 | 유찰 |
| 3차 (진행) | 2026-03-10 | 112,210,000 | 유찰 |
| (진행) | 2026-04-14 | 78,547,000 | 변경 |
| 4차 (진행) | 2026-04-14 | 229,000,000 | 유찰 |
| 5차 (진행) | 2026-05-19 | 160,300,000 | |
| 6차 (진행) | 2026-06-23 | 112,210,000 | |
| 7차 (진행) | 2026-07-28 | 78,547,000 |
임차인 현황
| 임차인명 | 점유여부 | 전입/확정/배당 | 보증금 / 차임 | 예상배당액 | 대항력 |
|---|---|---|---|---|---|
| 김성민 | 주거용 건물전부 |
전입: 2021-10-18
확정: 2021-10-18 배당: 2024-03-11 |
260,000,000
월 0
|
0 | 있음 |
| 황상우 | 주거용 101호 전부 |
전입: -
확정: - 배당: - |
0
월 0
|
0 | - |
매각물건 현황
| 구분 | 순번 | 소재지 | 용도/구조/면적 | 감정가 | 비고 |
|---|---|---|---|---|---|
| 건물 | 4층중 1층 | 17.12.15 | 60.815㎡(18.4평) / 주거용 | 137,400,000 |
현황 및 위치
* 대상물건은 경기도 파주시 야당동 소재 "운정초등학교" 남서측 인근에 위치하고, 주위는 공동주택, 중소규모 근린생활시설 등이 소재하는 지역으로 주위환경은 보통임. * 대상물건까지 차량출입이 가능하며, 인근에 노선버스정류장이 소재하는 등 대중교통상황은 보통임. * 대상물건은 부정형 토지로서, 공동주택 건부지로 이용중임 * 대상물건 북측으로 노폭 약 6m 내외의 포장도로와 접함
등기부 현황
건물
| 순위 | 접수일자 | 권리종류 | 권리자 | 채권금액 | 소멸여부 | 비고 |
|---|---|---|---|---|---|---|
| 1(갑4) | 2021-11-18 | 소유권이전(매매) | 김OO | 0 | 거래가액:260,000,000 | |
| 2(을5) | 2024-03-11 | 주택임차권(건물전부) | 김OO | 260,000,000 | 소멸 | 전입:2021.10.18확정:2021.10.18 |
| 3(갑5) | 2025-04-04 | 압류 | 부OOOOOOOOO | 0 | 소멸 | 말소기준등기 |
| 4(갑6) | 2025-05-21 | 강제경매 | 한OOOOOOOOOOOOOOOOOOOO | 291,206,048 | 소멸 | 2025타경63209 |
관련 문서 (PDF)
클릭하면 원본 파일이 열립니다