목록으로
최종 업데이트: 2026-04-27 12:06
2025타경64362
부동산
부동산임의경매
유찰
진행중
| 소재지 |
-
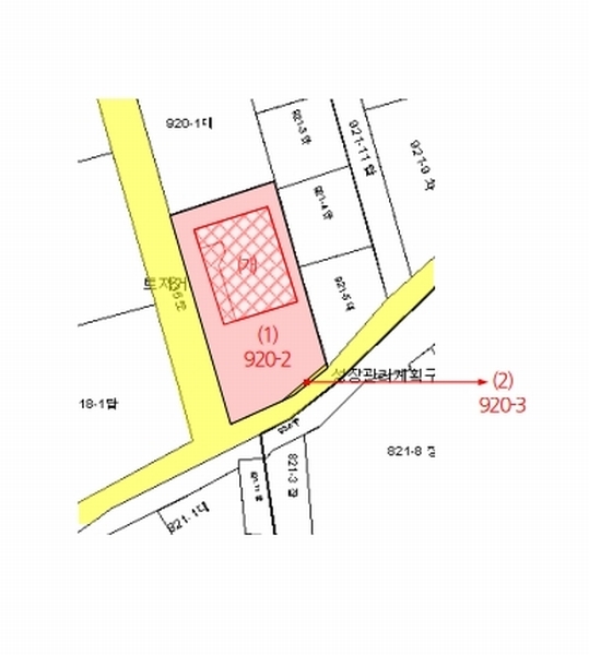
(경기도 파주시 월롱면 덕은리 920-2)
|
|---|---|
| 물건종류 | 종교시설 |
| 면적 |
토지: 0.00㎡ (0평)
건물: 662.40㎡ (200.38평)
|
| 현재 위치 | 경기도 파주시 월롱면 덕은리 920-2 |
| 소유자 / 채무자 | 최인영 / 최인영 |
| 채권자 | 농협자산관리회사 |
| 배당종기일 | 2025-12-22 |
감정가
1,598,313,000
최저가
783,173,000
보증금
78,317,300
입찰 진행 내역
| 회차/구분 | 입찰기일 | 최저매각가격 | 결과 |
|---|---|---|---|
| 1차 (진행) | 2026-03-10 | 1,598,313,000 | 유찰 |
| 2차 (진행) | 2026-04-14 | 1,118,819,000 | 유찰 |
| 3차 (진행) | 2026-05-19 | 783,173,000 | |
| 4차 (진행) | 2026-06-23 | 548,221,000 |
매각물건 현황
| 구분 | 순번 | 소재지 | 용도/구조/면적 | 감정가 | 비고 |
|---|---|---|---|---|---|
| 토지 | 토지 | 1 | 덕은리 920-2 / 제한보호구역(전방지역:25km),군사기지 및 군사시설기타,토지거래계약...제한보호구역(전방지역:25km),군사기지 및 군사시설기타,토지거래계약에관한허가구역,가축사육제한구역,계획관리지역 | 981 | 1,100,000원(524,800원) |
| 토지 | 2 | 덕은리 920-3 | 제한보호구역(전방지역:25km),군사기지 및 군사시설기타,토지거래계약...제한보호구역(전방지역:25km),군사기지 및 군사시설기타,토지거래계약에관한허가구역,가축사육제한구역,계획관리지역 / 도로 7㎡ (2.12평) | 363,000 | 2,541,000원 |
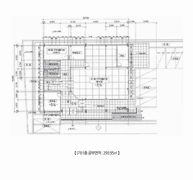
| 건물 | 1 | 엘지로386번길 67 [덕은리 920-2]철근콘크리트구조,일반철골구조 기타지붕 | 1층 / 종교시설(교회) | 246 | 780,000원 |
| 2 | 1층 | 종교시설(교회) | 47.6㎡(14.4평) / 780,000원 | 37,128,000 | * 사용승인:2011.07.07 |
| 3 | 2층 | 종교시설(교회) | 294.57㎡(89.11평) / 780,000원 | 229,764,600 | * 사용승인:2011.07.07 |
| 4 | 2층 | 종교시설(교회) | 73.88㎡(22.35평) / 780,000원 | 57,626,400 | * 사용승인:2011.07.07 |
현황 및 위치
* 본건은 경기도 파주시 월롱면 덕은리 소재 "파주LCD일반산업단지" 북측 인근에 소재하는 부동산(토지, 건물)으로서,주위는 다가구주택, 근린생활시설 등이 소재하는 지역으로 제반입지 여건은 보통입니다. * 본건까지 제반차량 진출입 용이하며, 인근에 노선버스정류장이 소재하는 바 대중교통 여건은 보통입니다. * 인접필지 대비 등고평탄한 사다리형의 토지로서 근린생활시설 건부지로 이용 중입니다. * 남측 및 서측으로 폭 약 6미터 내외의 도로와 접해있습니다.
참고사항
* 일괄매각 ☞현황서상 내용: 건물)제1,2종 근린생활시설이며, 교회건물로 이용중이나 현재는 폐쇄된 상태로 보임.
등기부 현황
건물
| 순위 | 접수일자 | 권리종류 | 권리자 | 채권금액 | 소멸여부 | 비고 |
|---|---|---|---|---|---|---|
| 1(갑1) | 2011-09-01 | 소유권보존 | 최OO | 0 | ||
| 2(을5) | 2019-04-25 | 근저당 | 농OOOOOOOOOOOOOOOOO | 840,000,000 | 소멸 | 말소기준등기확정채권양도전:인천원예농업협동조합 |
| 3(갑2) | 2025-09-29 | 임의경매 | 농OOOOOOO | 801,685,032 | 소멸 | 2025타경64362 |
관련 문서 (PDF)
클릭하면 원본 파일이 열립니다