목록으로
최종 업데이트: 2026-04-28 09:34
2024타경5161
부동산
부동산강제경매
유찰
진행중
| 소재지 |
경기도 고양시 일산동구 애니골길 14-18, 더포레스트빌 102동 2층 202호
(경기도 고양시 일산동구 풍동 1121-1)
|
|---|---|
| 물건종류 | 다세대(빌라) |
| 면적 |
토지: 48.42㎡ (14.65평)
건물: 41.22㎡ (12.47평)
|
| 현재 위치 | 경기도 고양시 일산동구 애니골길 14-18, 더포레스트빌 102동 2층 202호 |
| 소유자 / 채무자 | 정용철 / 정용철 |
| 채권자 | 오예솔 |
| 배당종기일 | 2024-09-30 |
감정가
262,000,000
최저가
5,180,000
보증금
518,000
입찰 진행 내역
| 회차/구분 | 입찰기일 | 최저매각가격 | 결과 |
|---|---|---|---|
| 1차 (진행) | 2025-04-09 | 262,000,000 | 유찰 |
| 2차 (진행) | 2025-05-14 | 183,400,000 | 유찰 |
| 3차 (진행) | 2025-06-18 | 128,380,000 | 유찰 |
| 4차 (진행) | 2025-07-23 | 89,866,000 | 유찰 |
| 5차 (진행) | 2025-08-27 | 62,906,000 | 유찰 |
| 6차 (진행) | 2025-10-01 | 44,034,000 | 유찰 |
| 7차 (진행) | 2025-11-12 | 30,824,000 | 유찰 |
| 8차 (진행) | 2025-12-17 | 21,577,000 | 유찰 |
| 9차 (진행) | 2026-01-28 | 15,100,000 | 유찰 |
| 10차 (진행) | 2026-03-11 | 10,570,000 | 유찰 |
| 11차 (진행) | 2026-04-15 | 7,400,000 | 유찰 |
| 12차 (진행) | 2026-05-20 | 5,180,000 |
임차인 현황
| 임차인명 | 점유여부 | 전입/확정/배당 | 보증금 / 차임 | 예상배당액 | 대항력 |
|---|---|---|---|---|---|
| 오예솔 | 주거용 전부 |
전입: 2019-05-29
확정: 2019-05-03 배당: 2024-09-09 |
249,000,000
월 0
|
0 | 있음 |
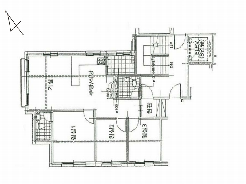
매각물건 현황
| 구분 | 순번 | 소재지 | 용도/구조/면적 | 감정가 | 비고 |
|---|---|---|---|---|---|
| 건물 | 4층중 2층 | 18.12.06 | 41.22㎡(12.47평) / 주거용 | 157,200,000 |
현황 및 위치
* 본건은 경기도 고양시 일산동구 풍동 소재 "풍산역" 남동측 인근에 위치하는더포레 스트빌 102동 제2층 제202호로서, 주위는 연립주택, 다세대 및 다가구주택, 전, 근린생활시설등이 소재함. * 본건까지 차량 접근 및 주정차 가능하고, 인근에 경의중앙선 및 서해선 "풍산역"과 노선버스 정류장이 소재하며, 시내로의 접근성 ,이용의 편리성 등 제반 대중교통여건은 보통임. * 대체로 등고평탄한 부정형 토지로서 "다세대주택 건부지"로 이용중임. * 본건 북측으로 로폭 약6미터 내외의 포장도로와 접함.
등기부 현황
건물
| 순위 | 접수일자 | 권리종류 | 권리자 | 채권금액 | 소멸여부 | 비고 |
|---|---|---|---|---|---|---|
| 1(갑4) | 2019-05-29 | 소유권이전(매매) | 정OO | 0 | ||
| 2(갑7) | 2021-04-01 | 압류 | 국OOOOOOOO | 0 | 소멸 | 말소기준등기 |
| 3(갑8) | 2021-10-21 | 압류 | 고OOOOOOOOOO | 0 | 소멸 | |
| 4(갑9) | 2022-03-15 | 압류 | 국OOOOOOOO | 0 | 소멸 | |
| 5(갑10) | 2023-02-07 | 압류 | 국OOOOOOOO | 0 | 소멸 | |
| 6(갑11) | 2023-02-08 | 압류 | 국OOOOOOOO | 0 | 소멸 | |
| 7(갑12) | 2024-01-17 | 가압류 | 서OOO | 58,000,000 | 소멸 | 2024카단100126 |
| 8(을1) | 2024-04-09 | 주택임차권(전부) | 오OO | 249,000,000 | 전입:2019.05.29확정:2019.05.03 | |
| 9(갑13) | 2024-07-05 | 강제경매 | 오OO | 249,000,000 | 소멸 | 2024타경5161 |
관련 문서 (PDF)
클릭하면 원본 파일이 열립니다