목록으로
최종 업데이트: 2026-04-22 13:21
2025타경1951
춘천지방법원 본원 1계(033-259-9706)
부동산
부동산강제경매
유찰
진행중
| 소재지 |
-
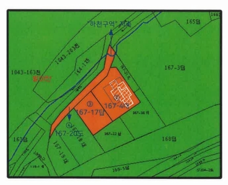
(강원특별자치도 춘천시 신동면 증리 167-4)
|
|---|---|
| 물건종류 | 주택 |
| 면적 |
토지: 0.00㎡ (0평)
건물: 155.11㎡ (46.92평)
|
| 현재 위치 | 강원특별자치도 춘천시 신동면 증리 167-4 |
| 소유자 / 채무자 | 원 / 원 |
| 채권자 | (주)디와이에스나인 |
| 배당종기일 | 2025-11-25 |
감정가
365,345,650
최저가
179,019,000
보증금
17,901,900
입찰 진행 내역
| 회차/구분 | 입찰기일 | 최저매각가격 | 결과 |
|---|---|---|---|
| 1차 (진행) | 2026-02-23 | 365,345,650 | 유찰 |
| 2차 (진행) | 2026-03-23 | 255,742,000 | 유찰 |
| 3차 (진행) | 2026-04-27 | 179,019,000 | |
| 4차 (진행) | 2026-06-08 | 125,313,000 |
매각물건 현황
| 구분 | 순번 | 소재지 | 용도/구조/면적 | 감정가 | 비고 |
|---|---|---|---|---|---|
| 토지 | 토지 | 1 | 증리 167-4 / 도시지역,가축사육제한구역,자연녹지지역 | 362 | 329,000원(116,900원) |
| 토지 | 2 | 증리 167-17 | 도시지역,가축사육제한구역,자연녹지지역 / 답 222㎡ (67.16평) | 329,000 | 73,038,000원 |
| 토지 | 3 | 증리 167-20 | 도시지역,가축사육제한구역,하천구역,하천,자연녹지지역 / 도로 57.33㎡ (17.34평) | 109,000 | 6,248,970원 |
| 건물 | 1 | 김유정로 1171-5 [증리 167-4]철근콘크리트구조 경사슬라브지붕 | 1층 / 단독주택 | 70 | 1,428,000원 |
| 2 | 2층 | 단독주택 | 29.7㎡(8.98평) / 1,428,000원 | 42,411,600 | * 사용승인:2017.10.16 |
| 제시외건물 | 1 | 증리 167-4샤시조 기타지붕 등 1.샤시조 기타지붕, 2.판넬조 판넬지붕, 3.철근콘크리트조 슬래브지붕 | 단층 / 부속사 | 36 | |
| 2 | 단층 | 보일러실 | 8.1㎡(2.45평) / | 1,620,000 | 매각포함 |
| 3 | 다락 | 10.8㎡(3.27평) / | 10,800,000 | 매각포함 |
현황 및 위치
* 본건은 강원특별자치도 춘천시 신동면 증리 소재 삼포1교 남서측 인근에 위치하며, 부근은 단독주택 등으로 이루어진 지역으로 제반 주위환경은 보통임. * 본건까지 차량접근 가능하며, 버스정류장까지의 거리, 운행횟수 등으로 보아 대중교통사정은 보통시됨. * 1,2) 기준시점 현재 2필지 일단의 사다리형 평지의 주거용 건부지로 이용 중임. 3) 기준시점 현재 부정형 평지의 도로임. * 1,2) 본건 북서측에 소재하는 노폭 약 3-4M 내외의 아스콘 포장도로 및 토3을 통해 진출입 가능함. 3) 본건이 지적도상 도로이며, 북서측에 소재하는 노폭 약 3-4M 내외의 아스콘 포장도로를 통해 진출입 가능함.
참고사항
* 일괄매각 * 제시외 건물 포함 * 본건 건물 일반건축물대장상 "대지면적 584㎡"로 등재되어 있으나 토2.(면적 362.0㎡)및 토3.(면적 222.0㎡)의 "일단지"로 조사되나 자세한 사항은 별도 확인 요망 * 토1-3) 지상의 석축, 조경, 수목 및 기타공작물등은 평가 및 매각 포함되나 "담장"은 소유관계 불명으로 평가 및 매각 제외됨 * 토2) 021.11.26.), 전용목적(단독주택), 허가조항(건축신고(증축)협의), 허가신청권자(이지원)] * 토3) 일부 토지이용계획확인서상 "하천(저촉), 하천구역"임 * 제시외건물(감정평가서상 ㄱ,ㄴ)은 일반건축물대장상 "2022.11.03."일자로 증축된 것으로 조사되나 "미등기"상태인 바, 별도 확인 요망 * 토2) "이동식 창고" 평가 및 매각 제외됨.
전문가 코멘트
☞ [농지취득자격증명] 농지를 취득하려는 자는 신청서와 농업경영계획서(주말·체험영농계획서)를 작성하여 농지 소재지를 관할하는 시·구·읍·면장에게서 농지취득자격증명원을 발급받아 매각결정기일 전까지 법원에 제출하여야 하고 미제출 시 보증금이 몰수될 수 있으니 입찰 전 발급 가능 여부를 확인하시기 바랍니다. (정부24시를 통하여 발급 신청도 가능합니다.) ※ 2021.08.17. 개정된 농지법에 따라 농업진흥지역 내 농지의 주말ㆍ체험영농목적 취득을 제한(제6조제2항제3호)하고 있으니 이점 참고하시고 입찰에 참여하시기 바랍니다. ※ 2022.05.18.부터 농지취득 자격심사가 대폭 강화됨으로 증빙서류 추가 및 발급 민원처리 기간이 연장되었으므로 주의하시기 바라며, 농지위원회 심의를 거쳐 농지취득자격증명 발급 여부를 판단하는 경우에는 14일 이내에 발급하도록 되어 있으므로 입찰 전에 미리 해당 행정관서에 농지취득자격증명의 신청도 가능함을 참고하시기 바랍니다.
등기부 현황
건물
| 순위 | 접수일자 | 권리종류 | 권리자 | 채권금액 | 소멸여부 | 비고 |
|---|---|---|---|---|---|---|
| 1(갑1) | 2017-11-30 | 소유권보존 | 이OO | 0 | ||
| 2(을1) | 2017-11-30 | 근저당 | 동OOOO | 132,000,000 | 소멸 | 말소기준등기 |
| 3(을3) | 2021-12-30 | 근저당 | (OOOOOOOOO | 300,000,000 | 소멸 | |
| 4(갑4) | 2025-08-22 | 강제경매 | (OOOOOOOOO | 366,575,341 | 소멸 | 2025타경1951 |
관련 문서 (PDF)
클릭하면 원본 파일이 열립니다