목록으로
최종 업데이트: 2026-04-23 08:54
2024타경80353
부동산
부동산강제경매
취하/변경
진행중
| 소재지 |
경기도 파주시 와석순환로 347경기도 파주시 와석순○○○○, 해솔마을2단지월드메르디앙 201동 17층 1703호해솔마을○○
(경기도 파주시 목동동 2-117)
|
|---|---|
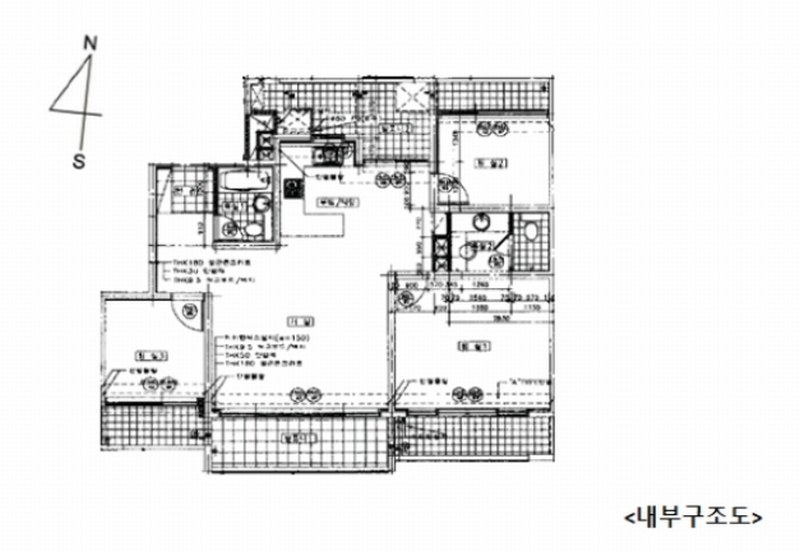
| 물건종류 | 아파트[공급33평형] |
| 면적 |
토지: 52.21㎡ (15.79평)
건물: 84.94㎡ (25.69평)
|
| 현재 위치 | 경기도 파주시 와석순환로 347경기도 파주시 와석순○○○○, 해솔마을2단지월드메르디앙 201동 17층 1703호해솔마을○○ |
| 소유자 / 채무자 | 최○○ / 최○○ |
| 채권자 | 김○○ |
| 배당종기일 | 2024-12-16 |
감정가
320,000,000
최저가
224,000,000
보증금
22,400,000
입찰 진행 내역
| 회차/구분 | 입찰기일 | 최저매각가격 | 결과 |
|---|---|---|---|
| 1차 (진행) | 2025-08-28 | 320,000,000 | 유찰 |
| (진행) | 2025-10-02 | 224,000,000 | 변경 |
| (진행) | 2026-03-12 | 224,000,000 | 취하 |
진행 메모
본사건은 취하(으)로 경매절차가 종결되었습니다.
매각물건 현황
| 구분 | 순번 | 소재지 | 용도/구조/면적 | 감정가 | 비고 |
|---|---|---|---|---|---|
| 건물 | 17층중 17층 | 01.04.13 | 84.94㎡(25.69평)[공급33평] / 주거용 | 160,000,000 |
현황 및 위치
* 대상물건은 경기도 파주시 목동동 소재 "해솔중학교" 남서측 인근에 소재하며 주위는 아파트단지, 학교, 공원 등이 소재하는 지역으로 제반 주위환경 보통임. * 대상물건까지 차량진출입이 가능하며 인근에 노선버스정류장이 소재하는 등 제반 교통상황 보통임. * 부정형의 토지로서 아파트 건부지로 이용 중임. * 단지 내 도로를 통하여 외부 공도와 접함.
등기부 현황
건물
| 순위 | 접수일자 | 권리종류 | 권리자 | 채권금액 | 소멸여부 | 비고 |
|---|---|---|---|---|---|---|
| 1(갑3) | 2003-02-27 | 소유권이전(매매) | 최OO | 0 | ||
| 2(을6) | 2020-03-19 | 근저당 | 한OOOOOOO | 185,900,000 | 소멸 | 말소기준등기확정채권양도전:국민은행 |
| 3(갑8) | 2024-09-12 | 강제경매 | 김OO | 86,613,324 | 소멸 | 2024타경80353 |