메뉴
목록으로 최종 업데이트: 2026-04-22 13:21

2025타경63409

서울중앙지방법원 2025차전62469 지급명령 주의사항 ▶ 매각허가에 의하여 소멸되지 아니하는 것 - 매수인에게 대항할 수 있는 을구 1번 임차권등기(임대차보증금 260,000,000원, 전입일자 2022.08.30. 확정일자 2022.08.08.)가 있으므로 배당에서 전액 변제되지 아니하면 잔액을 매수인이 인수함. 하루 보지 않기 X 부동산종합정보+토지이용계획+도시계획+개별공시지가+공동주택가격+인근진행물건동일번지진행물건인근반경진행물건인근매각물건동일번지매각물건공매인근진행물건동산인근진행물건임대차보호법예상배당표입찰가분석표시세

부동산 부동산강제경매 유찰 진행중
서울중앙지방법원 2025차전62469 지급명령 주의사항 ▶ 매각허가에 의하여 소멸되지 아니하는 것 - 매수인에게 대항할 수 있는 을구 1번 임차권등기(임대차보증금 260,000,000원, 전입일자 2022.08.30. 확정일자 2022.08.08.)가 있으므로 배당에서 전액 변제되지 아니하면 잔액을 매수인이 인수함. 하루 보지 않기 X 부동산종합정보+토지이용계획+도시계획+개별공시지가+공동주택가격+인근진행물건동일번지진행물건인근반경진행물건인근매각물건동일번지매각물건공매인근진행물건동산인근진행물건임대차보호법예상배당표입찰가분석표시세 매각기일 2026-04-16 00:00:00 사건번호 2025타경63409 최근 확인 2026-04-20 14:11 다음 확인 2026-04-17 09:00
소재지
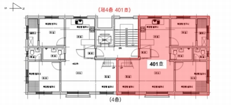
경기도 파주시 번뛰기길 50, 아델리아 2동 4층 401호
(경기도 파주시 야당동 185-71)
물건종류 다세대(빌라)[공급17평형]
면적
토지: 52.01㎡ (15.73평)
건물: 43.80㎡ (13.25평)
현재 위치 경기도 파주시 번뛰기길 50, 아델리아 2동 4층 401호
소유자 / 채무자 이순건 / 이순건
채권자 주택도시보증공사
배당종기일 2025-09-08
감정가
240,000,000
최저가
168,000,000
보증금
16,800,000
입찰 진행 내역
회차/구분 입찰기일 최저매각가격 결과
1차 (진행) 2026-03-12 240,000,000 유찰
2차 (진행) 2026-04-16 168,000,000
3차 (진행) 2026-05-21 117,600,000
4차 (진행) 2026-06-25 82,320,000
임차인 현황
임차인명 점유여부 전입/확정/배당 보증금 / 차임 예상배당액 대항력
민소연 주거용 전부
전입: 2022-08-30
확정: 2022-08-08
배당: 2024-09-12
260,000,000
월 0
0 있음
매각물건 현황
구분 순번 소재지 용도/구조/면적 감정가 비고
건물 4층중 4층 16.11.03 43.8㎡(13.25평)[공급17평] / 주거용 144,000,000
등기부 현황
건물
순위 접수일자 권리종류 권리자 채권금액 소멸여부 비고
1(갑7) 2022-11-14 소유권이전(매매) 이OO 0 거래가액:263,500,000
2(을1) 2024-09-12 주택임차권(전부) 민OO 260,000,000 전입:2022.08.30확정:2022.08.08
3(갑8) 2025-06-19 강제경매 주OOOOOOOOOOOOOOOOO 260,000,000 소멸 말소기준등기2025타경63409
4(갑9) 2025-07-25 압류 파OO 0 소멸
관련 문서 (PDF) 클릭하면 원본 파일이 열립니다