메뉴
목록으로 최종 업데이트: 2026-04-22 13:21

2025타경63395

의정부지방법원 고양지원 2024가단70124 판결정본 주의사항 ▶ 매각허가에 의하여 소멸되지 아니하는 것 - 매수인에게 대항할 수 있는 을구 1번 임차권등기(임대차보증금 210,000,000원, 전입일자 2022.01.26. 확정일자 2022.01.03.)가 있으므로 배당에서 전액 변제되지 아니하면 잔액을 매수인이 인수함. 하루 보지 않기 X 부동산종합정보+토지이용계획+도시계획+개별공시지가+공동주택가격+인근진행물건동일번지진행물건인근반경진행물건인근매각물건동일번지매각물건공매인근진행물건동산인근진행물건임대차보호법예상배당표입찰가분석표시세

부동산 부동산강제경매 유찰 진행중
의정부지방법원 고양지원 2024가단70124 판결정본 주의사항 ▶ 매각허가에 의하여 소멸되지 아니하는 것 - 매수인에게 대항할 수 있는 을구 1번 임차권등기(임대차보증금 210,000,000원, 전입일자 2022.01.26. 확정일자 2022.01.03.)가 있으므로 배당에서 전액 변제되지 아니하면 잔액을 매수인이 인수함. 하루 보지 않기 X 부동산종합정보+토지이용계획+도시계획+개별공시지가+공동주택가격+인근진행물건동일번지진행물건인근반경진행물건인근매각물건동일번지매각물건공매인근진행물건동산인근진행물건임대차보호법예상배당표입찰가분석표시세 매각기일 2026-04-21 00:00:00 사건번호 2025타경63395 최근 확인 2026-04-20 14:11 다음 확인 2026-04-22 09:00
소재지
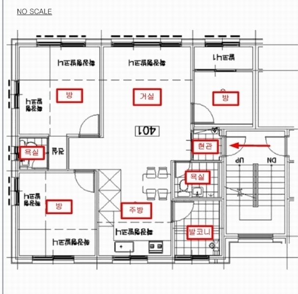
경기도 고양시 일산동구 동국로223번길 73, 한울하임 106동 4층 401호
(경기도 고양시 일산동구 성석동 174-3)
물건종류 다세대(빌라)[공급20평형]
면적
토지: 51.83㎡ (15.68평)
건물: 52.29㎡ (15.82평)
현재 위치 경기도 고양시 일산동구 동국로223번길 73, 한울하임 106동 4층 401호
소유자 / 채무자 김진선,최영철 / 김진선,최영철
채권자 심진백
배당종기일 2025-09-16
감정가
236,000,000
최저가
165,200,000
보증금
16,520,000
입찰 진행 내역
회차/구분 입찰기일 최저매각가격 결과
1차 (진행) 2026-03-17 236,000,000 유찰
2차 (진행) 2026-04-21 165,200,000
3차 (진행) 2026-05-26 115,640,000
4차 (진행) 2026-06-30 80,948,000
임차인 현황
임차인명 점유여부 전입/확정/배당 보증금 / 차임 예상배당액 대항력
심진백 주거용 건물전부
전입: 2022-01-26
확정: 2022-01-03
배당: 2024-05-20
210,000,000
월 0
0 있음
매각물건 현황
구분 순번 소재지 용도/구조/면적 감정가 비고
건물 4층중 4층 18.10.18 52.29㎡(15.82평)[공급20평] / 주거용 141,600,000 * 개별 난방설비
등기부 현황
건물
순위 접수일자 권리종류 권리자 채권금액 소멸여부 비고
1(갑4) 2022-02-17 소유권이전(매매) 김OOOOOO 0 각 1/2
2(을1) 2024-05-20 주택임차권(건물전부) 심OO 210,000,000 전입:2022.01.26확정:2022.01.03
3(갑5) 2025-06-25 강제경매 심OO 210,000,000 소멸 말소기준등기2025타경63395
4(갑6) 2025-07-10 김진선지분압류 국OOOOOOO 0 소멸
5(갑7) 2025-07-10 최영철지분압류 국OOOOOOO 0 소멸
6(갑8) 2025-11-21 최영철지분압류 국OOOOOOOO 0 소멸
7(갑9) 2025-12-03 김진선지분압류 국OOOOOOOO 0 소멸
관련 문서 (PDF) 클릭하면 원본 파일이 열립니다