메뉴
목록으로 최종 업데이트: 2026-04-22 13:21

2025타경64840

서울중앙지방법원 2021가합578582 판결정본 주의사항 ▶ 매각허가에 의하여 소멸되지 아니하는 것 - 매수인에게 대항할 수 있는 을구 5번 임차권등기(임대차보증금 175,000,000원, 전입일자 2013.10.24., 확정일자 2019.10.24.)가 있으므로 배당에서 전액 변제되지 아니하면 전액을 매수인이 인수함 전문가멘트 ☞ 미납관리비의 경우 사용자 부담이 원칙이나 사용자가 납부하지 않은 경우 공용부분 관리비는 대법원판례(2001다8677 전원합의체)에 따라서 매수인에게 승계됩니다. 관리비채권의 법적 소멸시효는 3년이며 미납관리비의 연체료나 관리사무소에서 임의적으로 계산한 지연손해금등이 매수자에게 승계되지 않습니다. 위 사항을 참고하여 관리사무소와 협의하여 처리하시기 바랍니다.☞ 관리비 채권의 법정 소멸시효는 3년이나 미납관리비를 이유로 소멸시효 중단조치(민법 168조재판상의 청구,압류,가압류,가처분 등)를 한 경우 3년이 경과한 관리비이더라도 소멸되지 않습니다. 하루 보지 않기 X 부동산종합정보+토지이용계획+도시계획+개별공시지가+공동주택가격+인근진행물건동일번지진행물건인근반경진행물건인근매각물건동일번지매각물건공매인근진행물건동산인근진행물건임대차보호법예상배당표입찰가분석표시세

부동산 부동산강제경매 유찰 진행중
서울중앙지방법원 2021가합578582 판결정본 주의사항 ▶ 매각허가에 의하여 소멸되지 아니하는 것 - 매수인에게 대항할 수 있는 을구 5번 임차권등기(임대차보증금 175,000,000원, 전입일자 2013.10.24., 확정일자 2019.10.24.)가 있으므로 배당에서 전액 변제되지 아니하면 전액을 매수인이 인수함 전문가멘트 ☞ 미납관리비의 경우 사용자 부담이 원칙이나 사용자가 납부하지 않은 경우 공용부분 관리비는 대법원판례(2001다8677 전원합의체)에 따라서 매수인에게 승계됩니다. 관리비채권의 법적 소멸시효는 3년이며 미납관리비의 연체료나 관리사무소에서 임의적으로 계산한 지연손해금등이 매수자에게 승계되지 않습니다. 위 사항을 참고하여 관리사무소와 협의하여 처리하시기 바랍니다.☞ 관리비 채권의 법정 소멸시효는 3년이나 미납관리비를 이유로 소멸시효 중단조치(민법 168조재판상의 청구,압류,가압류,가처분 등)를 한 경우 3년이 경과한 관리비이더라도 소멸되지 않습니다. 하루 보지 않기 X 부동산종합정보+토지이용계획+도시계획+개별공시지가+공동주택가격+인근진행물건동일번지진행물건인근반경진행물건인근매각물건동일번지매각물건공매인근진행물건동산인근진행물건임대차보호법예상배당표입찰가분석표시세 매각기일 2026-04-21 00:00:00 사건번호 2025타경64840 최근 확인 2026-04-20 14:11 다음 확인 2026-04-22 09:00
소재지
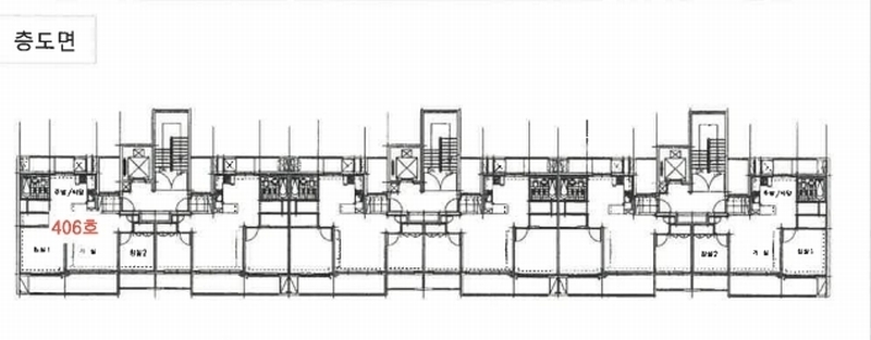
경기도 파주시 쇠재로 133, 쇠재마을뜨란채 515동 4층 406호
(경기도 파주시 금촌동 1003)
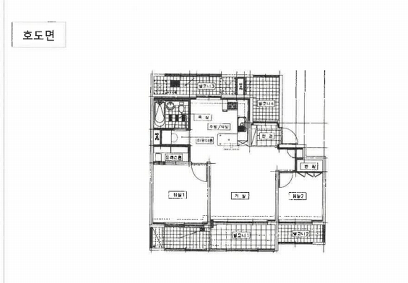
물건종류 아파트[공급24평형]
면적
토지: 43.14㎡ (13.05평)
건물: 59.72㎡ (18.07평)
현재 위치 경기도 파주시 쇠재로 133, 쇠재마을뜨란채 515동 4층 406호
소유자 / 채무자 유한회사 진디앤씨 / 유한회사 진디앤씨
채권자 주택도시보증공사
배당종기일 2026-02-19
감정가
215,000,000
최저가
150,500,000
보증금
15,050,000
입찰 진행 내역
회차/구분 입찰기일 최저매각가격 결과
1차 (진행) 2026-03-17 215,000,000 유찰
2차 (진행) 2026-04-21 150,500,000
3차 (진행) 2026-05-26 105,350,000
4차 (진행) 2026-06-30 73,745,000
임차인 현황
임차인명 점유여부 전입/확정/배당 보증금 / 차임 예상배당액 대항력
주택도시보증공사(최성희) 주거용 전부
전입: 2013-10-24
확정: 2019-10-24
배당: 2026-02-13
175,000,000
월 0
0 있음
최성희 주거용 건물의 전부
전입: 2013-10-24
확정: 2019-10-24
배당: 2021-11-30
175,000,000
월 0
0 있음
매각물건 현황
구분 순번 소재지 용도/구조/면적 감정가 비고
건물 18층중 4층 04.11.11 59.72㎡(18.07평)[공급24평] / 주거용 107,500,000
등기부 현황
건물
순위 접수일자 권리종류 권리자 채권금액 소멸여부 비고
1(갑4) 2020-01-13 소유권이전(매매) 유OOOOOOO 0 거래가액:180,000,000
2(을4) 2020-01-13 근저당 유OOOOOO 170,000,000 소멸 말소기준등기
3(갑5) 2020-08-28 압류 국OOOOOOOO 0 소멸
4(을5) 2021-11-30 주택임차권(건물의 전부) 최OO 175,000,000 전입:2013.10.24확정:2019.10.24
5(갑7) 2022-09-06 압류 국OOOOOOO 0 소멸
6(갑8) 2022-11-21 압류 파OO 0 소멸
7(갑9) 2023-05-02 압류 창OOOOOOOOO 0 소멸
8(갑10) 2024-08-12 압류 전OOOOOOOOO 0 소멸
9(갑11) 2025-11-24 강제경매 주OOOOOOOOOOOOOOOOO 175,000,000 소멸 2025타경64840
관련 문서 (PDF) 클릭하면 원본 파일이 열립니다