목록으로
최종 업데이트: 2026-04-24 01:39
2025타경63373
부동산
부동산강제경매
매각
진행중
| 소재지 |
-
(경기도 파주시 와동동 1654-1)
|
|---|---|
| 물건종류 | 근린주택 |
| 면적 |
토지: 0.00㎡ (0평)
건물: 601.89㎡ (182.07평)
|
| 현재 위치 | 경기도 파주시 와동동 1654-1 |
| 소유자 / 채무자 | 곽노학 / 곽노학 |
| 채권자 | 윤재명 외 1 |
| 배당종기일 | 2025-09-08 |
감정가
1,826,870,500
최저가
895,166,000
보증금
89,516,600
진행 상태 / 매각 결과
매각
completed = false
매각허가결정
| 상태 코드 | 2 | 상태 텍스트 | 매각허가결정 |
|---|---|---|---|
| 매각가 | 1,071,000,000원 | 매각가율 | 0% |
| 입찰 수 | 2 | 매수인 | 대구시 최현미 외1 |
| 차순위 입찰가 | 1,026,888,000원 | 매각허가 결정 | 매각허가결정 |
| 매각허가 결정일 | 2026-03-25 | 대금 지급기한 | - |
| 대금 지급상태 | - | 배당기일 | - |
| 배당 종결일 | - | 다음 확인 예정 | 2026-04-25 09:00 |
입찰 진행 내역
| 회차/구분 | 입찰기일 | 최저매각가격 | 결과 |
|---|---|---|---|
| 1차 (진행) | 2025-12-24 | 1,826,870,500 | 유찰 |
| 2차 (진행) | 2026-02-04 | 1,278,809,000 | 유찰 |
| 3차 (진행) | 2026-03-18 | 895,166,000 |
진행 메모
매각 : 1,071,000,000 원 (58.62%)
(입찰 2 명,매수인:대구시 최현미 외1 / 차순위금액 1,026,888,000원)
매각결정기일 : 2026.03.25 - 매각허가결정
대금지급기한 : 2026.05.06
임차인 현황
| 임차인명 | 점유여부 | 전입/확정/배당 | 보증금 / 차임 | 예상배당액 | 대항력 |
|---|---|---|---|---|---|
| 김재훈 | 주거용 302호 |
전입: 2024-01-09
확정: 2023-12-21 배당: 2025-08-13 |
120,000,000
월 0
|
0 | 없음 |
| 박여진 | 주거용 3층 301호 |
전입: 2025-01-06
확정: 2022-12-26 배당: 2025-07-09 |
140,000,000
월 0
|
0 | 없음 |
| 박정영 | 주거용 2층 201호 |
전입: 2021-09-09
확정: 2025-04-22 배당: 2025-07-07 |
140,000,000
월 0
|
0 | 없음 |
| 윤재명 | 주거용 4층 401호 |
전입: 2018-07-12
확정: 2018-06-05 배당: 2025-07-03 |
200,000,000
월 0
|
0 | 없음 |
| 이보경 | 점포 1층 101호 |
전입: -
확정: 2023-06-08 배당: 2025-08-04 |
20,000,000
월 1,100,000
|
0 | 없음 |
| 이은정 | 점포 102호 |
전입: -
확정: 2019-03-08 배당: 2025-08-04 |
20,000,000
월 1,200,000
|
0 | 없음 |
| 전한별 | 주거용 2층 202호 |
전입: 2020-08-24
확정: 2020-08-05 배당: 2025-07-21 |
136,500,000
월 0
|
0 | 없음 |
매각물건 현황
| 구분 | 순번 | 소재지 | 용도/구조/면적 | 감정가 | 비고 |
|---|---|---|---|---|---|
| 토지 | 토지 | 와동동 1654-1 | 제1종지구단위계획구역,도시지역,제1종일반주거지역,토지거래계약에관...제1종지구단위계획구역,도시지역,제1종일반주거지역,토지거래계약에관한허가구역,가축사육제한구역 / 대 291.8㎡ (88.27평) | 3,310,000 | 965,858,000원 |
| 건물 | 1 | 가람로21번길 52-22 [와동동 1654-1]철근콘크리트구조 경사지붕 | 1층 / 제2종근린생활시설 | 121 | 1,340,000원 |
| 2 | 2층 | 다가구주택(2가구) | 108.95㎡(32.96평) / 1,510,000원 | 164,514,500 | * 사용승인:2016.08.04 |
| 3 | 3층 | 다가구주택(2가구) | 108.95㎡(32.96평) / 1,510,000원 | 164,514,500 | * 사용승인:2016.08.04 |
| 4 | 4층 | 다가구주택(1가구) | 98.39㎡(29.76평) / 1,510,000원 | 148,568,900 | * 사용승인:2016.08.04 |
| 제시외건물 | 1 | 가람로21번길 52-22 [와동동 1654-1]철근콘크리트구조 경사지붕 | 2층 / 확장형발코니(2층 주택일부) | 29 | 1,510,000원 |
| 2 | 3층 | 확장형발코니(3층 주택일부) | 29.8㎡(9.01평) / 1,510,000원 | 44,998,000 | 매각포함 |
| 3 | 4층 | 확장형발코니(4층 주택일부) | 24.77㎡(7.49평) / 1,510,000원 | 37,402,700 | 매각포함 |
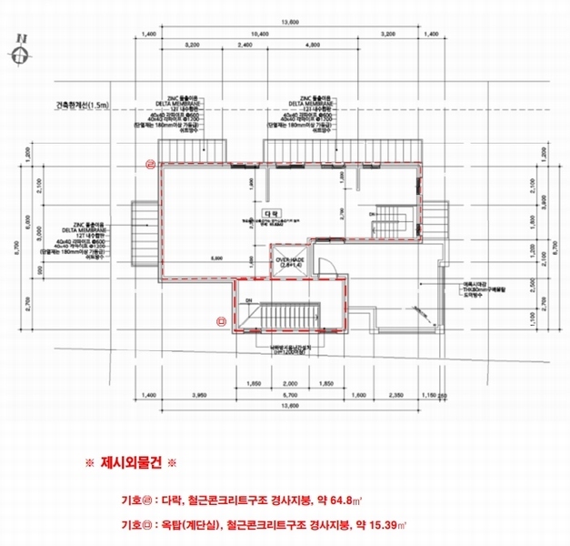
| 4 | 다락 | 64.8㎡(19.6평) / 1,170,000원 | 75,816,000 | 매각포함 | |
| 5 | 옥탑 | 옥탑(계단실) | 15.39㎡(4.66평) / 1,170,000원 | 18,006,300 | 매각포함 |
현황 및 위치
* 대상물건은 경기도 파주시 와동동 소재 ""지산고등학교"" 동측 인근에 위치하며, 인근 일대는 주택, 근린생활시설, 아파트단지, 학교 등이 혼재하는 지대로서 제반 주위환경은 무난한 편임. * 본건까지 제반차량의 진출입이 가능하며, 인근에 버스정류장 등이 소재하는 바, 대중교통 상황은 보통임. * 인접지 및 인접도로와 등고 평탄한 가장형의 주상용 건부지임. * 북측으로 약 10미터 내외의 포장도로와 접함.
참고사항
* 일괄매각. 제시외 건물 포함 * 1층에는 "WONS" 및 "여밈갤러리" 상호의 영업점이있으며, 주거 시설은 2층부터 4층까지임
등기부 현황
건물
| 순위 | 접수일자 | 권리종류 | 권리자 | 채권금액 | 소멸여부 | 비고 |
|---|---|---|---|---|---|---|
| 1(갑1) | 2016-08-08 | 소유권보존 | 곽OO | 0 | ||
| 2(을1) | 2016-08-08 | 근저당 | 국OOOOOOOOOO | 348,000,000 | 소멸 | 말소기준등기 |
| 3(을2) | 2023-05-31 | 근저당 | 국OOO | 240,000,000 | 소멸 | |
| 4(을3) | 2024-07-25 | 주택임차권(4층 401호) | 윤OO | 210,000,000 | 소멸 | 전입:2018.07.12확정:2018.06.051,2차보:금 200,000,000원, 2차확:2020년 6월 30일, 3차확:2022년 6월 13일 |
| 5(을4) | 2024-08-29 | 주택임차권(2층 202호) | 전OO | 136,500,000 | 소멸 | 전입:2020.08.24확정:2020.08.051차보:금130,000,000원, 2차확:2022년 7월 7일 |
| 6(을5) | 2025-02-20 | 주택임차권(3층 301호) | 박OO | 140,000,000 | 소멸 | 전입:2025.01.06확정:2022.12.26 |
| 7(을6) | 2025-05-08 | 주택임차권(2층 201호) | 박OO | 140,000,000 | 소멸 | 전입:2021.09.09확정:2025.04.22 |
| 8(을7) | 2025-05-13 | 상가건물임차권(1층 101호) | 이OO | 20,000,000 | 소멸 | 사업자등록일:2023.06.08확정:2023.06.08차:월 금 1,100,000 원 |
| 9(갑2) | 2025-06-17 | 강제경매 | 윤OO | 200,000,000 | 소멸 | 2025타경63373 |
| 10(갑3) | 2025-07-21 | 가압류 | 국OOO | 101,932,924 | 소멸 | 2025카단103007 |
| 11(갑4) | 2025-08-14 | 가압류 | 경OOOOOOO | 42,300,000 | 소멸 | 2025카단508511 |
| 12(갑5) | 2025-09-04 | 임의경매 | 국OOOOOOOOOOOOO | 588,000,000 | 소멸 | 2025타경5113 |
관련 문서 (PDF)
클릭하면 원본 파일이 열립니다