메뉴
목록으로 최종 업데이트: 2026-04-24 17:46

2025타경60660

서울중앙지방법원 2024차전216900 지급명령 주의사항 ▶신청채권자인 주택도시보증공사(양도전:주택임차권자 이주란)가 ‘임차보증금에 대하여 우선변제권만 주장하고 대항력은 포기하며, 전액을 변제받지 못하더라도 임차권등기를 말소함에 동의한다.’는 내용의 2026.03.27.자 인수조건변경확약서를 제출함 하루 보지 않기 X 부동산종합정보+토지이용계획+도시계획+개별공시지가+공동주택가격+인근진행물건동일번지진행물건인근반경진행물건인근매각물건동일번지매각물건공매인근진행물건동산인근진행물건임대차보호법예상배당표입찰가분석표시세

부동산 부동산강제경매 유찰 진행중
서울중앙지방법원 2024차전216900 지급명령 주의사항 ▶신청채권자인 주택도시보증공사(양도전:주택임차권자 이주란)가 ‘임차보증금에 대하여 우선변제권만 주장하고 대항력은 포기하며, 전액을 변제받지 못하더라도 임차권등기를 말소함에 동의한다.’는 내용의 2026.03.27.자 인수조건변경확약서를 제출함 하루 보지 않기 X 부동산종합정보+토지이용계획+도시계획+개별공시지가+공동주택가격+인근진행물건동일번지진행물건인근반경진행물건인근매각물건동일번지매각물건공매인근진행물건동산인근진행물건임대차보호법예상배당표입찰가분석표시세 매각기일 2026-04-28 00:00:00 사건번호 2025타경60660 최근 확인 2026-04-24 17:46 다음 확인 2026-04-29 09:00
소재지
경기도 고양시 일산서구 원일로21번길 22, 일신건영아파트 111동 1층 101호
(경기도 고양시 일산서구 일산동 1655)
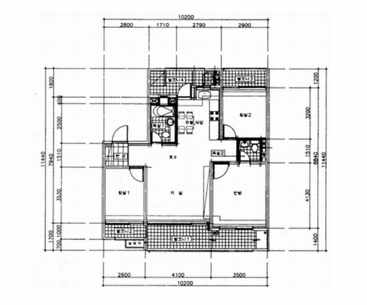
물건종류 아파트[공급27평형]
면적
토지: 33.59㎡ (10.16평)
건물: 70.98㎡ (21.47평)
현재 위치 경기도 고양시 일산서구 원일로21번길 22, 일신건영아파트 111동 1층 101호
소유자 / 채무자 조미아 / 조미아
채권자 주택도시보증공사
배당종기일 2025-04-10
감정가
332,000,000
최저가
332,000,000
보증금
33,200,000
입찰 진행 내역
회차/구분 입찰기일 최저매각가격 결과
1차 (진행) 2025-11-25 332,000,000 유찰
2차 (진행) 2025-12-30 232,400,000 유찰
3차 (진행) 2026-02-10 162,680,000 유찰
4차 (진행) 2026-03-24 113,876,000 유찰
5차 (진행) 2026-04-28 332,000,000
6차 (진행) 2026-06-02 232,400,000
7차 (진행) 2026-07-07 162,680,000
8차 (진행) 2026-08-11 113,880,000
임차인 현황
임차인명 점유여부 전입/확정/배당 보증금 / 차임 예상배당액 대항력
이주란 주거용 건물전부
전입: 2021-12-21
확정: 2021-11-22
배당: 2023-12-28
320,000,000
월 0
0 있음
주택도시보증공사 주거용 전부
전입: 2021-12-21
확정: 2021-11-22
배당: 2025-03-31
320,000,000
월 0
0 있음
매각물건 현황
구분 순번 소재지 용도/구조/면적 감정가 비고
건물 18층중 1층 03.12.22 70.983㎡(21.47평)[공급27평] / 주거용 166,000,000
현황 및 위치
* 대상물건은 경기도 고양시 일산서구 일산동 소재 「일산고등학교」 서측 인근에 위치하며, 인근은 아파트, 근린생활시설 등이 소재하는 지역임 * 대상물건까지 차량의 진출입이 가능하며, 인근에 버스정류장 및 근거리에 일산역(경의중앙,서해)이 소재하는 등 교통상황은 보통임 * 일산동 1655번지, 일산동 2139번지는 인접 도로 및 토지 대비 등고 평탄한 일단의 부정형 토지로서 공동주택(아파트) 건부지 임 * 단지내 도로가 외곽공도와 연계됨
참고사항
* 외필지 : 일산동 2139
등기부 현황
건물
순위 접수일자 권리종류 권리자 채권금액 소멸여부 비고
1(갑7) 2017-03-03 소유권이전(매매) 조OO 0 거래가액:238,000,000
2(을12) 2023-12-28 주택임차권(건물전부) 이OO 320,000,000 소멸 전입:2021.12.21확정:2021.11.22
3(갑8) 2025-01-13 강제경매 주OOOOOOOOOOOOOOOOO 320,000,000 소멸 말소기준등기2025타경60660
관련 문서 (PDF) 클릭하면 원본 파일이 열립니다