목록으로
최종 업데이트: 2026-04-24 18:11
2025타경64250
부동산
부동산강제경매
유찰
진행중
| 소재지 |
-
(경기도 고양시 덕양구 원흥동 631-1)
|
|---|---|
| 물건종류 | 근린상가 |
| 면적 |
토지: 19.94㎡ (6.03평)
건물: 115.89㎡ (35.06평)
|
| 현재 위치 | 경기도 고양시 덕양구 원흥동 631-1 |
| 소유자 / 채무자 | 파산자 (주)제이엘프의 파산관재인 강종훈 / 파산자 (주)제이엘프의 파산관재인 강종훈 외1명 |
| 채권자 | 한국자산관리공사 |
| 배당종기일 | 2025-12-15 |
감정가
849,000,000
최저가
416,010,000
보증금
41,601,000
입찰 진행 내역
| 회차/구분 | 입찰기일 | 최저매각가격 | 결과 |
|---|---|---|---|
| 1차 (진행) | 2026-02-10 | 849,000,000 | 유찰 |
| 2차 (진행) | 2026-03-24 | 594,300,000 | 유찰 |
| 3차 (진행) | 2026-04-28 | 416,010,000 | |
| 4차 (진행) | 2026-06-02 | 291,210,000 |
임차인 현황
| 임차인명 | 점유여부 | 전입/확정/배당 | 보증금 / 차임 | 예상배당액 | 대항력 |
|---|---|---|---|---|---|
| 이기원 | 주거용 전부 |
전입: 2023-04-24
확정: 2023-04-12 배당: 2025-12-04 |
350,000,000
월 0
|
0 | 있음 |
| 주택도시보증공사 | 주거용 전부 |
전입: 2023-04-24
확정: 2023-04-12 배당: 2025-11-26 |
350,000,000
월 0
|
0 | 있음 |
매각물건 현황
| 구분 | 순번 | 소재지 | 용도/구조/면적 | 감정가 | 비고 |
|---|---|---|---|---|---|
| 건물 | 13층중 6층 | 18.08.31 | 115.89㎡(35.06평) / 근린생활시설(공실) | 382,050,000 |
현황 및 위치
==== 2025타경64320(병합) ==== * 본건은 경기도 고양시 덕양구 원흥동 소재 "원흥역(3호선)" 남동측 인근에 위치하고 있으며, 인근 일대는 역주변으로 각종 근린생활시설 및 오피스텔이 밀집되어 있고 후면으로는 아파트단지 및 주거지대가 소재하는 지역으로서, 제반 상업성 및 배후지 상태는 무난한 편입니다. * 본건까지 차량출입이 용이하고 인근에 버스정류장 및 원흥역(지하철3호선)이 소재하며, 전반적인 교통여건은 무난한 편입니다. * 가장형의 토지로서 인접지 및 인접 도로와 등고·평탄합니다. * 북동측 및 남동측으로 폭 약 15미터 정도의 포장도로에 접하고 있습니다.
참고사항
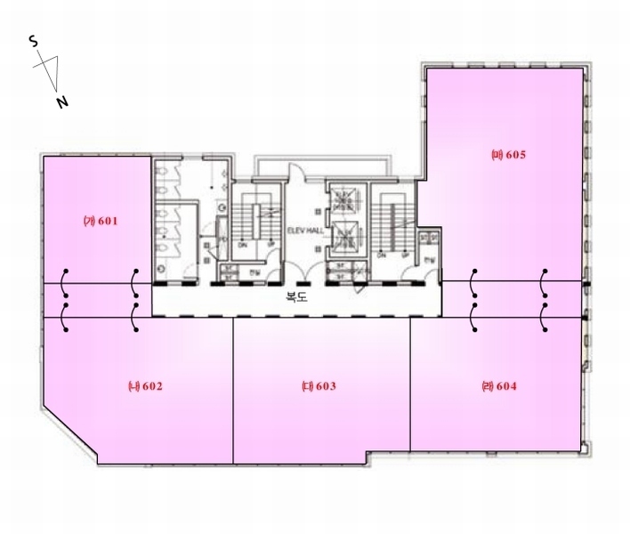
* 601호부터 605호(5개호) 전체 벽체 구분없는 근린시설임.
등기부 현황
건물
| 순위 | 접수일자 | 권리종류 | 권리자 | 채권금액 | 소멸여부 | 비고 |
|---|---|---|---|---|---|---|
| 1(갑4) | 2018-10-05 | 소유권이전(매매) | (OOOOOO | 0 | 거래가액:339,200,000, 상호변경전:주식회사제이제이컴퍼니 | |
| 2(을6) | 2023-07-05 | 근저당 | 한OOOOOOO | 1,290,000,000 | 소멸 | 말소기준등기확정채권양도전:중소기업은행 |
| 3(을8) | 2023-09-12 | 근저당 | 한OOOOOOO | 600,000,000 | 소멸 | |
| 4(을9) | 2023-09-26 | 근저당 | 한OOOOOOO | 500,000,000 | 소멸 | |
| 5(갑8) | 2024-11-15 | 압류 | 국OOOOOOOO | 0 | 소멸 | |
| 6(갑10) | 2025-03-04 | 가압류 | 신OOOOO | 1,574,697,413 | 소멸 | 2025카단11752 |
| 7(갑11) | 2025-09-24 | 임의경매 | 한OOOOOOO | 3,716,696,039 | 소멸 | 2025타경64320 |
관련 문서 (PDF)
클릭하면 원본 파일이 열립니다