목록으로
최종 업데이트: 2026-04-22 13:21
2025타경1678
춘천지방법원 본원 1계(033-259-9706)
부동산
부동산임의경매
유찰
진행중
| 소재지 |
-
(강원도 홍천군 홍천읍 와동리 448)
|
|---|---|
| 물건종류 | 주택 |
| 면적 |
토지: 0.00㎡ (0평)
건물: 337.55㎡ (102.11평)
|
| 현재 위치 | 강원도 홍천군 홍천읍 와동리 448 |
| 소유자 / 채무자 | 파산자 전숙희의 파산관재인 변호사 김소진 / 파산자 전숙희의 파산관재인 변호사 김소진 |
| 채권자 | 홍천축협 |
| 배당종기일 | 2025-10-27 |
감정가
300,080,500
최저가
102,927,000
보증금
10,292,700
입찰 진행 내역
| 회차/구분 | 입찰기일 | 최저매각가격 | 결과 |
|---|---|---|---|
| 1차 (진행) | 2026-01-12 | 300,080,500 | 유찰 |
| 2차 (진행) | 2026-02-23 | 210,056,000 | 유찰 |
| 3차 (진행) | 2026-03-23 | 147,039,000 | 유찰 |
| 4차 (진행) | 2026-04-27 | 102,927,000 |
매각물건 현황
| 구분 | 순번 | 소재지 | 용도/구조/면적 | 감정가 | 비고 |
|---|---|---|---|---|---|
| 토지 | 토지 | 1 | 와동리 448 / 공장설립제한지역,성장관리계획구역,가축사육제한구역,계획관리지역 | 474 | 175,000원(65,900원) |
| 토지 | 2 | 와동리 449-2 | 공장설립제한지역,성장관리계획구역,가축사육제한구역,계획관리지역 / 대 202㎡ (61.11평) | 175,000 | 35,350,000원 |
| 토지 | 3 | 와동리 449-6 | 공장설립제한지역,성장관리계획구역,가축사육제한구역,계획관리지역 / 대 43㎡ (13.01평) | 169,000 | 7,267,000원 |
| 토지 | 4 | 와동리 449-10 | 공장설립제한지역,성장관리계획구역,가축사육제한구역,계획관리지역 / 전 155㎡ (46.89평) | 79,000 | 12,245,000원 |
| 건물 | 1 | 와동로 114-8 [와동리 449-2외 1필지]일반철골구조 및 경량철골구조 판넬지붕 | 1층 / 창고 | 130 | 455,000원 |
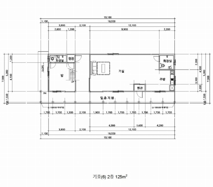
| 2 | 2층 | 주택 | 125㎡(37.81평) / 700,000원 | 87,500,000 | * 사용승인:2013.03.19* 온수보일러, 화목난방 , 전기판넬난방 |
| 제시외건물및기타 | 1 | 와동리 449-2목조 등 1.목조, 2.목조, 3.철파이프조, 4.목조 | / 데크 | 3 | |
| 2 | 야외휴게소 | 12.25㎡(3.71평) / | 1,000,000 | 매각포함 | |
| 3 | 창고 | 36㎡(10.89평) / | 1,000,000 | 매각포함 | |
| 4 | 정자 | 23.38㎡(7.07평) / | 8,000,000 | 매각포함 | |
| 5 | 와동로 114-8 [와동리 449-2외 1필지]경량철골구조 | 다락 / 7.22㎡(2.18평) | 0 | 5,000,000원 |
현황 및 위치
* 본건은 강원특별자치도 홍천군 홍천읍 와동리 소재 "" 와동교차로 "" 북동측인근에 위치하며, 주위는 소규모공장, 단독, 농경지등이 혼재하는 농촌지대를 형성하는 등 제반환경 무난시됨. * 본건까지 제반차량 진출입 가능하며, 버스정류장과의 거리, 간선도로와의 거리등에 비추어 제반 교통사정은 보통시 됨. * 1, 2 : 2필일단의 유사 사다리, 평지, 건부지로 이용중임. 3 : 가장형, 평지, 1,2의 부속토지로 이용중임. 4 : 장방형, 평지, 1,2의 부속토지<정원등>로 이용중임. * 1, 2 : 2필일단토지로서 남측으로 아스팔트 포장 로폭 약3미터에 접함. 3 : 동측으로 아스팔트 포장 로폭 약3미터에 접함. 4 : 남측으로 비포장 로폭 약3미터에 접함.
참고사항
* 일괄매각. 제시외 건물 및 토1-4 소재 수목 포함
전문가 코멘트
☞ [농지취득자격증명] 농지를 취득하려는 자는 신청서와 농업경영계획서(주말·체험영농계획서)를 작성하여 농지 소재지를 관할하는 시·구·읍·면장에게서 농지취득자격증명원을 발급받아 매각결정기일 전까지 법원에 제출하여야 하고 미제출 시 보증금이 몰수될 수 있으니 입찰 전 발급 가능 여부를 확인하시기 바랍니다. (정부24시를 통하여 발급 신청도 가능합니다.) ※ 2021.08.17. 개정된 농지법에 따라 농업진흥지역 내 농지의 주말ㆍ체험영농목적 취득을 제한(제6조제2항제3호)하고 있으니 이점 참고하시고 입찰에 참여하시기 바랍니다. ※ 2022.05.18.부터 농지취득 자격심사가 대폭 강화됨으로 증빙서류 추가 및 발급 민원처리 기간이 연장되었으므로 주의하시기 바라며, 농지위원회 심의를 거쳐 농지취득자격증명 발급 여부를 판단하는 경우에는 14일 이내에 발급하도록 되어 있으므로 입찰 전에 미리 해당 행정관서에 농지취득자격증명의 신청도 가능함을 참고하시기 바랍니다.
등기부 현황
건물
| 순위 | 접수일자 | 권리종류 | 권리자 | 채권금액 | 소멸여부 | 비고 |
|---|---|---|---|---|---|---|
| 1(갑1) | 2013-04-15 | 소유권보존 | 전OO | 0 | ||
| 2(을1) | 2013-09-26 | 근저당 | 홍OOO | 70,000,000 | 소멸 | 말소기준등기 |
| 3(을2) | 2013-09-26 | 근저당 | 홍OOO | 42,000,000 | 소멸 | |
| 4(을3) | 2020-02-21 | 근저당 | 홍OOO | 20,000,000 | 소멸 | |
| 5(을4) | 2022-10-26 | 근저당 | 서OOOOOOO | 46,000,000 | 소멸 | |
| 6(갑2) | 2025-07-24 | 임의경매 | 홍OOO | 30,814,444 | 소멸 | 2025타경1678 |
관련 문서 (PDF)
클릭하면 원본 파일이 열립니다