목록으로
최종 업데이트: 2026-04-24 21:28
2025타경63061
서울중앙지방법원 2025차전49305 지급명령 주의사항 ▶신청채권자인 주택도시보증공사(양도전:주택임차권자 안성운)로부터 2026.1.19.자에 ‘임차보증금에 대하여 우선변제권만 주장하 고 대항력은 포기하며, 전액을 변제받지 못하더라도 임차권등기를 말소함에 동의한다.’는 내용의 확약서가 제출됨. 하루 보지 않기 X 부동산종합정보+토지이용계획+도시계획+개별공시지가+공동주택가격+인근진행물건동일번지진행물건인근반경진행물건인근매각물건동일번지매각물건공매인근진행물건동산인근진행물건임대차보호법예상배당표입찰가분석표시세
부동산
부동산강제경매
유찰
진행중
| 소재지 |
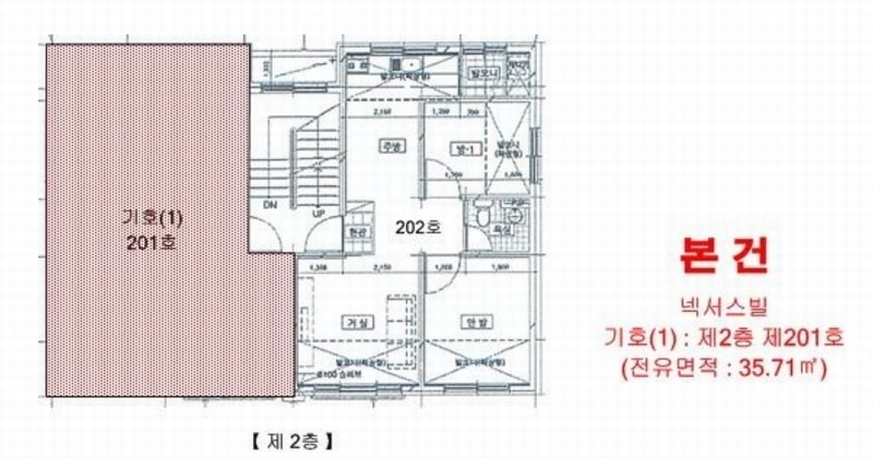
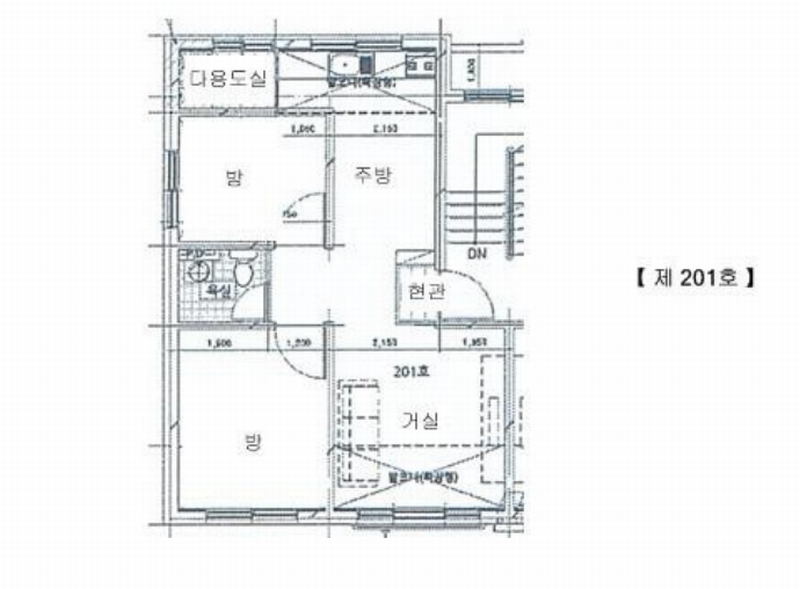
경기도 파주시 번뛰기길 38, 넥서스빌 2층 201호
(경기도 파주시 야당동 185-52)
|
|---|---|
| 물건종류 | 다세대(빌라)[공급12평형] |
| 면적 |
토지: 45.60㎡ (13.79평)
건물: 35.71㎡ (10.8평)
|
| 현재 위치 | 경기도 파주시 번뛰기길 38, 넥서스빌 2층 201호 |
| 소유자 / 채무자 | 박연숙 / 박연숙 |
| 채권자 | 주택도시보증공사 |
| 배당종기일 | 2025-07-28 |
감정가
135,000,000
최저가
66,150,000
보증금
6,615,000
입찰 진행 내역
| 회차/구분 | 입찰기일 | 최저매각가격 | 결과 |
|---|---|---|---|
| 1차 (진행) | 2025-12-31 | 135,000,000 | 유찰 |
| (진행) | 2026-02-11 | 94,500,000 | 변경 |
| 2차 (진행) | 2026-02-11 | 135,000,000 | 유찰 |
| 3차 (진행) | 2026-03-25 | 94,500,000 | 유찰 |
| 4차 (진행) | 2026-04-29 | 66,150,000 | |
| 5차 (진행) | 2026-06-04 | 46,305,000 |
임차인 현황
| 임차인명 | 점유여부 | 전입/확정/배당 | 보증금 / 차임 | 예상배당액 | 대항력 |
|---|---|---|---|---|---|
| 안성운 | 주거용 전부 |
전입: 2020-01-23
확정: 2019-12-20 배당: 2024-02-13 |
135,000,000
월 0
|
0 | 있음 |
| 주택도시보증공사 | 주거용 전부 |
전입: 2020-01-23
확정: 2019-12-20 배당: 2025-07-24 |
135,000,000
월 0
|
0 | 있음 |
매각물건 현황
| 구분 | 순번 | 소재지 | 용도/구조/면적 | 감정가 | 비고 |
|---|---|---|---|---|---|
| 건물 | 4층중 2층 | 13.12.24 | 35.71㎡(10.8평)[공급12평] / 주거용 | 81,000,000 |
현황 및 위치
* 본건은 파주시 야당동 소재 ""야당역(경의선)"" 남동측 인근에 위치하며, 주위는 공동주택 및 단독주택, 농경지 등이 소재하고, 주위환경은 보통시됩니다. * 본건까지 차량접근 자유롭고 인근에 야당역(경의선) 및 버스정류장이 소재하여 교통상황은 보통시됩니다. * 인접도로와 대체로 등고 평탄하게 조성한 부정형의 토지로서, 다세대주택의 건부지로 이용중입니다. * 북측 및 동측으로 약 4m 내외의 도로와 접합니다.
등기부 현황
건물
| 순위 | 접수일자 | 권리종류 | 권리자 | 채권금액 | 소멸여부 | 비고 |
|---|---|---|---|---|---|---|
| 1(갑9) | 2020-01-23 | 소유권이전(매매) | 박OO | 0 | 거래가액:135,000,000 | |
| 2(갑10) | 2021-03-15 | 압류 | 국OOOOOOOOO | 0 | 소멸 | 말소기준등기 |
| 3(갑11) | 2021-12-08 | 가압류 | 주OOOOOOO | 5,224,000,000 | 소멸 | 2021카단63697 |
| 4(갑12) | 2022-06-27 | 압류 | 국OOOOOOOO | 0 | 소멸 | |
| 5(갑13) | 2023-12-13 | 압류 | 국OOOOOOOOO | 0 | 소멸 | |
| 6(을7) | 2024-02-13 | 주택임차권(전부) | 안OO | 135,000,000 | 소멸 | 전입:2020.01.23확정:2019.12.20 |
| 7(갑14) | 2025-05-07 | 강제경매 | 주OOOOOOOOOOOOOOOOO | 135,000,000 | 소멸 | 2025타경63061 |
관련 문서 (PDF)
클릭하면 원본 파일이 열립니다