목록으로
최종 업데이트: 2026-04-25 10:11
2024타경64467
서울중앙지방법원 2023차전377756 지급명령 [관련사건] [전자]손해배상(기)-서울남부지방법원 2023머52753 조정조서 주의사항 ▶ 매각허가에 의하여 소멸되지 아니하는 것 - 매수인에게 대항할 수 있는 임차인이 있음(박성민, 김예진, 김혜라). 배당에서 보증금이 전액 변제되지 아니하면 잔액을 매수인이 인수함. 하루 보지 않기 X 부동산종합정보+토지이용계획+도시계획+개별공시지가+인근진행물건동일번지진행물건인근반경진행물건인근매각물건동일번지매각물건공매인근진행물건동산인근진행물건임대차보호법예상배당표입찰가분석표입찰표작성네이버부동산+ 주택공시가격 [출처:국토교통부] 소재지 공시기준 공시가격+ 경기도 파주시 목동동 1동 2025.1 584,000,000원 지자체 정보 및 기타현황 운정2동 주민센터 [10894] 경기 파주시 와석순환로 415
부동산
부동산강제경매
유찰
진행중
| 소재지 |
-
(경기도 파주시 목동동 749)
|
|---|---|
| 물건종류 | 근린주택 |
| 면적 |
토지: 0.00㎡ (0평)
건물: 620.21㎡ (187.61평)
|
| 현재 위치 | 경기도 파주시 목동동 749 |
| 소유자 / 채무자 | 박경미 / 박경미 |
| 채권자 | 오스템임플란트(주)외1명 |
| 배당종기일 | 2024-05-31 |
감정가
1,652,865,360
최저가
809,904,000
보증금
80,990,400
입찰 진행 내역
| 회차/구분 | 입찰기일 | 최저매각가격 | 결과 |
|---|---|---|---|
| 1차 (진행) | 2026-02-24 | 1,652,865,360 | 유찰 |
| 2차 (진행) | 2026-03-31 | 1,157,006,000 | 유찰 |
| 3차 (진행) | 2026-05-06 | 809,904,000 | |
| 4차 (진행) | 2026-06-09 | 566,933,000 |
임차인 현황
| 임차인명 | 점유여부 | 전입/확정/배당 | 보증금 / 차임 | 예상배당액 | 대항력 |
|---|---|---|---|---|---|
| (주)에셈드 | 점포 102호 |
전입: -
확정: - 배당: - |
5,000,000
월 3,500,000
|
0 | 있음 |
| 김예진 | 주거용 3층57.12㎡(302호) |
전입: 2020-10-23
확정: 2022-01-05 배당: 2024-03-19 |
130,000,000
월 0
|
0 | 있음 |
| 김혜라 | 주거용 2층60㎡(201호) |
전입: 2021-10-28
확정: 2021-09-27 배당: 2024-04-23 |
200,000,000
월 0
|
0 | 있음 |
| 박성민 | 주거용 2층 37.69㎡(202호) |
전입: 2020-09-08
확정: 2020-07-31 배당: 2022-09-20 |
130,000,000
월 0
|
0 | 있음 |
| 박찬우 | 점포 101호 |
전입: -
확정: 2022-01-07 배당: 2024-05-29 |
10,000,000
월 700,000
|
0 | 있음 |
| 백용식 | 주거용 301호 |
전입: 2018-01-02
확정: 2018-01-02 배당: 2024-03-28 |
100,000,000
월 300,000
|
0 | 있음 |
| 이영숙 | 점포 103호 |
전입: -
확정: 2022-01-07 배당: 2024-05-29 |
15,000,000
월 1,000,000
|
0 | 있음 |
매각물건 현황
| 구분 | 순번 | 소재지 | 용도/구조/면적 | 감정가 | 비고 |
|---|---|---|---|---|---|
| 토지 | 토지 | 목동동 749 | 제1종지구단위계획구역,도시지역,제1종일반주거지역,토지거래계약에관...제1종지구단위계획구역,도시지역,제1종일반주거지역,토지거래계약에관한허가구역,가축사육제한구역,역사문화환경보존지역 / 대 277.7㎡ (84평) | 3,340,000 | 927,518,000원 |
| 건물 | 1 | 가재울로93번길 25-5 [목동동 749]철근콘크리트구조 경사지붕 | 1층 / 제2종근린생횔시설(업체명 : 카페운정, 디자인끌림) | 101 | 1,118,000원 |
| 2 | 1층 | 옥내주차장 | 22.62㎡(6.84평) / 860,000원 | 19,453,200 | * 사용승인:2016.11.10* 도시가스보일러에 의한 난방설비 |
| 3 | 2층 | 단독주택-다가구주택(2가구) | 114.24㎡(34.56평) / 1,548,000원 | 176,843,520 | * 사용승인:2016.11.10* 도시가스보일러에 의한 난방설비 |
| 4 | 3층 | 단독주택-다가구주택(2가구) | 114.24㎡(34.56평) / 1,548,000원 | 176,843,520 | * 사용승인:2016.11.10* 도시가스보일러에 의한 난방설비 |
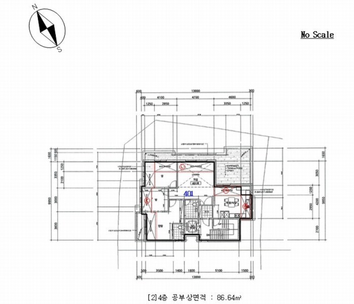
| 5 | 4층 | 단독주택-다가구주택(1가구) | 86.64㎡(26.21평) / 1,548,000원 | 134,118,720 | * 사용승인:2016.11.10* 도시가스보일러에 의한 난방설비 |
| 6 | 옥탑 | 계단실 | 13.77㎡(4.17평) / 860,000원 | 11,842,200 | * 사용승인:2016.11.10* 연면적제외 * 도시가스보일러에 의한 난방설비 |
| 제시외건물및기타 | 1 | 가재울로93번길 25-5 [목동동 749]샷시조 캐노피지붕 등 1.샷시조 캐노피지붕, 2.철근콘크리트조 경사지붕, 3.철근콘크리트조 경사지붕, 4.철근콘크리트조 경사지붕, 5.철근콘크리트조 경사지붕, 6.철근콘크리트조 경사지붕, 7.철근콘크리트조 경사지붕, 8.철근콘크리트조 경사지붕, 9.철근콘크리트조 경사지붕, 10.철근콘크리트조 경사지붕, 11.철근콘크리트조 경사지붕, 12.철근콘크리트조 경사지붕, 13.철근콘크리트조 경사지붕, 14.철근콘크리트조 경사지붕, 15.철근콘크리트조 경사지붕, 16.철근콘크리트조 경사지붕, 17.철근콘크리트조 경사지붕, 18.철근콘크리트조 경사지붕, 19.판넬조 판넬지붕 | 1층 / 비가림막 | 6 | 30,000원 |
| 2 | 2층 | 발코니확장 | 2.1㎡(0.64평) / 300,000원 | 630,000 | 매각포함 |
| 3 | 2층 | 발코니확장 | 2.31㎡(0.7평) / 300,000원 | 693,000 | 매각포함 |
| 4 | 2층 | 발코니확장 | 5.4㎡(1.63평) / 300,000원 | 1,620,000 | 매각포함 |
| 5 | 2층 | 발코니확장 | 2.93㎡(0.89평) / 300,000원 | 879,000 | 매각포함 |
| 6 | 2층 | 발코니확장 | 10.61㎡(3.21평) / 300,000원 | 3,183,000 | 매각포함 |
| 7 | 2층 | 발코니확장 | 3.37㎡(1.02평) / 300,000원 | 1,011,000 | 매각포함 |
| 8 | 3층 | 발코니확장 | 2.1㎡(0.64평) / 300,000원 | 630,000 | 매각포함 |
| 9 | 3층 | 발코니확장 | 2.31㎡(0.7평) / 300,000원 | 693,000 | 매각포함 |
| 10 | 3층 | 발코니확장 | 5.4㎡(1.63평) / 300,000원 | 1,620,000 | 매각포함 |
| 11 | 3층 | 발코니확장 | 2.93㎡(0.89평) / 300,000원 | 879,000 | 매각포함 |
| 12 | 3층 | 발코니확장 | 10.61㎡(3.21평) / 300,000원 | 3,183,000 | 매각포함 |
| 13 | 3층 | 발코니확장 | 3.37㎡(1.02평) / 300,000원 | 1,011,000 | 매각포함 |
| 14 | 4층 | 발코니확장 | 4.42㎡(1.34평) / 300,000원 | 1,326,000 | 매각포함 |
| 15 | 4층 | 발코니확장 | 4.18㎡(1.26평) / 300,000원 | 1,254,000 | 매각포함 |
| 16 | 4층 | 발코니확장 | 9.43㎡(2.85평) / 300,000원 | 2,829,000 | 매각포함 |
| 17 | 4층 | 발코니확장 | 10.87㎡(3.29평) / 300,000원 | 3,261,000 | 매각포함 |
| 18 | 옥탑 | 다락,EV 등 | 71.89㎡(21.75평) / 946,000원 | 68,007,940 | 매각포함* 옥탑1층 |
| 19 | 옥탑 | 창고 등 | 6.9㎡(2.09평) / 50,000원 | 345,000 | 매각포함* 옥탑1층 |
현황 및 위치
* 본건은 경기도 파주시 목동동 소재 "지산고등학교" 남서측 인근에 위치하며, 주위는 다가구주택, 근린생활시설이 주를 이루는 주거지대로서, 제반 주위여건은 무난함. * 본건까지 차량접근이 가능하며, 인근에 버스정류장이 소재하는 등 제반 교통여건은 보통시 됨. * 본건은 인접지 대비 등고평탄한 세장형의 토지로서, 주상용 건부지로 이용중임. * 북서측으로 노폭 약 8m, 북동측으로 노폭 약 10m 내외의 포장도로와 각각 접함.
참고사항
* 일괄매각. * 제시외 건물 포함 ☞현황서상 내용: 건물)1층 2개 상가(호실 표시 없음), 2, 3, 4층 총 5개의 가구의 다가구 주택임. 건물내에 승강기가 설치되어 있음.
등기부 현황
건물
| 순위 | 접수일자 | 권리종류 | 권리자 | 채권금액 | 소멸여부 | 비고 |
|---|---|---|---|---|---|---|
| 1(갑2) | 2021-12-10 | 소유권이전(증여) | 박OO | 0 | ||
| 2(갑4) | 2022-01-20 | 가압류 | 국OOOOOOOOOOOOO | 137,775,423,000 | 소멸 | 말소기준등기2022초기130 |
| 3(을3) | 2022-09-20 | 주택임차권(2층 37.69㎡(202호)) | 박OO | 130,000,000 | 전입:2020.09.08확정:2020.07.31 | |
| 4(을4) | 2023-10-20 | 주택임차권(3층57.12㎡(302호)) | 김OO | 130,000,000 | 전입:2020.10.23확정:2022.01.05 | |
| 5(을5) | 2024-02-22 | 주택임차권(2층60㎡(201호)) | 김OO | 200,000,000 | 전입:2021.10.28확정:2021.09.27 | |
| 6(갑5) | 2024-03-04 | 강제경매 | 오OOOOOOOOO | 1,054,676,112 | 소멸 | 2024타경64467 |
| 7(갑7) | 2024-04-22 | 강제경매 | 주OOOOOOOOOOOOOOOOO | 140,097,260 | 소멸 | 2024타경68506 |
| 8(갑9) | 2025-05-21 | 압류 | 국OOOOOOOO | 0 | 소멸 | |
| 9(갑11) | 2025-12-10 | 압류 | 파OO | 0 | 소멸 |
관련 문서 (PDF)
클릭하면 원본 파일이 열립니다