목록으로
최종 업데이트: 2026-04-25 10:33
2025타경62851
서울중앙지방법원 2025차전30799 지급명령 [관련사건] [전자]건물인도-서울중앙지방법원 2024가단5148379 판결정본 하루 보지 않기 X 부동산종합정보+토지이용계획+도시계획+개별공시지가+공동주택가격+인근진행물건동일번지진행물건인근반경진행물건인근매각물건동일번지매각물건공매인근진행물건동산인근진행물건임대차보호법예상배당표입찰가분석표시세
부동산
부동산강제경매
유찰
진행중
| 소재지 |
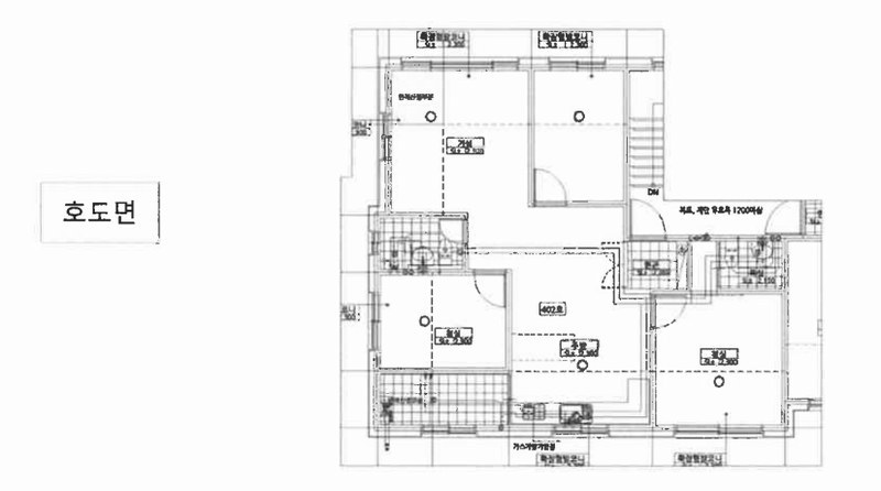
경기도 파주시 송학1길 196, 블랑 104동 4층 402호
(경기도 파주시 야당동 243-42)
|
|---|---|
| 물건종류 | 다세대(빌라)[공급20평형] |
| 면적 |
토지: 66.00㎡ (19.97평)
건물: 52.91㎡ (16.01평)
|
| 현재 위치 | 경기도 파주시 송학1길 196, 블랑 104동 4층 402호 |
| 소유자 / 채무자 | 권철승 / 권철승 |
| 채권자 | 주택도시보증공사 |
| 배당종기일 | 2025-07-21 |
감정가
238,000,000
최저가
81,634,000
보증금
8,163,400
입찰 진행 내역
| 회차/구분 | 입찰기일 | 최저매각가격 | 결과 |
|---|---|---|---|
| 1차 (진행) | 2026-01-13 | 238,000,000 | 유찰 |
| 2차 (진행) | 2026-02-24 | 166,600,000 | 유찰 |
| 3차 (진행) | 2026-03-31 | 116,620,000 | 유찰 |
| 4차 (진행) | 2026-05-06 | 81,634,000 |
임차인 현황
| 임차인명 | 점유여부 | 전입/확정/배당 | 보증금 / 차임 | 예상배당액 | 대항력 |
|---|---|---|---|---|---|
| 유승완 | 주거용 건물전부 |
전입: 2020-05-29
확정: 2020-05-12 배당: 2023-07-26 |
229,500,000
월 0
|
0 | 있음 |
매각물건 현황
| 구분 | 순번 | 소재지 | 용도/구조/면적 | 감정가 | 비고 |
|---|---|---|---|---|---|
| 건물 | 4층중 4층 | 19.04.18 | 52.9125㎡(16.01평)[공급20평] / 주거용 | 142,800,000 |
현황 및 위치
* 본건은 경기도 파주시 야당동 소재 ‘야당역’ 북동측 인근에 위치하며, 주위는 동유형의 다세대주택, 근린생활시설 등이 소재하는 지역으로 제반 주위환경은 보통임. * 본건까지 차량의 접근이 가능하며, 인근에 노선버스 정류장 및 경의중앙선 "야당역"이 소재하여 대중교통 상황은 보통임. * 인접지 대비 등고 평탄한 사다리형 토지로서, 공동주택(다세대주택) 건부지로 이용중임. * 본건 북서측으로 포장도로에 접함.
등기부 현황
건물
| 순위 | 접수일자 | 권리종류 | 권리자 | 채권금액 | 소멸여부 | 비고 |
|---|---|---|---|---|---|---|
| 1(갑2) | 2020-05-29 | 소유권이전(매매) | 권OO | 0 | ||
| 2(갑3) | 2022-12-13 | 가압류 | 주OOOOOOOOOOOOOOOOO | 1,804,000,000 | 소멸 | 말소기준등기2022카단106378 |
| 3(갑4) | 2023-03-09 | 압류 | 국OOOOOOOO | 0 | 소멸 | |
| 4(을3) | 2023-07-26 | 주택임차권(건물전부) | 유OO | 229,500,000 | 전입:2020.05.29확정:2020.05.12 | |
| 5(갑5) | 2025-04-18 | 강제경매 | 주OOOOOOOOOOOOOOOOO | 237,197,707 | 소멸 | 2025타경62851, 주택도시보증공사 가압류의 본 압류로의 이행 |
| 6(갑6) | 2025-07-07 | 압류 | 국OOOOOOOOO | 0 | 소멸 | |
| 7(갑7) | 2025-08-27 | 압류 | 부OO | 0 | 소멸 |
관련 문서 (PDF)
클릭하면 원본 파일이 열립니다