목록으로
최종 업데이트: 2026-04-25 15:08
2025타경60424
서울중앙지방법원 2024차전209067 지급명령 주의사항 ▶ 매각허가에 의하여 소멸되지 아니하는 것 - 매수인에게 대항할 수 있는 을구 4번 임차권등기(임대차보증금 270,000,000원, 전입일자 2022.10.11. 확정일자 2022.03.10.)가 있으므로 배당에서 전액 변제되지 아니하면 잔액을 매수인이 인수함. 하루 보지 않기 X 부동산종합정보+토지이용계획+도시계획+개별공시지가+공동주택가격+인근진행물건동일번지진행물건인근반경진행물건인근매각물건동일번지매각물건공매인근진행물건동산인근진행물건임대차보호법예상배당표입찰가분석표시세
부동산
부동산강제경매
유찰
진행중
| 소재지 |
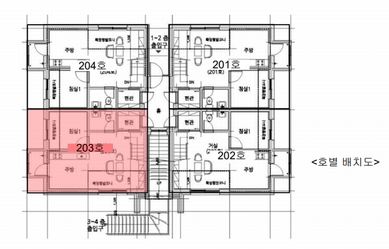
경기도 파주시 독점말2길 4-14, 트루아종타운하우스 103동 2층 203호
(경기도 파주시 금촌동 421)
|
|---|---|
| 물건종류 | 다세대(빌라) |
| 면적 |
토지: 95.05㎡ (28.75평)
건물: 63.11㎡ (19.09평)
|
| 현재 위치 | 경기도 파주시 독점말2길 4-14, 트루아종타운하우스 103동 2층 203호 |
| 소유자 / 채무자 | 황석현 / 황석현 |
| 채권자 | 주택도시보증공사 |
| 배당종기일 | 2025-04-03 |
감정가
308,000,000
최저가
25,365,000
보증금
2,536,500
입찰 진행 내역
| 회차/구분 | 입찰기일 | 최저매각가격 | 결과 |
|---|---|---|---|
| 1차 (진행) | 2025-08-13 | 308,000,000 | 유찰 |
| 2차 (진행) | 2025-09-17 | 215,600,000 | 유찰 |
| 3차 (진행) | 2025-10-29 | 150,920,000 | 유찰 |
| 4차 (진행) | 2025-12-03 | 105,644,000 | 유찰 |
| 5차 (진행) | 2026-01-14 | 73,951,000 | 유찰 |
| 6차 (진행) | 2026-02-25 | 51,766,000 | 유찰 |
| 7차 (진행) | 2026-04-01 | 36,236,000 | 유찰 |
| 8차 (진행) | 2026-05-07 | 25,365,000 |
임차인 현황
| 임차인명 | 점유여부 | 전입/확정/배당 | 보증금 / 차임 | 예상배당액 | 대항력 |
|---|---|---|---|---|---|
| 김종진 | 주거용 전부 |
전입: 2024-10-15
확정: 2024-10-15 배당: 2025-04-07 |
10,000,000
월 750,000
|
0 | 없음 |
| 문경빈 | 주거용 전부 |
전입: 2022-10-11
확정: 2022-03-10 배당: 2024-04-04 |
270,000,000
월 0
|
0 | 있음 |
매각물건 현황
| 구분 | 순번 | 소재지 | 용도/구조/면적 | 감정가 | 비고 |
|---|---|---|---|---|---|
| 건물 | 4층중 2층 | 21.11.26 | 63.11㎡(19.09평) / 주거용 | 184,800,000 |
현황 및 위치
* 대상물건은 경기도 파주시 금촌동 소재 “금산초등학교” 북측 근거리에 위치하며, 주위는 공동주택, 각종 근린생활시설 등이 혼재하는 지역으로서 제반 주위환경은 보통됨 * 대상물건까지 차량 접근이 가능하며, 인근에 노선버스정류장 등이 소재하는 등 제반 대중교통상황은 보통시 됨 * 대상물건은 인접필지 및 도로대비 등고평탄한 부정형 토지로서, ‘공동주택(다세대주택)’ 건부지로 이용중임 * 대상물건은 단지내 포장도로 개설되어 있으며, 단지내 포장도로를 통하여 대상부동산 남측 ‘시청로’와 연계되어 있음
참고사항
* 대상물건의 등기사항전부증명서상 제2층으로 등재되어 있으나, 집합건축물대장 전유부상 층별사항에 1,2층으로 등재 되어 있으며, 현장 조사 시 복층으로 탐문 조사 되었으며, 대상 부동산 건축물 현황도를 기준하였을 때 복층으로 추정되는바 경매 진행 및 입찰시 대상 부동산의 내부 구조등에 대하여 반드시 재확인 하시기 바람
등기부 현황
건물
| 순위 | 접수일자 | 권리종류 | 권리자 | 채권금액 | 소멸여부 | 비고 |
|---|---|---|---|---|---|---|
| 1(갑3) | 2022-03-30 | 소유권이전 | 황OO | 0 | 신탁재산의귀속 | |
| 2(을3) | 2022-11-10 | 근저당 | 황OO | 20,000,000 | 소멸 | 말소기준등기 |
| 3(을4) | 2024-04-04 | 주택임차권(전부) | 문OO | 270,000,000 | 전입:2022.10.11확정:2022.03.10 | |
| 4(갑4) | 2025-01-09 | 강제경매 | 주OOOOOOOOOOOOOOOOO | 270,000,000 | 소멸 | 2025타경60424 |
| 5(갑5) | 2025-01-16 | 압류 | 국OOOOOOO | 0 | 소멸 | |
| 6(갑6) | 2025-01-20 | 압류 | 국OOOOOOOO | 0 | 소멸 | |
| 7(갑7) | 2025-01-21 | 압류 | 국OOOOOOO | 0 | 소멸 | |
| 8(갑8) | 2025-02-14 | 압류 | 파OO | 0 | 소멸 |
관련 문서 (PDF)
클릭하면 원본 파일이 열립니다