목록으로
최종 업데이트: 2026-04-23 18:22
2024타경118123
서울중앙지방법원 본원 21계(02-530-1822)
부동산
부동산강제경매
유찰
진행중
| 소재지 |
-
(서울특별시 관악구 봉천동 1529-16)
|
|---|---|
| 물건종류 | 근린주택 |
| 면적 |
토지: 0.00㎡ (0평)
건물: 367.66㎡ (111.22평)
|
| 현재 위치 | 서울특별시 관악구 봉천동 1529-16 |
| 소유자 / 채무자 | 김정현 / 김정현 |
| 채권자 | 권유정 |
| 배당종기일 | 2024-12-30 |
감정가
1,797,400,000
최저가
588,971,000
보증금
58,897,100
입찰 진행 내역
| 회차/구분 | 입찰기일 | 최저매각가격 | 결과 |
|---|---|---|---|
| 1차 (진행) | 2025-05-27 | 1,797,400,000 | 유찰 |
| 2차 (진행) | 2025-07-15 | 1,437,920,000 | 유찰 |
| 3차 (진행) | 2025-08-19 | 1,150,336,000 | 유찰 |
| (진행) | 2025-09-23 | 920,268,000 | 변경 |
| 4차 (진행) | 2026-03-17 | 920,268,000 | 유찰 |
| 5차 (진행) | 2026-04-21 | 736,214,000 | 유찰 |
| 6차 (진행) | 2026-06-02 | 588,971,000 | |
| 7차 (진행) | 2026-07-07 | 471,176,000 |
임차인 현황
| 임차인명 | 점유여부 | 전입/확정/배당 | 보증금 / 차임 | 예상배당액 | 대항력 |
|---|---|---|---|---|---|
| 고영민 | 주거용 4층 문패상504호 |
전입: 2019-07-24
확정: 2019-07-24 배당: 2024-11-27 |
110,000,000
월 0
|
0 | 있음 |
| 고은아 | 주거용 2층 문패상 303호 |
전입: 2023-04-27
확정: 2023-03-22 배당: 2024-10-08 |
110,000,000
월 0
|
0 | 있음 |
| 권유정 | 주거용 지1층 문패상 101호 |
전입: 2022-05-02
확정: 2022-04-06 배당: 2024-12-24 |
120,000,000
월 0
|
0 | 있음 |
| 김경원 | 주거용 3층 문패상 402호 |
전입: 2021-07-26
확정: 2021-07-05 배당: 2024-10-14 |
110,000,000
월 0
|
0 | 있음 |
| 김남준 | 주거용 1층 문패상 204호 |
전입: 2022-01-17
확정: 2021-12-24 배당: 2024-11-05 |
110,000,000
월 0
|
0 | 있음 |
| 김영운 | 주거용 4층 문패상 502호 |
전입: 2023-03-13
확정: 2023-02-08 배당: 2024-10-08 |
110,000,000
월 0
|
0 | 있음 |
| 김예림 | 주거용 3층 문패상 302호 |
전입: 2022-05-26
확정: 2022-04-19 배당: 2024-09-30 |
113,000,000
월 0
|
0 | 있음 |
| 김채림 | 주거용 3층 문패상 401호 |
전입: 2023-07-24
확정: 2023-06-15 배당: 2024-10-21 |
110,000,000
월 0
|
0 | 있음 |
| 김태형 | 주거용 |
전입: 2021-07-26
확정: - 배당: - |
0
월 0
|
0 | - |
| 박정민 | 주거용 옥탑1층 문패상601호 |
전입: 2022-09-13
확정: 2022-09-13 배당: 2024-10-08 |
120,000,000
월 150,000
|
0 | 있음 |
| 사현동 | 주거용 지1층 문패상 103호 |
전입: 2021-11-25
확정: 2021-11-01 배당: 2024-04-22 |
100,000,000
월 0
|
0 | 있음 |
| 송하상 | 주거용 4층 문패상 501호 |
전입: 2021-07-20
확정: 2021-06-29 배당: 2024-07-30 |
110,000,000
월 0
|
0 | 있음 |
| 신남섭 | 주거용 |
전입: 2019-11-07
확정: - 배당: - |
0
월 0
|
0 | - |
| 오희주 | 주거용 지1층 문패상 102호 |
전입: 2022-04-11
확정: 2022-03-15 배당: 2024-10-15 |
110,000,000
월 0
|
0 | 있음 |
| 이상희 | 주거용 2층문패상 301호 |
전입: 2019-08-27
확정: 2019-08-27 배당: 2024-11-07 |
100,000,000
월 0
|
0 | 있음 |
| 진우성 | 주거용 2층 문패상 304호 |
전입: 2021-08-11
확정: 2021-07-21 배당: 2024-10-08 |
100,000,000
월 0
|
0 | 있음 |
| 최윤혁 | 주거용 3층 문패상 404호 |
전입: 2022-05-06
확정: 2022-04-14 배당: 2024-10-24 |
120,000,000
월 0
|
0 | 있음 |
| 추원준 | 주거용 602호 |
전입: 2020-12-21
확정: 2020-12-21 배당: 2024-12-23 |
100,000,000
월 200,000
|
0 | 있음 |
| 한국토지주택공사 | 주거용 지1층 문패상 104호 |
전입: 2019-11-07
확정: 2019-10-18 배당: 2024-12-26 |
120,000,000
월 0
|
0 | 있음 |
| 한혜정 | 주거용 4층 문패상 503호 |
전입: 2021-08-05
확정: 2021-07-14 배당: 2024-12-17 |
110,000,000
월 0
|
0 | 있음 |
매각물건 현황
| 구분 | 순번 | 소재지 | 용도/구조/면적 | 감정가 | 비고 |
|---|---|---|---|---|---|
| 토지 | 토지 | 봉천동 1529-16 | 대공방어협조구역,교육환경보호구역,도시지역,과밀억제권역,가축사육...대공방어협조구역,교육환경보호구역,도시지역,과밀억제권역,가축사육제한구역,중점경관관리구역,제2종일반주거지역,토지거래계약에관한허가구역,상대보호구역 / 대 125.5㎡ (37.96평) | 0 | 1,313,990,000원 |
| 건물 | 1 | 장군봉5길 30-10 [봉천동 1529-16]철근콘크리트구조 (철근)콘크리트지붕 | 지하1층 / 다중주택- 4가구 | 58 | |
| 2 | 1층 | 다중주택- 4가구 | 73.97㎡(22.38평) / | 0 | * 사용승인:2019.04.25* 공부상 사무소 |
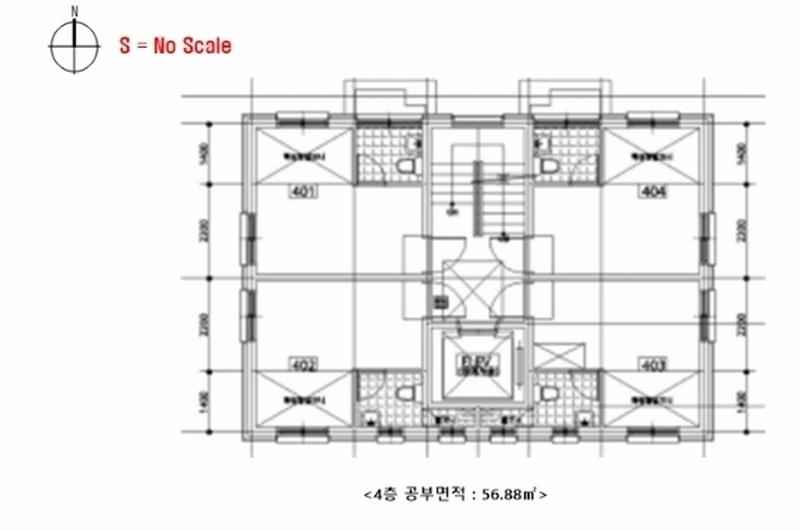
| 3 | 2층 | 다중주택- 4가구 | 56.88㎡(17.21평) / | 0 | * 사용승인:2019.04.25 |
| 4 | 3층 | 다중주택- 4가구 | 56.88㎡(17.21평) / | 0 | * 사용승인:2019.04.25 |
| 5 | 4층 | 다중주택- 4가구 | 56.88㎡(17.21평) / | 0 | * 사용승인:2019.04.25 |
| 6 | 옥탑 | 주택 2가구 | 30㎡(9.08평) / | 0 | * 사용승인:2019.04.25* 연면적 제외 * 옥탑1층 |
| 7 | 옥탑 | 계단실 | 8.64㎡(2.61평) / | 0 | * 사용승인:2019.04.25* 연면적 제외 * 옥탑1층 |
| 제시외건물및기타 | 1 | 장군봉5길 30-10 [봉천동 1529-16]조적조 등 1.조적조, 2.조립식패널조, 3.조립식패널조 | 지하 / 창고 | 4 | 720,000원 |
| 2 | 4층 | 보일러실 | 3㎡(0.91평) / | 680,000 | 매각포함* 2개호 , ▶감평서상 단가: @225,000원/㎡ |
| 3 | 옥탑 | 주택 | 16㎡(4.84평) / 225,000원 | 3,600,000 | 매각포함 |
| 4 | 옥탑 | 태양광 1식 | 3㎡(0.91평) / | 2,000,000 | 매각포함 |
현황 및 위치
* 본건은 서울특별시 관악구 봉천동 소재 "관악초등학교 " 동측 인근에 위치하며, 인근으로 단독, 다가구, 다세대주택 및 주상용건물과 근린생활시설 등이 혼재된 지역으로 주위환경은 보통임. * 본건까지 차량진입이 가능하며, 인근으로 버스정류장 및 북측으로 지하철 2호선 "봉천역"이 소재하여 교통상황은 보통임. * 본건은 인접필지 및 도로대비 동측으로 하향완경사를 이루는 세장형토지로서, 주거용건부지로 사용되고 있음. * 본건 동측으로 약4m 내외의 포장도로와 북측으로 막다른 계단도로에 접하고 있음.
참고사항
* 일괄매각. 제시외 건물 포함 * 건축물 대장상 위반건축물임.- 옥탐은 주택과-69761(2019.10.21) 및 50219(2019.12.26)호에 의거 위반건축물로 등재되어 있고 내역은 옥상 16㎡ 조립식패널조 단독주택임 * 본건의 일반건축물대장상 지1층은 현황 동측 도로변 지상1층이므로 이를 고려하여 평가하였음. * 공부상 지층이 현장조사시 101호-104호이고 1층이 201-204호, 2층이 301-304호, 3층이 401-404호, 4층이 501-504호, 옥탑이 601-602호로 표기되어 있음 * 옥탑 601호, 602호는 다락과 제시외건물(ㄷ)을 일체로 주거용으로 사용중임. * 본건 일부 호실을 확인한 바 내부의 벽체를 이용하여 베란다 부분을 확장하여 방 일부로 사용중임을 확인하였으며 이를 건물에 포함하여 평가하였음 * 건물등기사항전부증명서와 토지대장상의 면적125.5㎡와 일반건축물대장상의 대지면적123.5㎡는 상이함 * 제시외1) 지층창고㉠은 창고로 사용되고 있으며, 내부의 주거시설 등은 없음. 제시외2) 4층 보일러실㉡은 4층호수 일부가 보일러실로 이용중임을 외부관찰함. 제시외4) 태양광시설㉣은 패널 등이 존재하나, 관련자의 부재로 보조금 지원과 시설에 관한 세부정보등 정확한 내용은 확인하지 못함. * 부동산현황조사보고서에 의하면 1층은 104호까지 있으나, 104호는 건물 밖에 위치함 ▶본건 건물 지1층58.41㎡*@1,305,000원/㎡=76,230,000원, 1층 -4층 244.61㎡*@1,485,000원/㎡=363,250,000원, 옥탑1층 38.64㎡*@900,000원/㎡=34,770,000원 ☞현황서상 내용: 1층은 104호까지 있으나, 104호는 건물 밖에 위치함 . 2층부터 5층까지는 각4개호가 있으며, 6층은 2개호로 구성되어 있음 ▶본 물건은 공부상과 현황상 물건 상태가 다르니 확인하시고 입찰하시기 바랍니다.
전문가 코멘트
☞ 위반(불법)건축물일 경우 건축법 제80조에 의해 계고 및 원상복구명령을 받게되고, 원상복구 하지 않으면 매년 2회 이내 이행강제금이 부과되므로 관할 관청을 통하여 위반내용, 이행강제금 부과내역 또는 양성화방안 등을 확인하시고 이로 인해 잔금대출에 영향이 없는지 금융기관에 확인하시기 바랍니다.(상가의 경우 기존 영업허가는 승계가 가능하나 신규 영업허가는 발급이 어려우니 주의하시기 바랍니다.)
☞ 본건은 소액임차인의 최우선변제금 지급기준이 되는 담보물권이 없어 배당시점을 기준으로 소액임차인을 판단하였으니 참고하시기 바랍니다.
등기부 현황
건물
| 순위 | 접수일자 | 권리종류 | 권리자 | 채권금액 | 소멸여부 | 비고 |
|---|---|---|---|---|---|---|
| 1(갑3) | 2019-08-19 | 소유권이전 | 김OO | 0 | 신탁재산의귀속 | |
| 2(을7) | 2023-11-13 | 주택임차권(4층 문패상504호) | 고OO | 110,000,000 | 전입:2019.07.24확정:2019.07.24 | |
| 3(을8) | 2024-04-22 | 주택임차권(지1층 문패상 103호) | 사OO | 100,000,000 | 전입:2021.11.25확정:2021.11.01 | |
| 4(을9) | 2024-05-07 | 주택임차권(지1층 문패상 101호) | 권OO | 120,000,000 | 전입:2022.05.02확정:2022.04.06 | |
| 5(을10) | 2024-05-13 | 주택임차권(3층 문패상 404호) | 최OO | 120,000,000 | 전입:2022.05.06확정:2022.04.14 | |
| 6(을11) | 2024-05-27 | 주택임차권(1층 문패상 204호) | 김OO | 110,000,000 | 전입:2022.01.17확정:2021.12.24 | |
| 7(을12) | 2024-07-30 | 주택임차권(4층 문패상 501호) | 송OO | 110,000,000 | 전입:2021.07.20확정:2021.06.29 | |
| 8(갑4) | 2024-08-13 | 가압류 | 송OO | 110,000,000 | 소멸 | 말소기준등기2024카단816482 |
| 9(을13) | 2024-08-26 | 주택임차권(4층 문패상 503호) | 한OO | 110,000,000 | 전입:2021.08.05확정:2024.03.08 | |
| 10(갑5) | 2024-09-20 | 강제경매 | 권OO | 124,694,794 | 소멸 | 2024타경118123 |
| 11(을14) | 2024-10-21 | 주택임차권(4층 문패상 502호) | 김OO | 110,000,000 | 전입:2023.03.13확정:2023.02.08 | |
| 12(을15) | 2024-10-22 | 주택임차권(2층문패상 301호) | 이OO | 100,000,000 | 전입:2019.08.27확정:2019.08.27 | |
| 13(을16) | 2024-10-22 | 주택임차권(지1층 문패상 102호) | 오OO | 110,000,000 | 전입:2022.04.11확정:2022.03.15 | |
| 14(을17) | 2024-11-08 | 주택임차권(옥탑1층 문패상601호) | 박OO | 120,000,000 | 전입:2022.09.13확정:2022.09.13차: 150,000 | |
| 15(을18) | 2025-04-24 | 주택임차권(2층 문패상 303호) | 고OO | 110,000,000 | 전입:2023.04.27확정:2023.03.22 | |
| 16(을19) | 2025-05-19 | 주택임차권(3층 문패상 401호) | 김OO | 110,000,000 | 전입:2023.07.24확정:2023.06.15 | |
| 17(을20) | 2025-07-07 | 주택임차권(3층 문패상 402호) | 김OO | 110,000,000 | 전입:2021.07.26확정:2021.07.05 | |
| 18(을21) | 2025-07-21 | 주택임차권(2층 문패상 304호) | 진OO | 100,000,000 | 전입:2021.08.11확정:2021.07.21 | |
| 19(을22) | 2025-07-21 | 주택임차권(3층 문패상 302호) | 김OO | 110,000,000 | 전입:2022.05.26확정:2022.04.19보:금 110,000,000원(계약서상 금 113,000,000원) | |
| 20(을23) | 2025-11-20 | 주택임차권(지1층 문패상 104호) | 한OOOOOOO | 120,000,000 | 전입:2019.11.07확정:2019.10.18 |
관련 문서 (PDF)
클릭하면 원본 파일이 열립니다