메뉴
목록으로 최종 업데이트: 2026-04-26 17:38

2024타경73653

의정부지방법원 2021가단114198 판결정본 [관련사건] 소송비용액확정-의정부지방법원 2022카확10984 기타집행권원 주의사항 ▶ 매각허가에 의하여 소멸되지 아니하는 것 - 매수인에게 대항할 수 있는 을구 3번 임차권등기(2023.05.25.등기) 있으므로 배당에서 전액 변제되지 아니하면 잔액은 매수인이 인수함(임대차보증금 245,000,000원, 전입일자 2018.06.27. 확정일자 2018.06.18.) 하루 보지 않기 X 부동산종합정보+토지이용계획+도시계획+개별공시지가+공동주택가격+인근진행물건동일번지진행물건인근반경진행물건인근매각물건동일번지매각물건공매인근진행물건동산인근진행물건임대차보호법예상배당표입찰가분석표시세

부동산 부동산강제경매 유찰 진행중
의정부지방법원 2021가단114198 판결정본 [관련사건] 소송비용액확정-의정부지방법원 2022카확10984 기타집행권원 주의사항 ▶ 매각허가에 의하여 소멸되지 아니하는 것 - 매수인에게 대항할 수 있는 을구 3번 임차권등기(2023.05.25.등기) 있으므로 배당에서 전액 변제되지 아니하면 잔액은 매수인이 인수함(임대차보증금 245,000,000원, 전입일자 2018.06.27. 확정일자 2018.06.18.) 하루 보지 않기 X 부동산종합정보+토지이용계획+도시계획+개별공시지가+공동주택가격+인근진행물건동일번지진행물건인근반경진행물건인근매각물건동일번지매각물건공매인근진행물건동산인근진행물건임대차보호법예상배당표입찰가분석표시세 매각기일 2026-05-13 00:00:00 사건번호 2024타경73653 최근 확인 2026-04-26 17:38 다음 확인 2026-05-14 09:00
소재지
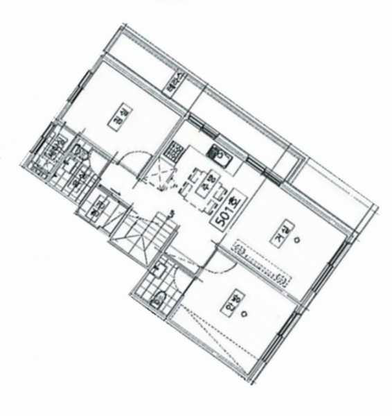
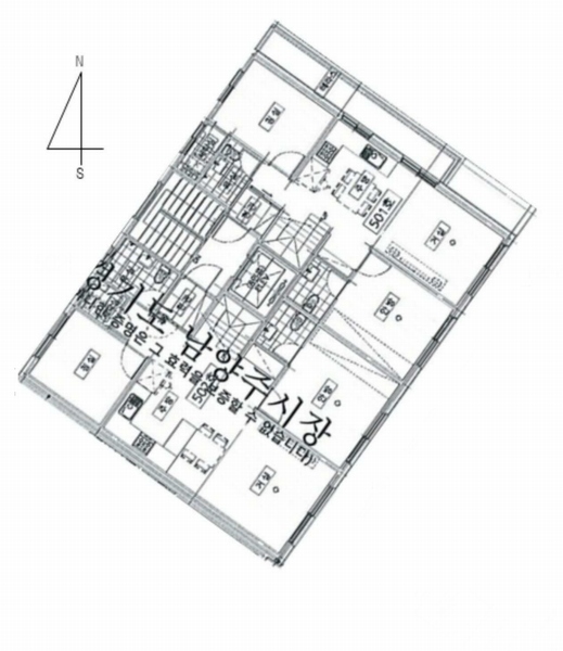
경기도 남양주시 화도읍 수레로1120번길 42-12, 채움타운 102동 5층 501호
(경기도 남양주시 화도읍 차산리 49-6)
물건종류 다세대(빌라)[공급20평형]
면적
토지: 34.39㎡ (10.4평)
건물: 59.22㎡ (17.91평)
현재 위치 경기도 남양주시 화도읍 수레로1120번길 42-12, 채움타운 102동 5층 501호
소유자 / 채무자 김아라 / 김아라
채권자 주택도시보증공사
배당종기일 2024-06-10
감정가
202,000,000
최저가
8,152,000
보증금
1,630,400
입찰 진행 내역
회차/구분 입찰기일 최저매각가격 결과
1차 (진행) 2025-02-26 202,000,000 유찰
2차 (진행) 2025-04-02 141,400,000 유찰
3차 (진행) 2025-05-07 98,980,000 유찰
4차 (진행) 2025-06-11 69,286,000 유찰
5차 (진행) 2025-07-16 48,500,200 유찰
6차 (진행) 2025-08-20 33,950,100 유찰
7차 (진행) 2025-09-24 23,765,000 유찰
8차 (진행) 2025-10-29 16,635,500 매각
9차 (진행) 2026-03-04 16,635,500 유찰
10차 (진행) 2026-04-08 11,645,000 유찰
11차 (진행) 2026-05-13 8,152,000
12차 (진행) 2026-06-17 5,706,000
진행 메모
매각 17,650,000원(8.74%) / 14명 / 미납
임차인 현황
임차인명 점유여부 전입/확정/배당 보증금 / 차임 예상배당액 대항력
김명균 주거용 건물전부
전입: 2018-06-27
확정: 2018-06-18
배당: 2023-05-25
245,000,000
월 0
0 있음
매각물건 현황
구분 순번 소재지 용도/구조/면적 감정가 비고
건물 5층중 5층 16.07.28 59.222㎡(17.91평)[공급20평] / 도시형생활주택 147,460,000
현황 및 위치
* 본건은 경기도 남양주시 화도읍 차산리 소재 "차산초등학교" 동측 인근에 위치하며 부근은 아파트단지, 다세대주택 및 근린상가, 학교 등으로 형성된 지대임. * 본건까지 차량 출입가능하며 인근에 노선버스정류장이 소재하는 등 대중교통상황은 보통임. * 평탄한 장방형의 토지로 다세대주택(도시형생활주택)의 부지로 이용중임. * 본건 단지 북측으로 2차선 포장도로와 접함.
참고사항
▶본건매각 2025.10.29 / 매각가 17,650,000원 / OOO / 14명 입찰 / 대금미납
등기부 현황
건물
순위 접수일자 권리종류 권리자 채권금액 소멸여부 비고
1(갑2) 2018-07-04 공유자전원지분전부이전 김OO 0 매매
2(을3) 2023-05-25 주택임차권(건물전부) 김OO 245,000,000 전입:2018.06.27확정:2018.06.18
3(갑4) 2024-03-20 강제경매 주OOOOOOOOOOOOOOOOO 274,925,491 소멸 말소기준등기2024타경73653
관련 문서 (PDF) 클릭하면 원본 파일이 열립니다