목록으로
최종 업데이트: 2026-04-22 16:00
2024타경84455
부동산
부동산임의경매
매각
진행중
| 소재지 |
경기도 남양주시 진건읍 사릉로372번길 25, 진건주공2단지 201동 4층 401호
(경기도 남양주시 진건읍 용정리 855)
|
|---|---|
| 물건종류 | 아파트[공급22평형] |
| 면적 |
토지: 34.11㎡ (10.32평)
건물: 49.95㎡ (15.11평)
|
| 현재 위치 | 경기도 남양주시 진건읍 사릉로372번길 25, 진건주공2단지 201동 4층 401호 |
| 소유자 / 채무자 | 현승은 / 현승은 |
| 채권자 | 애큐온저축은행 |
| 배당종기일 | 2025-01-13 |
감정가
198,000,000
최저가
138,600,000
보증금
13,860,000
진행 상태 / 매각 결과
매각
completed = false
매각허가결정
| 상태 코드 | 2 | 상태 텍스트 | 매각허가결정 |
|---|---|---|---|
| 매각가 | 168,880,000원 | 매각가율 | 0% |
| 입찰 수 | 11 | 매수인 | 임백식 |
| 차순위 입찰가 | 164,340,304원 | 매각허가 결정 | 매각허가결정 |
| 매각허가 결정일 | 2026-03-11 | 대금 지급기한 | - |
| 대금 지급상태 | - | 배당기일 | - |
| 배당 종결일 | - | 다음 확인 예정 | 2026-04-23 09:00 |
입찰 진행 내역
| 회차/구분 | 입찰기일 | 최저매각가격 | 결과 |
|---|---|---|---|
| 1차 (진행) | 2026-01-21 | 198,000,000 | 유찰 |
| 2차 (진행) | 2026-03-04 | 138,600,000 |
진행 메모
매각 : 168,880,000 원 (85.29%)
(입찰 11 명,매수인:임백식 / 차순위금액 164,340,304원)
매각결정기일 : 2026.03.11 - 매각허가결정
대금지급기한 : 2026.04.17
대금납부 2026.04.17 / 배당기일 2026.05.20
매각물건 현황
| 구분 | 순번 | 소재지 | 용도/구조/면적 | 감정가 | 비고 |
|---|---|---|---|---|---|
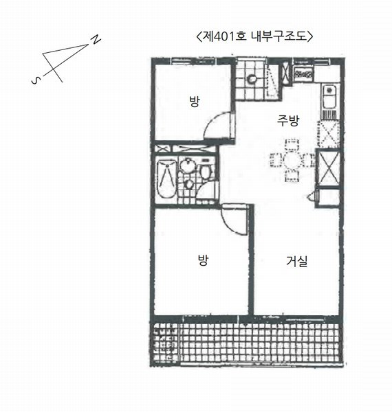
| 건물 | 18층중 4층 | 98.12.30 | 49.95㎡(15.11평)[공급22평] / 방 2, 거실, 주방, W.C, 발코니 등 | 99,000,000 | * 도시가스보일러에 의한 난방설비 |
현황 및 위치
* 본건은 경기도 남양주시 진건읍 용정리 소재 "진건초등학교" 동측 인근에 위치하며, 주위는 아파트단지, 다세대주택, 단독주택, 근린생활시설 등이 소재하는 기존주택지대임. * 본건 소재 건물까지 제 차량의 출입이 가능하며, 인근에 버스정류장이 소재하고 남서측 근거리에 “사릉역(경춘선)”이 위치하는 등 전반적인 교통상황은 보통임. * 인접 도로와 대체로 등고 평탄한 부정형의 토지로서, 아파트 건부지로 이용중임. * 본건 아파트단지 내·외로 포장도로가 개설되어 있음.
등기부 현황
건물
| 순위 | 접수일자 | 권리종류 | 권리자 | 채권금액 | 소멸여부 | 비고 |
|---|---|---|---|---|---|---|
| 1(갑9) | 2015-03-10 | 소유권이전(매매) | 현OO | 0 | 거래가액:123,000,000, 개명전:현승주 | |
| 2(을9) | 2015-03-10 | 근저당 | 국OOOOOOOOOO | 84,000,000 | 소멸 | 말소기준등기 |
| 3(을10) | 2022-03-08 | 근저당 | 애OOOOOO | 124,800,000 | 소멸 | |
| 4(갑10) | 2024-10-18 | 임의경매 | 애OOOOOO | 107,699,074 | 소멸 | 2024타경84455 |
| 5(갑11) | 2024-11-07 | 가압류 | (OOOOOOOOO | 36,286,190 | 소멸 | 2024카단23763 |
관련 문서 (PDF)
클릭하면 원본 파일이 열립니다