목록으로
최종 업데이트: 2026-04-23 01:03
2024타경5513
부동산
부동산임의경매
매각
진행중
| 소재지 |
-
(경기도 가평군 설악면 설곡리 93)
|
|---|---|
| 물건종류 | 주택 |
| 면적 |
토지: 0.00㎡ (0평)
건물: 175.67㎡ (53.14평)
|
| 현재 위치 | 경기도 가평군 설악면 설곡리 93 |
| 소유자 / 채무자 | 이종진 / 이종진 |
| 채권자 | 한국주택금융공사 업무수탁기관 하나은행 |
| 배당종기일 | 2025-01-07 |
감정가
285,628,800
최저가
139,958,000
보증금
13,995,800
진행 상태 / 매각 결과
매각
completed = false
매각허가결정
| 상태 코드 | 2 | 상태 텍스트 | 매각허가결정 |
|---|---|---|---|
| 매각가 | 218,875,000원 | 매각가율 | 0% |
| 입찰 수 | 3 | 매수인 | 신유자 |
| 차순위 입찰가 | 168,100,000원 | 매각허가 결정 | 매각허가결정 |
| 매각허가 결정일 | 2026-03-17 | 대금 지급기한 | - |
| 대금 지급상태 | - | 배당기일 | - |
| 배당 종결일 | - | 다음 확인 예정 | 2026-04-24 09:00 |
입찰 진행 내역
| 회차/구분 | 입찰기일 | 최저매각가격 | 결과 |
|---|---|---|---|
| 1차 (진행) | 2025-12-11 | 285,628,800 | 유찰 |
| 2차 (진행) | 2026-01-27 | 199,940,000 | 유찰 |
| 3차 (진행) | 2026-03-10 | 139,958,000 |
진행 메모
매각 : 218,875,000 원 (76.63%)
(입찰 3 명,매수인:신유자 / 차순위금액 168,100,000원)
매각결정기일 : 2026.03.17 - 매각허가결정
대금지급기한 : 2026.04.24
매각물건 현황
| 구분 | 순번 | 소재지 | 용도/구조/면적 | 감정가 | 비고 |
|---|---|---|---|---|---|
| 토지 | 토지 | 1 | 설곡리 93 / 자연보전권역,가축사육제한구역,계획관리지역 | 379 | 229,000원(109,800원) |
| 토지 | 2 | 설곡리 93-1 | 자연보전권역,가축사육제한구역,계획관리지역 / 도로 249㎡ (75.32평) | 112,000 | 27,888,000원 |
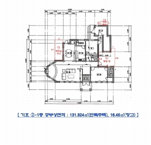
| 건물 | 1 | 봉미산안길 235-2 [설곡리 93]철근콘크리트조 칼라아스팔트슁글지붕 | 1층 / 단독주택 | 131 | 1,140,000원 |
| 2 | 1층 | 창고 | 16.45㎡(4.98평) / 1,140,000원 | 18,753,000 | * 사용승인:2003.12.11 |
| 제시외건물 | 1 | 봉미산안길 235-2 [설곡리 93]철골조 렉산지붕 및 천막지붕 등 1.철골조 렉산지붕 및 천막지붕, 2.벽체이용및철골조 렉산지붕, 3.벽돌조 슬래브지붕 | 단층 / 세탁실,창고 | 10 | 60,000원 |
| 2 | 단층 | 통로 | 15.4㎡(4.66평) / 50,000원 | 770,000 | 매각포함 |
| 3 | 단층 | 보일러실 | 1.8㎡(0.54평) / 300,000원 | 540,000 | 매각포함 |
현황 및 위치
* 본건은 경기도 가평군 설악면 설곡리 소재 "성곡교" 북동측 인근에 위치하며, 주위는 단독주택, 펜션, 농경지, 임야 등이 혼재하는 지역으로서 제반 입지조건 및 주위환경은 보통임. * 본건까지 차량 진입 가능하나, 대중교통 여건은 버스정류장의 위치 및 운행빈도 등으로 보아 다소 불편함. * 부정형의 토지로서 남향의 완경사지이며, 1)은 단독주택 건부지로, 2)은 대부분 조경수가 식재되어 있는 전으로 이용중임. * 토2 서측으로 폭 약 3미터의 비포장 도로가 개설되어 있으며, 1은 토2 토지를통하여 출입하고 있음.
참고사항
* 일괄매각. 제시외 건물 포함 * 지상에 소재하는 소나무, 주목, 단풍나무 등 수십 주의 관상수는 토지에 포함하여 평가 * 토2) 토지는 공부상 지목은 "도로"이나, 현황 "전"임을 고려하여 평가 * 건물 이용상태 : 단독주택(방2, 거실, 주방, 식당, 욕실겸화장실2, 다용도실, 창고, 현관 등)으로 이용중임.
등기부 현황
건물
| 순위 | 접수일자 | 권리종류 | 권리자 | 채권금액 | 소멸여부 | 비고 |
|---|---|---|---|---|---|---|
| 1(갑1) | 2003-12-30 | 소유권보존 | 이OO | 0 | ||
| 2(을3) | 2013-01-11 | 근저당 | 하OOOOOOOOOOO | 64,680,000 | 소멸 | 말소기준등기 |
| 3(갑3) | 2024-05-01 | 가압류 | 경OOOOOOO | 16,850,000 | 소멸 | 2024카단1049 |
| 4(갑4) | 2024-06-17 | 가압류 | 신OOOOO | 13,331,523 | 소멸 | 2024카단1061 |
| 5(을8) | 2024-06-24 | 근저당 | 경OOOOOOO | 251,000,000 | 소멸 | |
| 6(갑5) | 2024-07-11 | 가압류 | 농OOO | 318,067,942 | 소멸 | 2024카단106377 |
| 7(갑6) | 2024-10-18 | 임의경매 | 하OOOOOOOOOO | 59,984,940 | 소멸 | 2024타경5513, 한국주택금융공사 업무수탁기관 |
관련 문서 (PDF)
클릭하면 원본 파일이 열립니다